Irlams says ..
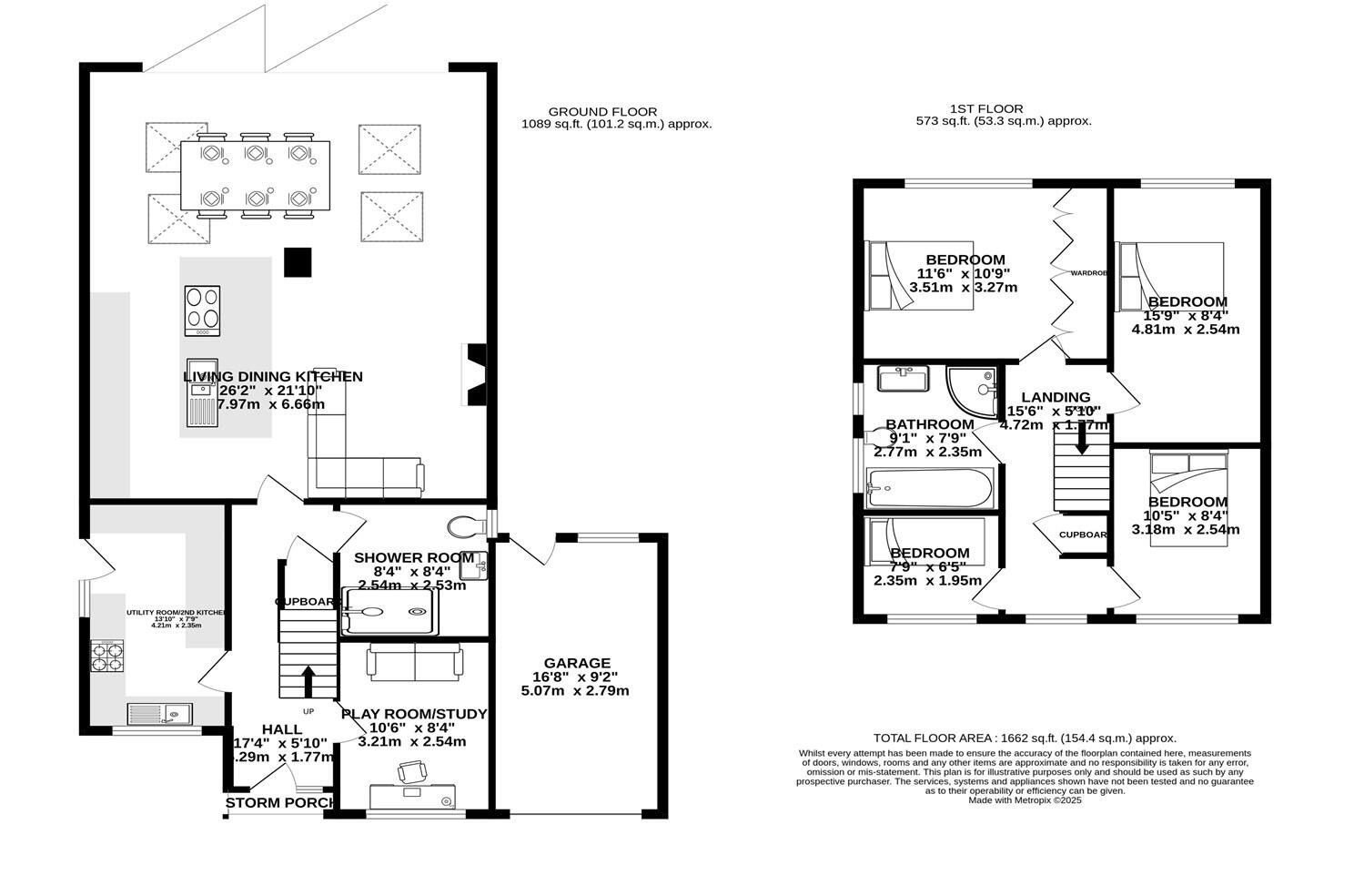
A beautifully presented, much extended and refurbished four bedroom, two bathroom, detached property on a much sought after road in the heart of the village, sitting in large gardens with views over open countryside. Driveway with ample parking, garage, enclosed gardens.
Property Oracle says ..
Therefore, we give this property 8 / 10. *Disclaimer: This is our option and does constitute a recommendation or financial advice. Do your own research. *
- Price
- 7
- Condition
- 9
- Location
- 8
- Land
- 8
- Bedrooms
- 4
- Bathrooms
- 2
- Sqft (est)
- 1,589.18
The heatmap indicates the level of crime in the area. The color of the heatmap indicates the crime severity and recency.
Metrics Year-on-Year
- Average area value
- 607,999.00 £Decreased by 19.74 %
- Est sale value
- 676,990.68 £Decreased by 8.58 %
- Average area rental value
- 1,708.00 £/moDecreased by 59.57 %
- Est letting value
- 1,589.18 £/moDecreased by 50.00 %
- Est rental Yield
- 3.37 %Decreased by 49.63 %
- Crime Rate
- 44.00 %Unchanged by 0.00 %
from 757,542.00 £
from 740,557.88 £
from 4,225.00 £/mo
from 3,178.36 £/mo
from 6.69 %
from 44.00 %
Agent Activity
Irlams created the listing.
Nearby Schools
| Name | Type | Ofsted | Distance |
|---|---|---|---|
| Mobberley Cofe Primary School | Voluntary Controlled School | Outstanding | 1.40 KM |
| Adelaide Heath Academy | Academy Special Sponsor Led | 2.94 KM | |
| Knutsford Children'S Centre | Children's Centre | 3.74 KM | |
| Manor Park Primary School And Nursery | Academy Converter | 3.75 KM | |
| St Vincent'S Catholic Primary School | Voluntary Aided School | Good | 3.86 KM |
Images
Nearby Streets
| Name | Average Price | Average Sqft | Distance |
|---|---|---|---|
| Summerfield Road | £ 0 | 0 | 0.00 KM |
| Beech Avenue | £ 0 | 0 | 0.00 KM |
Nearby Transport
| Name | NLC | TLC | Distance |
|---|---|---|---|
| Mobberley | 2849 | MOB | 1.74 KM |
| Ashley | 2850 | ASY | 4.81 KM |
| Knutsford | 2848 | KNF | 5.15 KM |
| Chelford (Cheshire) | 2764 | CEL | 7.14 KM |
| Hale (Manchester) | 2845 | HAL | 7.45 KM |
Nearby Listings
| Address | Price | Type | Score | Distance |
|---|---|---|---|---|
| Carlisle Close, Mobberley | £ 750,000 | BUY | 8 / 10 | 0.00 KM |
| Carlisle Close, Mobberley, WA16 | £ 525,000 | BUY | 8 / 10 | 0.06 KM |
| Carlisle Close, Mobberley | £ 549,000 | BUY | 7 / 10 | 0.08 KM |
| Great Oak Square, Mobberley, Knutsford | £ 325,000 | BUY | 7 / 10 | 0.11 KM |
| Appleby Crescent, Knutsford, WA16 | £ 575,000 | BUY | Unknown | 0.12 KM |
Nearby Properties
| Address | Price | Distance |
|---|---|---|
| 46 Carlisle Close | £ 280,000 | 0.08 KM |
| 23 Carlisle Close | £ 248,000 | 0.08 KM |
| 35 Carlisle Close | £ 350,000 | 0.08 KM |
| 31 Carlisle Close | £ 495,000 | 0.08 KM |
| 6 Carlisle Close | £ 280,000 | 0.08 KM |