Barnard Marcus says ..
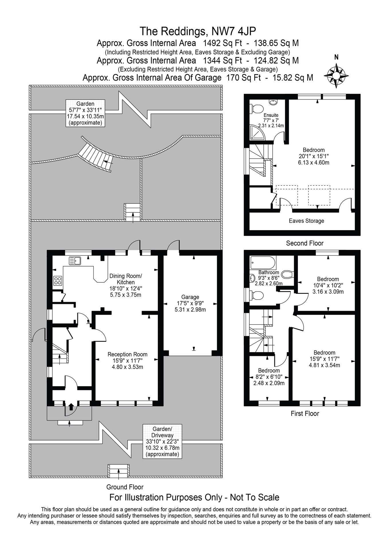
Positioned at the highest point on one of Mill Hill's most desirable roads, this impressive detached house offers generous living space and excellent versatility.
Property Oracle says ..
The property is a four-bedroom detached house in Mill Hill, London. It is located in a good location, close to schools and transport links. However, the property is in need of renovation and the interior is dated. The property has a good-sized garden. The price is reasonable for the location and size of the property, but reflects the need for modernisation.
Therefore, we give this property 6 / 10. *Disclaimer: This is our option and does constitute a recommendation or financial advice. Do your own research. *
- Price
- 6
- Condition
- 5
- Location
- 7
- Land
- 7
- Bedrooms
- 4
- Bathrooms
- 2
The heatmap indicates the level of crime in the area. The color of the heatmap indicates the crime severity and recency.
Metrics Year-on-Year
- Average area value
- 696,062.00 £Decreased by 2.02 %
- Average area rental value
- 2,443.00 £/moDecreased by 15.35 %
- Est rental Yield
- 4.21 %Decreased by 13.55 %
- Crime Rate
- 2.00 %Unchanged by 0.00 %
Agent Activity
Barnard Marcus created the listing.
Nearby Schools
| Name | Type | Ofsted | Distance |
|---|---|---|---|
| Ellern Mede School | Other Independent School | Outstanding | 0.54 KM |
| Mill Hill County High School | Academy Converter | Good | 0.89 KM |
| Goodwyn School | Other Independent School | 0.95 KM | |
| St Martin'S School | Other Independent School | Good | 1.11 KM |
| Etz Chaim Jewish Primary School | Free Schools | Good | 1.14 KM |
Images
Nearby Streets
| Name | Average Price | Average Sqft | Distance |
|---|---|---|---|
| Marsh Lane | £ 2,044,158 | 0 | 0.00 KM |
| Nan Clark's Lane | £ 0 | 0 | 0.00 KM |
| Millers Close | £ 0 | 0 | 0.00 KM |
| Wiltshire Close | £ 0 | 0 | 0.00 KM |
| Mill Hill Circus | £ 0 | 0 | 0.00 KM |
Nearby Transport
| Name | NLC | TLC | Distance |
|---|---|---|---|
| Mill Hill Broadway | 1527 | MIL | 1.47 KM |
| Hendon | 1522 | HEN | 4.91 KM |
| Elstree And Borehamwood | 1542 | ELS | 5.32 KM |
| Cricklewood | 1519 | CRI | 7.99 KM |
| New Barnet | 6018 | NBA | 8.09 KM |
Nearby Listings
| Address | Price | Type | Score | Distance |
|---|---|---|---|---|
| The Reddings, London, NW7 | £ 1,250,000 | BUY | 6 / 10 | 0.00 KM |
| The Reddings, London | £ 999,999 | BUY | 6 / 10 | 0.00 KM |
| The Reddings, Mill Hill, London, NW7 | £ 999,999 | BUY | 6 / 10 | 0.05 KM |
| The Reddings, NW7 | £ 1,050,000 | BUY | 6 / 10 | 0.05 KM |
| The Reddings, London, NW7 | £ 975,000 | BUY | 6 / 10 | 0.06 KM |
Nearby Properties
| Address | Price | Distance |
|---|---|---|
| 103 The Reddings | £ 555,000 | 0.00 KM |
| 111 The Reddings | £ 1,200,000 | 0.00 KM |
| 135 The Reddings | £ 720,000 | 0.00 KM |
| 95 The Reddings | £ 970,000 | 0.00 KM |
| 87 The Reddings | £ 1,000,000 | 0.00 KM |