High Road, Wilmington, Dartford, Kent, DA2
By Robinson Jackson
£ 650,000
Reviews
3 out of 5 stars
Robinson Jackson says ..
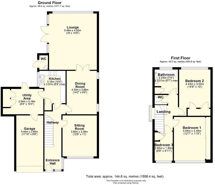
Robinson Jackson are delighted to offer for sale this extended three bedroom detached house with stunning gardens, great room sizes and potential to extend in Wilmington village.
Property Oracle says ..
This 3-bedroom, 1-bathroom detached house in Wilmington, Dartford is listed at £650,000. The property boasts a sizeable plot of 1,556.40 sqft and offers 1,322.23 sqft of living space. While the average house price in the area is £429,161 and the average price per sqft is £356, this property is significantly above average. The location benefits from proximity to several schools (Wilmington Primary School and Wilmington Grammar School for Boys, both rated “Good” by Ofsted) and is within reasonable distance of several Southeastern train stations, making it convenient for commuters. The property appears to be in relatively good condition, although some modernisation may be desirable. The garden is a significant feature, offering ample outdoor space. Considering the location, size, and garden, the asking price may be considered high compared to the average for the area, but not unreasonable given the larger plot size and proximity to good schools.
Therefore, we give this property 7 / 10. *Disclaimer: This is our option and does constitute a recommendation or financial advice. Do your own research. *
- Price
- 6
- Condition
- 7
- Location
- 8
- Land
- 8
- Bedrooms
- 3
- Bathrooms
- 1
- Sqft (est)
- 1,322.23
- Lot (est)
- 1,556.40
The heatmap indicates the level of crime in the area. The color of the heatmap indicates the crime severity and recency.
Metrics Year-on-Year
- Average area value
- 457,741.00 £Decreased by 8.07 %
- Est sale value
- 598,970.19 £Increased by 27.25 %
- Average area rental value
- 1,925.00 £/moIncreased by 39.09 %
- Est letting value
- 1,322.23 £/mo
- Est rental Yield
- 5.05 %Increased by 51.20 %
- Crime Rate
- 3.00 %Unchanged by 0.00 %
Agent Activity
Robinson Jackson created the listing.
Nearby Schools
| Name | Type | Ofsted | Distance |
|---|---|---|---|
| North Kent College | Further Education | Good | 0.71 KM |
| Oakfield Primary Academy | Academy Converter | Good | 0.91 KM |
| Oakfield Children'S Centre | Children's Centre | 0.93 KM | |
| Wilmington Primary School | Academy Converter | Good | 1.08 KM |
| Wilmington Grammar School For Boys | Academy Converter | Good | 1.32 KM |
Images
Nearby Streets
| Name | Average Price | Average Sqft | Distance |
|---|---|---|---|
| Mayor's Lane | £ 0 | 0 | 0.00 KM |
| Linden Avenue | £ 0 | 0 | 0.00 KM |
| Laurel Close | £ 0 | 0 | 0.00 KM |
| Trafalgar Road | £ 0 | 0 | 0.00 KM |
| Heath Street | £ 0 | 0 | 0.00 KM |
Nearby Transport
| Name | NLC | TLC | Distance |
|---|---|---|---|
| Dartford | 5101 | DFD | 2.63 KM |
| Crayford | 5100 | CRY | 3.82 KM |
| Farningham Road | 5105 | FNR | 4.31 KM |
| Slade Green | 5154 | SGR | 4.82 KM |
| Swanley | 5075 | SAY | 5.60 KM |
Nearby Listings
| Address | Price | Type | Score | Distance |
|---|---|---|---|---|
| High Road, Wilmington, Dartford, Kent, DA2 | £ 650,000 | BUY | 7 / 10 | 0.00 KM |
| High Road, Wilmington, Kent, DA2 | £ 450,000 | BUY | 7 / 10 | 0.00 KM |
| High Road, Wilmington, Dartford, Kent, DA2 | £ 530,000 | BUY | Unknown | 0.00 KM |
| High Road, Dartford, Kent, DA2 | £ 230,000 | BUY | 7 / 10 | 0.04 KM |
| High Road, Wilmington, Dartford, Kent, DA2 | £ 550,000 | BUY | 6 / 10 | 0.07 KM |
Nearby Properties
| Address | Price | Distance |
|---|---|---|
| 16 High Road | £ 421,000 | 0.02 KM |
| 42 High Road | £ 247,000 | 0.02 KM |
| 54 High Road | £ 500,000 | 0.02 KM |
| 34 High Road | £ 575,000 | 0.02 KM |
| 48a High Road | £ 340,000 | 0.02 KM |