J W Wood says ..
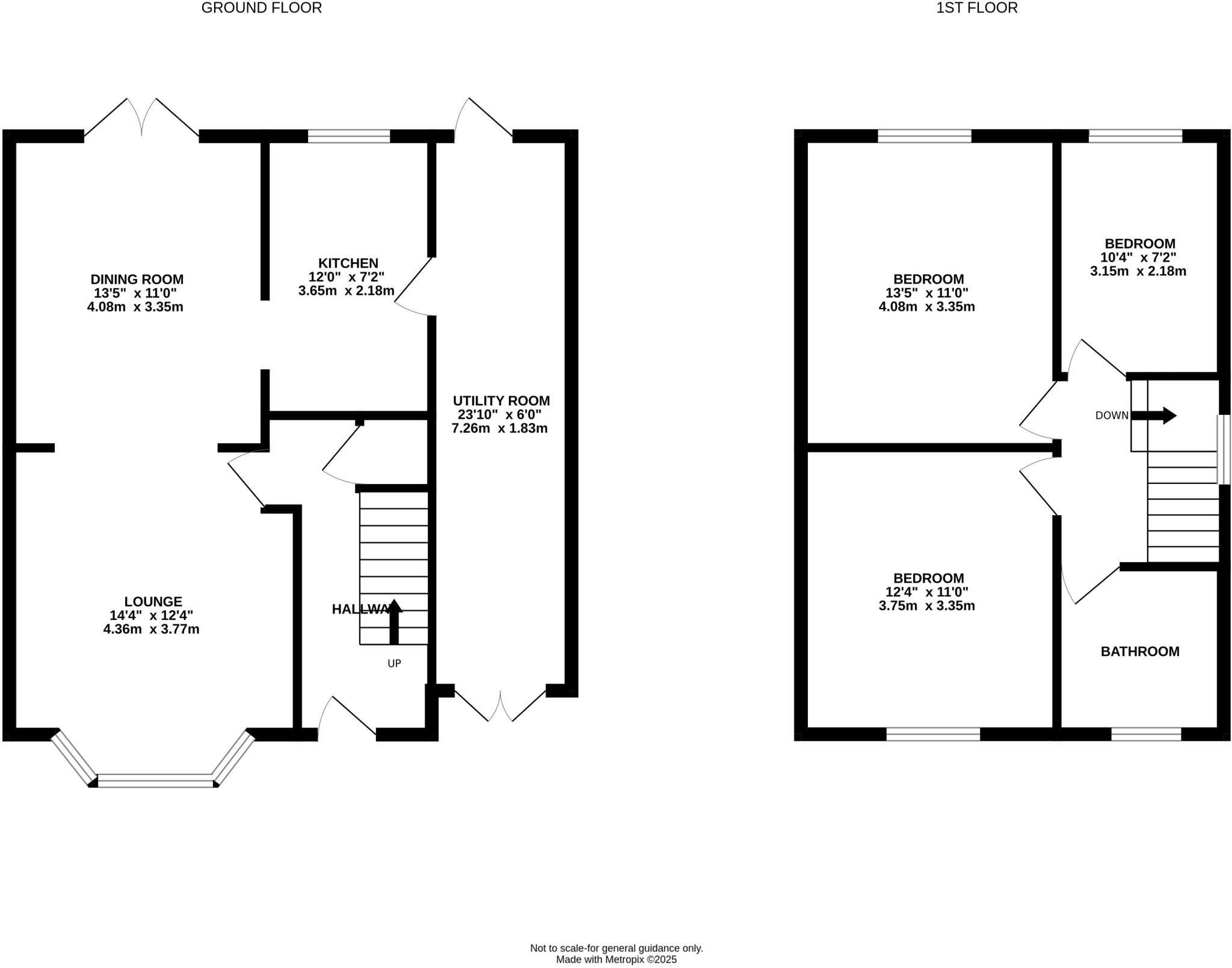
Occupying a very pleasant position in the popular Cockerton area of Darlington this is a very well presented and improved deceptive traditional semi-detached house offering well-proportioned accommodation. Retaining some very attractive period features, this lovely home briefly compris...
Property Oracle says ..
Therefore, we give this property 7 / 10. *Disclaimer: This is our option and does constitute a recommendation or financial advice. Do your own research. *
- Price
- 7
- Condition
- 8
- Location
- 7
- Land
- 7
- Bedrooms
- 3
- Bathrooms
- 1
- Sqft (est)
- 909.01
The heatmap indicates the level of crime in the area. The color of the heatmap indicates the crime severity and recency.
Metrics Year-on-Year
- Average area value
- 102,000.00 £Decreased by 27.66 %
- Est sale value
- 117,262.29 £Decreased by 12.24 %
- Average area rental value
- 759.00 £/moIncreased by 11.45 %
- Est letting value
- 0.00 £/mo
- Est rental Yield
- 8.93 %Increased by 53.97 %
- Crime Rate
- 2.00 %Unchanged by 0.00 %
from 140,992.00 £
from 133,624.47 £
from 681.00 £/mo
from 0.00 £/mo
from 5.80 %
from 2.00 %
Agent Activity
J W Wood created the listing.
Nearby Schools
| Name | Type | Ofsted | Distance |
|---|---|---|---|
| Reid Street Primary School | Academy Converter | Good | 0.72 KM |
| Holy Family Rc Primary School | Academy Converter | Good | 1.05 KM |
| George Dent Nursery School | Local Authority Nursery School | Outstanding | 1.08 KM |
| Queen Elizabeth Sixth Form College | Further Education | Good | 1.14 KM |
| Abbey Junior School | Academy Converter | Good | 1.22 KM |
Images
Nearby Streets
| Name | Average Price | Average Sqft | Distance |
|---|---|---|---|
| The Garth | £ 139,950 | 0 | 0.00 KM |
| Rosebery Street | £ 77,475 | 0 | 0.00 KM |
| Warren Street | £ 0 | 0 | 0.00 KM |
| Waterside | £ 0 | 0 | 0.00 KM |
| Waterside | £ 312,500 | 0 | 0.00 KM |
Nearby Transport
| Name | NLC | TLC | Distance |
|---|---|---|---|
| North Road (Darlington) | 7895 | NRD | 1.90 KM |
| Darlington | 7877 | DAR | 3.04 KM |
| Heighington | 7887 | HEI | 7.08 KM |
| Newton Aycliffe | 7834 | NAY | 9.08 KM |
Nearby Listings
| Address | Price | Type | Score | Distance |
|---|---|---|---|---|
| Deneside Road, Darlington, DL3 | £ 180,000 | BUY | 7 / 10 | 0.00 KM |
| Deneside Road, Darlington, DL3 | £ 170,000 | BUY | 6 / 10 | 0.02 KM |
| Willow Road, Darlington | £ 199,950 | BUY | 7 / 10 | 0.05 KM |
| Willow Road, Darlington | £ 200,000 | BUY | 6 / 10 | 0.08 KM |
| Pierremont Road, Darlington | £ 170,000 | BUY | 6 / 10 | 0.11 KM |
Nearby Properties
| Address | Price | Distance |
|---|---|---|
| 41 Pierremont Road | £ 52,000 | 0.04 KM |
| 17 Deneside Road | £ 162,500 | 0.07 KM |
| 10 Deneside Road | £ 122,570 | 0.07 KM |
| 3 Deneside Road | £ 166,500 | 0.07 KM |
| 5 Deneside Road | £ 134,950 | 0.07 KM |