Northdene Court, 32 Egham Hill, Englefield Green, Egham, Surrey, TW20
By Nevin and Wells Residential
£ 395,000
Reviews
3 out of 5 stars
Nevin and Wells Residential says ..
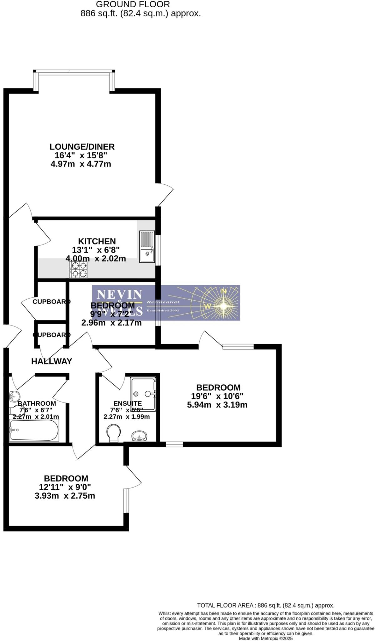
Situated within a private gated development is this larger than average three bedroom ground floor apartment with own private garden allocated parking, en-suite facilities, 16ft Lounge/dining room, separate fitted kitchen, communal grounds. Further benefits include gas central heating, d...
Property Oracle says ..
The property is a 3 bedroom, 2 bathroom flat located in Englefield Green, Surrey. It is situated on Egham Hill, close to Egham train station and several schools, including Manorcroft Primary School (rated ‘Good’ by Ofsted) and St Cuthbert’s Catholic Primary School (rated ‘Outstanding’). This suggests a convenient location with good access to transport links and local amenities. The proximity to Royal Holloway University may also be a positive factor for rental potential.
The property itself appears to be in good condition based on the provided images. The interior is clean and well-maintained, with a modern kitchen and bathrooms. There is evidence of a small, manageable garden area, which is a desirable feature for many buyers.
Considering the average price per square foot in the area is £338, and the property is listed at £395,000 for 746 sqft, the price per sqft is approximately £530. This is significantly higher than the average for the area. However, the property’s location, proximity to amenities and transport links, and the presence of a garden could justify a higher price per square foot. Further analysis of comparable properties in the immediate vicinity would be needed to definitively assess the price’s reasonableness. The lack of sqft data for nearby properties makes a precise comparison difficult.
Therefore, we give this property 7 / 10. *Disclaimer: This is our option and does constitute a recommendation or financial advice. Do your own research. *
- Price
- 6
- Condition
- 8
- Location
- 9
- Land
- 5
- Bedrooms
- 3
- Bathrooms
- 2
- Sqft (est)
- 746.00
- Lot (est)
- 886.00
The heatmap indicates the level of crime in the area. The color of the heatmap indicates the crime severity and recency.
Metrics Year-on-Year
- Average area value
- 497,268.00 £Increased by 4.06 %
- Est sale value
- 375,984.00 £Increased by 51.81 %
- Average area rental value
- 2,350.00 £/moIncreased by 60.19 %
- Est letting value
- 1,492.00 £/moIncreased by 100.00 %
- Est rental Yield
- 5.67 %Increased by 54.08 %
- Crime Rate
- 11.00 %Unchanged by 0.00 %
Agent Activity
Nevin and Wells Residential created the listing.
Nearby Schools
| Name | Type | Ofsted | Distance |
|---|---|---|---|
| Royal Holloway And Bedford New College | Higher Education Institutions | 1.12 KM | |
| St Jude'S Cofe Infant School | Voluntary Aided School | 1.40 KM | |
| Manorcroft Primary School | Community School | Good | 1.57 KM |
| St Jude'S Church Of England Junior School | Voluntary Aided School | Good | 1.76 KM |
| St Cuthbert'S Catholic Primary School, Englefield Green | Voluntary Aided School | Outstanding | 1.83 KM |
Images
Nearby Streets
| Name | Average Price | Average Sqft | Distance |
|---|---|---|---|
| Kinburn Drive | £ 0 | 0 | 0.00 KM |
| Alder Close | £ 0 | 0 | 0.00 KM |
| Clarence Street | £ 0 | 0 | 0.00 KM |
| Johnson Close | £ 0 | 0 | 0.00 KM |
| Clarence Street | £ 0 | 0 | 0.00 KM |
Nearby Transport
| Name | NLC | TLC | Distance |
|---|---|---|---|
| Egham | 5669 | EGH | 1.30 KM |
| Virginia Water | 5676 | VIR | 3.18 KM |
| Wraysbury | 5673 | WRY | 3.57 KM |
| Sunnymeads | 5675 | SNY | 4.47 KM |
| Staines | 5670 | SNS | 6.10 KM |
Nearby Listings
| Address | Price | Type | Score | Distance |
|---|---|---|---|---|
| Northdene Court, 32 Egham Hill, Englefield Green, Egham, Surrey, TW20 | £ 395,000 | BUY | 7 / 10 | 0.00 KM |
| Egham Hill, Englefield Green, Egham, Surrey, TW20 | £ 375,000 | BUY | 6 / 10 | 0.01 KM |
| Hollywood Kinburn Drive, Egham Hill, Egham, Surrey, TW20 | £ 375,000 | BUY | 5 / 10 | 0.06 KM |
| Greenways, Egham, Surrey, TW20 | £ 530,000 | BUY | Unknown | 0.09 KM |
| 5 Bed close to Royal Holloway | £ 535,000 | BUY | 7 / 10 | 0.12 KM |
Nearby Properties
| Address | Price | Distance |
|---|---|---|
| 33 Egham Hill | £ 668,500 | 0.09 KM |
| 51 Egham Hill | £ 360,000 | 0.09 KM |
| 29 Egham Hill | £ 625,000 | 0.09 KM |
| 9 Greenways | £ 430,000 | 0.11 KM |
| 4 Greenways | £ 310,000 | 0.11 KM |