eXp UK says ..
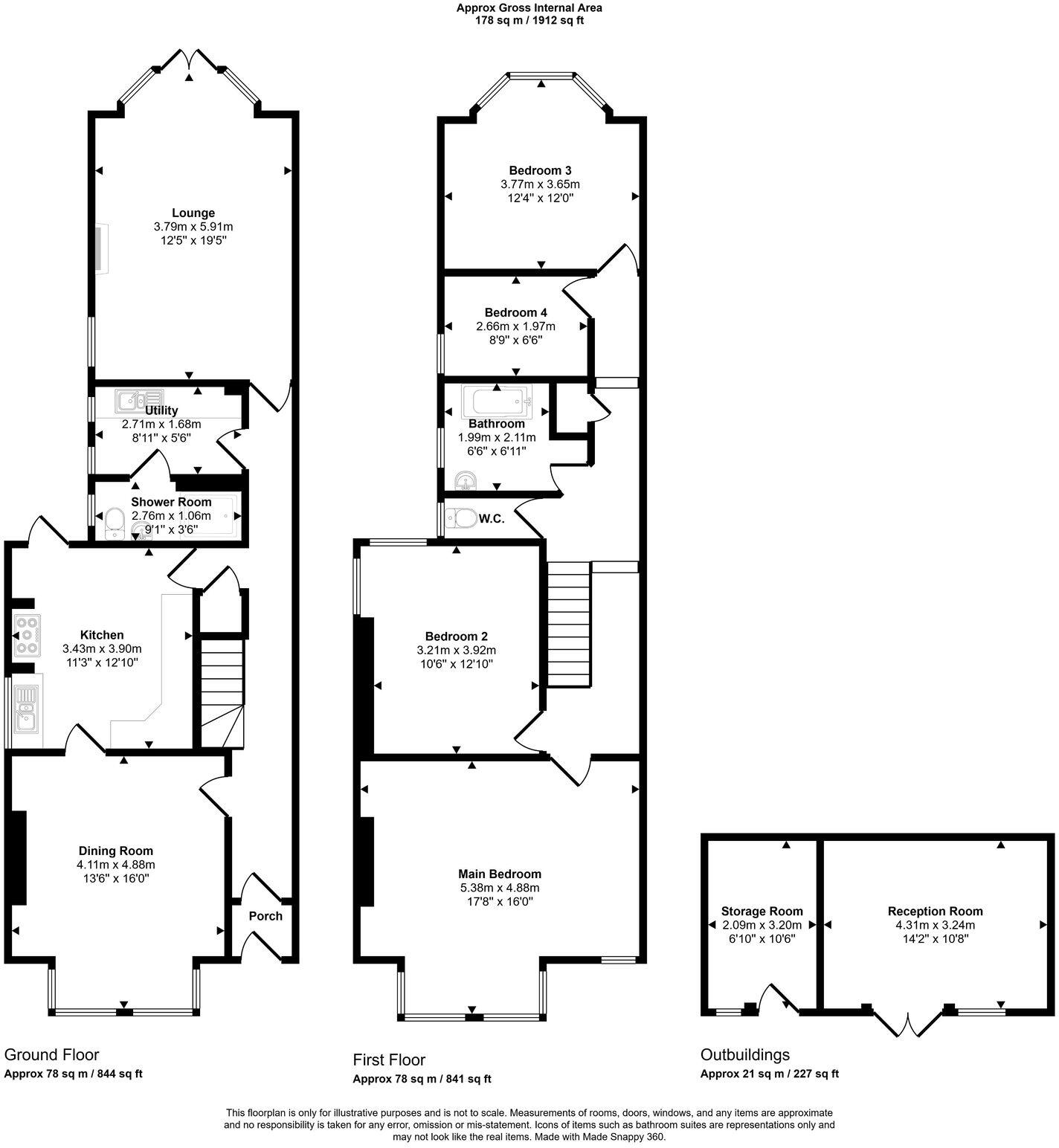
Semi detached family home in a sought after residential location. Presented to a high standard throughout. 2 good size reception rooms. Brick built outbuilding, ideal for a home office/gym/bar. Quote: JV0094.
Property Oracle says ..
Therefore, we give this property 7 / 10. *Disclaimer: This is our option and does constitute a recommendation or financial advice. Do your own research. *
- Price
- 9
- Condition
- 7
- Location
- 8
- Land
- 7
- Bedrooms
- 4
- Bathrooms
- 1
- Sqft (est)
- 1,570.99
The heatmap indicates the level of crime in the area. The color of the heatmap indicates the crime severity and recency.
Metrics Year-on-Year
- Average area value
- 388,182.00 £Decreased by 15.21 %
- Est sale value
- 864,044.50 £Increased by 48.25 %
- Average area rental value
- 885.00 £/moDecreased by 28.57 %
- Est letting value
- 1,570.99 £/moUnchanged by 0.00 %
- Est rental Yield
- 2.74 %Decreased by 15.69 %
- Crime Rate
- 15.00 %Unchanged by 0.00 %
from 457,805.00 £
from 582,837.29 £
from 1,239.00 £/mo
from 1,570.99 £/mo
from 3.25 %
from 15.00 %
Agent Activity
eXp UK created the listing.
Nearby Schools
| Name | Type | Ofsted | Distance |
|---|---|---|---|
| Cliftonville Primary School | Academy Sponsor Led | Outstanding | 0.42 KM |
| Lighthouse School | Other Independent Special School | Good | 0.72 KM |
| Parkview Academy | Other Independent Special School | Good | 0.76 KM |
| Cliftonville Children'S Centre | Children's Centre | 0.86 KM | |
| St Anthony'S School | Foundation Special School | Good | 0.89 KM |
Images
Nearby Streets
| Name | Average Price | Average Sqft | Distance |
|---|---|---|---|
| Wyndham Avenue | £ 130,000 | 0 | 0.00 KM |
| The Ridgeway | £ 0 | 0 | 0.00 KM |
| Harold Close | £ 0 | 0 | 0.00 KM |
| Cedar Close | £ 250,000 | 0 | 0.00 KM |
| Northdown Parade | £ 450,000 | 0 | 0.00 KM |
Nearby Transport
| Name | NLC | TLC | Distance |
|---|---|---|---|
| Margate | 5018 | MAR | 3.36 KM |
| Broadstairs | 5006 | BSR | 4.44 KM |
| Ramsgate | 5023 | RAM | 5.03 KM |
| Dumpton Park | 5034 | DMP | 5.16 KM |
| Westgate-On-Sea | 5195 | WGA | 7.10 KM |
Nearby Listings
| Address | Price | Type | Score | Distance |
|---|---|---|---|---|
| Wyndham Avenue, Margate | £ 425,000 | BUY | 7 / 10 | 0.00 KM |
| Wyndham Avenue, Margate, CT9 2PR | £ 550,000 | BUY | 6 / 10 | 0.00 KM |
| Laleham Gardens, Margate, Kent | £ 425,000 | BUY | Unknown | 0.07 KM |
| Laleham Gardens, Margate, Kent, CT9 | £ 350,000 | BUY | 6 / 10 | 0.08 KM |
| Richard Court, Lower Northdown Road, Cliftonville | £ 165,000 | BUY | 5 / 10 | 0.11 KM |
Nearby Properties
| Address | Price | Distance |
|---|---|---|
| 8 Wyndham Avenue | £ 335,000 | 0.00 KM |
| 18 Wyndham Avenue | £ 180,000 | 0.00 KM |
| 3 Wyndham Avenue | £ 70,000 | 0.00 KM |
| 6 Wyndham Avenue | £ 137,000 | 0.02 KM |
| 14 Wyndham Avenue | £ 150,000 | 0.02 KM |