Auger Way, Waterlooville
By Archbold & Edwards
£ 337,500
Reviews
3 out of 5 stars
Archbold & Edwards says ..
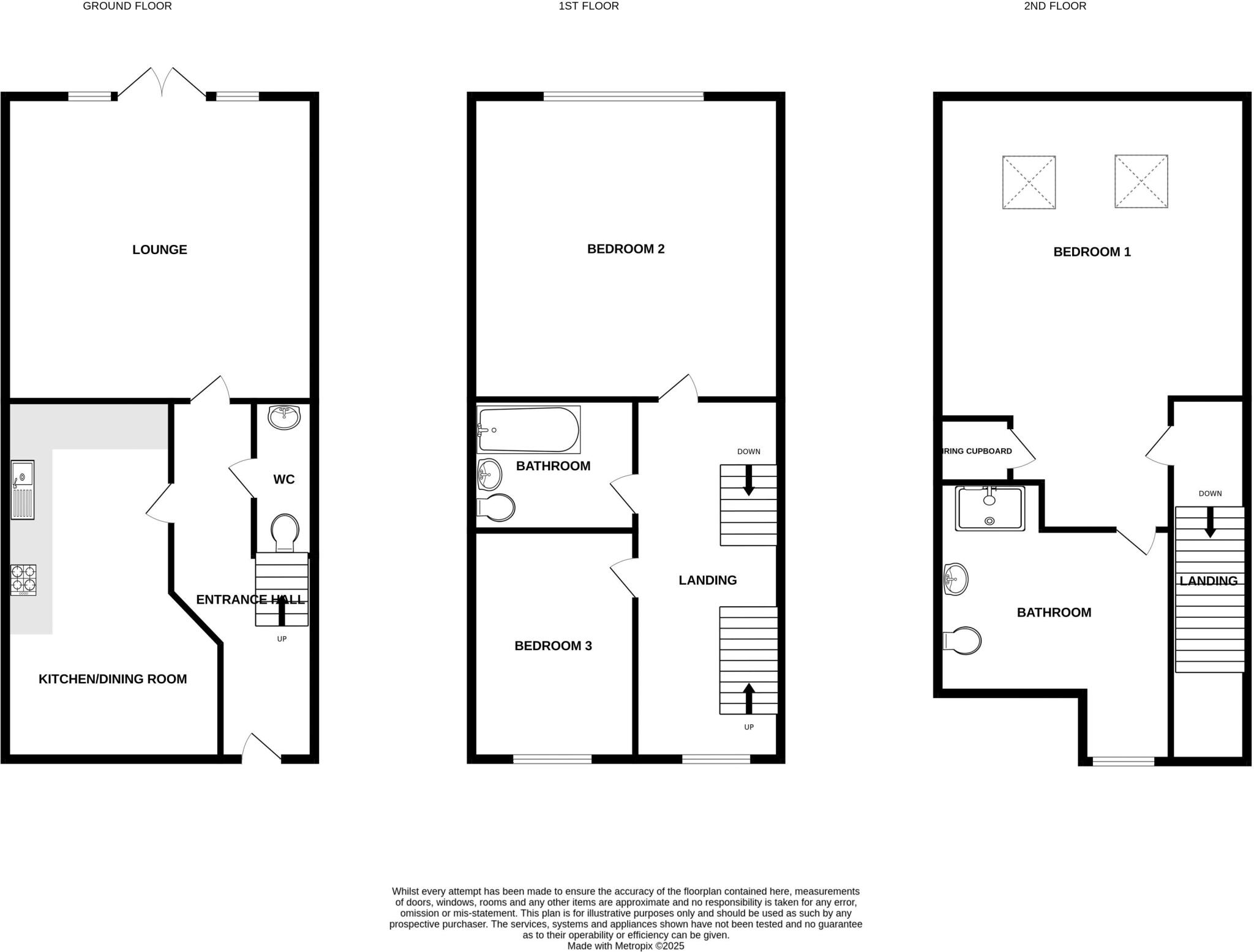
MODERN LIVING IN THIS FAMILY HOME WITH GARAGE AND EN-SUITE. A three bedroom end of terrace town house built by Taylor Wimpey situated in Waterlooville. This impressive property benefits from double glazing, gas central heating system, heat recovery system, garage and parking, landscaped rear gar...
Property Oracle says ..
The property is located in a popular residential area of Waterlooville, Hampshire. The area benefits from relatively close proximity to several primary and junior schools, all with good Ofsted ratings. Transportation links are also reasonable, with several train stations within a 5-8km radius. This makes the location convenient for families and commuters. However, the provided plot size is 0.00 SQFT, indicating a lack of significant land. This is a common feature of properties in this area and limits outdoor space.
Based on the provided images, the property appears to be in good condition. The interior is well-maintained and modern, with recently updated kitchen and bathroom fixtures. There is no visible evidence of significant repair or renovation needs.
The list price of £337,500 is slightly below the average price for the area (£415,364). However, the property is significantly smaller than the average property size in the area (905 sqft vs 1240 sqft). Considering the smaller size and lack of land, the price per sqft is higher than the average (£372.86 vs £334). While the property appears to be in good condition and the location is convenient, the relatively high price per sqft compared to the average, and lack of outdoor space, may make the list price seem slightly high for some buyers. However, the price is in line with other properties on the same street, suggesting the asking price is not unreasonable given the current market.
Therefore, we give this property 6 / 10. *Disclaimer: This is our option and does constitute a recommendation or financial advice. Do your own research. *
- Price
- 6
- Condition
- 8
- Location
- 7
- Land
- 3
- Bedrooms
- 3
- Bathrooms
- 1
- Sqft (est)
- 905.00
The heatmap indicates the level of crime in the area. The color of the heatmap indicates the crime severity and recency.
Metrics Year-on-Year
- Average area value
- 359,091.00 £Decreased by 29.86 %
- Est sale value
- 372,860.00 £Increased by 5.10 %
- Average area rental value
- 1,545.00 £/moIncreased by 4.32 %
- Est letting value
- 905.00 £/moUnchanged by 0.00 %
- Est rental Yield
- 5.16 %Increased by 48.70 %
- Crime Rate
- 25.00 %Unchanged by 0.00 %
Agent Activity
Archbold & Edwards marked this listing as sold.
Archbold & Edwards created the listing.
Nearby Schools
| Name | Type | Ofsted | Distance |
|---|---|---|---|
| Berewood Primary School | Academy Sponsor Led | Good | 1.72 KM |
| Jubilee School | Other Independent Special School | Requires improvement | 1.76 KM |
| Denmead Infant School | Community School | Good | 1.86 KM |
| Happy Valley Children'S Centre | Children's Centre Linked Site | 1.86 KM | |
| Denmead Junior School | Community School | Good | 1.87 KM |
Images
Nearby Streets
| Name | Average Price | Average Sqft | Distance |
|---|---|---|---|
| Augur Row | £ 0 | 0 | 0.00 KM |
| Cowslip Court | £ 0 | 0 | 0.00 KM |
| Violet Court | £ 0 | 0 | 0.00 KM |
| Herwick Lane | £ 0 | 0 | 0.00 KM |
| Redpoll Road | £ 0 | 0 | 0.00 KM |
Nearby Transport
| Name | NLC | TLC | Distance |
|---|---|---|---|
| Cosham | 5896 | CSA | 5.70 KM |
| Hilsea | 5539 | HLS | 6.92 KM |
| Bedhampton | 5538 | BDH | 7.06 KM |
| Havant | 5532 | HAV | 8.38 KM |
| Portchester | 5928 | PTC | 9.52 KM |
Nearby Listings
| Address | Price | Type | Score | Distance |
|---|---|---|---|---|
| Darnel Crescent, Waterlooville | £ 425,000 | BUY | Unknown | 0.07 KM |
| Waterlooville, Hampshire | £ 450,000 | BUY | 6 / 10 | 0.07 KM |
| Harrow Way, Waterlooville, Hampshire | £ 280,000 | BUY | 8 / 10 | 0.11 KM |
| Cumberland Way, Waterlooville | £ 325,000 | BUY | Unknown | 0.15 KM |
| Cumberland Way, Waterlooville | £ 335,000 | BUY | 7 / 10 | 0.15 KM |
Nearby Properties
| Address | Price | Distance |
|---|---|---|
| 3 Auger Way | £ 215,000 | 0.01 KM |
| 1 Auger Way | £ 260,000 | 0.01 KM |
| 7 Auger Way | £ 160,000 | 0.05 KM |
| 5 Auger Way | £ 188,995 | 0.05 KM |
| 11 Darnel Crescent | £ 355,000 | 0.07 KM |