Bayeux Court, Hanwell, Greater London, W7
By So Resi
£ 200,000
Reviews
4 out of 5 stars
So Resi says ..
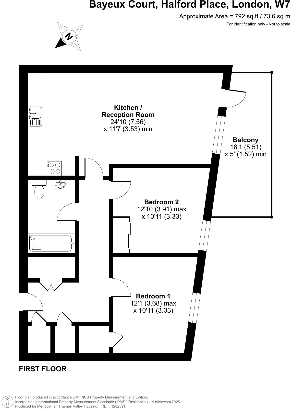
Bright and modern two-bedroom apartment now available in Hanwell, West London through Shared Ownership. Positioned on the first floor with a southwest-facing balcony that captures the aft...
Property Oracle says ..
This property is a 2-bedroom flat located in Hanwell, West London, with a list price of £200,000. The property is in a modern development and the images show a well-maintained interior and exterior. The flat has a private balcony.
The location is positive, with several well-regarded schools nearby, including St Ann’s School (Outstanding) and Drayton Manor High School (Outstanding), both within a kilometer. Hanwell station provides access to TfL Rail, offering convenient transport links. The proximity to these amenities makes the location desirable.
Based on the images, the property appears to be in excellent condition. It is modern, clean, and well-presented. There is no visible evidence of damage or needing repair.
While the plot size is relatively small for a property in London, the inclusion of a private balcony adds outdoor space.
Considering the average property price in the area is significantly higher (£617,418) and the average price per square foot is £732, the list price of £200,000 for this 646 sqft flat seems very reasonable, especially given its condition and location. However, it is important to note that the lack of information on comparable properties in the immediate vicinity makes a definitive judgement difficult. The provided nearby listings have missing sqft data.
Therefore, we give this property 8 / 10. *Disclaimer: This is our option and does constitute a recommendation or financial advice. Do your own research. *
- Price
- 10
- Condition
- 10
- Location
- 9
- Land
- 3
- Bedrooms
- 2
- Bathrooms
- 0
- Sqft (est)
- 646.00
- Lot (est)
- 792.00
The heatmap indicates the level of crime in the area. The color of the heatmap indicates the crime severity and recency.
Metrics Year-on-Year
- Average area value
- 526,250.00 £Increased by 3.90 %
- Est sale value
- 516,154.00 £Increased by 15.30 %
- Average area rental value
- 1,876.00 £/moIncreased by 3.25 %
- Est letting value
- 1,292.00 £/moUnchanged by 0.00 %
- Est rental Yield
- 4.28 %Decreased by 0.47 %
- Crime Rate
- 14.00 %Unchanged by 0.00 %
Agent Activity
So Resi created the listing.
Nearby Schools
| Name | Type | Ofsted | Distance |
|---|---|---|---|
| St Joseph'S Catholic Primary School | Voluntary Aided School | Good | 0.31 KM |
| St Ann'S School | Community Special School | Outstanding | 0.41 KM |
| Drayton Manor High School | Academy Converter | Outstanding | 0.61 KM |
| Oaklands Primary School | Community School | Good | 0.73 KM |
| St Mark'S Primary School | Community School | Good | 0.73 KM |
Images
Nearby Streets
| Name | Average Price | Average Sqft | Distance |
|---|---|---|---|
| York Avenue | £ 0 | 0 | 0.00 KM |
| Filanco Court | £ 600,000 | 0 | 0.00 KM |
| York Close | £ 399,950 | 0 | 0.00 KM |
| Aria Mews | £ 0 | 0 | 0.00 KM |
| George Street Car Park | £ 400,000 | 0 | 0.00 KM |
Nearby Transport
| Name | NLC | TLC | Distance |
|---|---|---|---|
| Hanwell | 3191 | HAN | 0.42 KM |
| Drayton Green | 3099 | DRG | 0.87 KM |
| Castle Bar Park | 3098 | CBP | 1.44 KM |
| West Ealing | 3188 | WEA | 1.68 KM |
| South Greenford | 3138 | SGN | 2.60 KM |
Nearby Listings
| Address | Price | Type | Score | Distance |
|---|---|---|---|---|
| Halford Place, London | £ 200,000 | BUY | 7 / 10 | 0.04 KM |
| Halford Place, London | £ 500,000 | BUY | Unknown | 0.04 KM |
| Cherington Road, Hanwell | £ 499,950 | BUY | Unknown | 0.04 KM |
| Cherington Road, Hanwell | £ 475,000 | BUY | 6 / 10 | 0.06 KM |
| Church Road, Hanwell, W7 | £ 575,000 | BUY | Unknown | 0.09 KM |
Nearby Properties
| Address | Price | Distance |
|---|---|---|
| 46a Church Road | £ 125,000 | 0.05 KM |
| 42a Church Road | £ 475,000 | 0.05 KM |
| 38 Church Road | £ 385,000 | 0.05 KM |
| 42b Church Road | £ 315,000 | 0.05 KM |
| 44 Church Road | £ 412,500 | 0.05 KM |