Hamilton Chase says ..
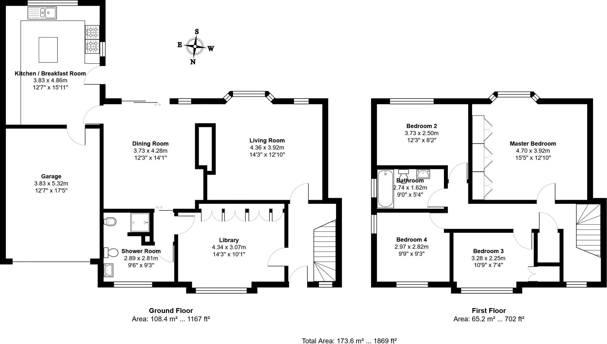
Situated in one of High Barnet's premier locations and owned by the same family since 1976 Hamilton Chase are delighted to offer for sale this beautifully presented Arts and Crafts semi-detached family home of which an internal viewing is most highly recommended. The property itself offers bri...
Property Oracle says ..
The property is located in High Barnet, Barnet, Greater London. The area benefits from good schools and convenient transport links. Based on the photos, the property appears to be well-maintained and in good condition. The interior is presented in a clean and tidy manner, and the rooms appear spacious and well-lit. The kitchen and bathrooms look modern and updated. The property has a traditional style, with some modern updates. There is evidence of a well-maintained garden. The property is a semi-detached house with 4 bedrooms and 2 bathrooms, covering 1,868.61 square feet. The list price is £1,495,000. The average price for properties in the area is £979,926, with an average price per square foot of £571. While the list price is significantly higher than the average, it’s important to consider that the property is larger than average and appears to be in excellent condition with a substantial garden. Nearby comparable properties on Sunset View support this higher price point. The lack of plot size information in the initial property details makes it difficult to fully assess the land value.
Therefore, we give this property 8 / 10. *Disclaimer: This is our option and does constitute a recommendation or financial advice. Do your own research. *
- Price
- 7
- Condition
- 9
- Location
- 9
- Land
- 8
- Bedrooms
- 4
- Bathrooms
- 2
- Sqft (est)
- 1,868.61
The heatmap indicates the level of crime in the area. The color of the heatmap indicates the crime severity and recency.
Metrics Year-on-Year
- Average area value
- 677,122.00 £Decreased by 28.61 %
- Est sale value
- 1,009,049.40 £Decreased by 27.71 %
- Average area rental value
- 5,020.00 £/moIncreased by 76.26 %
- Est letting value
- 7,474.44 £/moIncreased by 100.00 %
- Est rental Yield
- 8.90 %Increased by 147.22 %
- Crime Rate
- 2.00 %Unchanged by 0.00 %
Agent Activity
Hamilton Chase created the listing.
Nearby Schools
| Name | Type | Ofsted | Distance |
|---|---|---|---|
| Foulds School | Community School | Good | 0.71 KM |
| Christ Church Primary School | Voluntary Aided School | Good | 0.83 KM |
| Susi Earnshaw Theatre School | Other Independent School | 0.88 KM | |
| Barnet And Southgate College | Further Education | Requires improvement | 0.90 KM |
| Queen Elizabeth'S School, Barnet | Academy Converter | 0.98 KM |
Images
Nearby Streets
| Name | Average Price | Average Sqft | Distance |
|---|---|---|---|
| Warwick Gardens | £ 750,000 | 0 | 0.00 KM |
| Spring Close | £ 0 | 0 | 0.00 KM |
| Oyster Close | £ 725,000 | 0 | 0.00 KM |
| Hermes Close | £ 0 | 0 | 0.00 KM |
| Eleanor Gardens | £ 0 | 0 | 0.00 KM |
Nearby Transport
| Name | NLC | TLC | Distance |
|---|---|---|---|
| Hadley Wood | 6075 | HDW | 3.29 KM |
| New Barnet | 6018 | NBA | 3.71 KM |
| Potters Bar | 6022 | PBR | 4.37 KM |
| Oakleigh Park | 6020 | OKL | 4.90 KM |
| Brookmans Park | 6074 | BPK | 6.83 KM |
Nearby Listings
| Address | Price | Type | Score | Distance |
|---|---|---|---|---|
| Sunset View, Barnet | £ 1,495,000 | BUY | 8 / 10 | 0.00 KM |
| Sunset View, High Barnet, Hertfordshire, EN5 | £ 2,195,000 | BUY | Unknown | 0.10 KM |
| Albans Road, Barnet, EN5 | £ 750,000 | BUY | 7 / 10 | 0.14 KM |
| Christ Church Lane, Barnet | £ 289,950 | BUY | 6 / 10 | 0.15 KM |
| Christ Church Lane, Barnet | £ 325,000 | BUY | Unknown | 0.15 KM |
Nearby Properties
| Address | Price | Distance |
|---|---|---|
| 8 Sunset View | £ 785,000 | 0.01 KM |
| 14 Sunset View | £ 1,300,000 | 0.01 KM |
| 10 Sunset View | £ 955,000 | 0.01 KM |
| 7 Sunset View | £ 1,100,000 | 0.01 KM |
| 4 Sunset View | £ 560,000 | 0.01 KM |