CH
Tidespring Row, Hebburn, Tyne and Wear, NE31
By Chase Holmes
£ 179,950
Reviews
3 out of 5 stars
Chase Holmes says ..
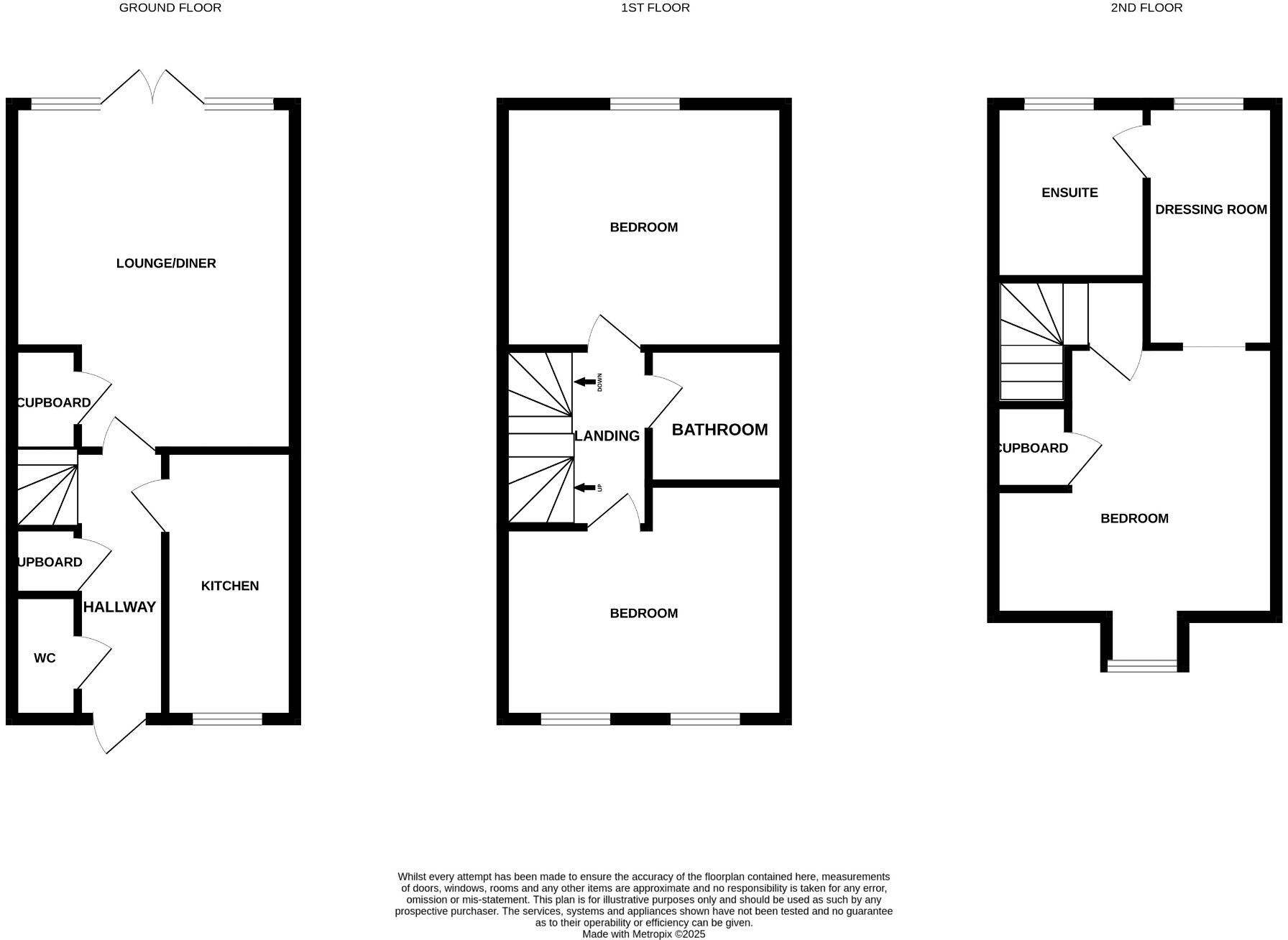
Fantastic three-bedroom terraced town house in Hebburn, offering spacious living, an en suite master, and a garage – perfect for families.
Property Oracle says ..
Therefore, we give this property 6 / 10. *Disclaimer: This is our option and does constitute a recommendation or financial advice. Do your own research. *
- Price
- 8
- Condition
- 7
- Location
- 7
- Land
- 5
- Bedrooms
- 3
- Bathrooms
- 2
- Sqft (est)
- 859.00
The heatmap indicates the level of crime in the area. The color of the heatmap indicates the crime severity and recency.
Metrics Year-on-Year
- Average area value
- 410,714.00 £Increased by 0.52 %
- Est sale value
- 360,780.00 £Increased by 4.48 %
- Average area rental value
- 1,363.00 £/moDecreased by 8.52 %
- Est letting value
- 859.00 £/moUnchanged by 0.00 %
- Est rental Yield
- 3.98 %Decreased by 9.13 %
- Crime Rate
- 4.00 %Unchanged by 0.00 %
from 408,604.00 £
from 345,318.00 £
from 1,490.00 £/mo
from 859.00 £/mo
from 4.38 %
from 4.00 %
Agent Activity
Chase Holmes created the listing.
Nearby Schools
| Name | Type | Ofsted | Distance |
|---|---|---|---|
| St Aloysius Catholic Infant School, Hebburn | Academy Converter | 0.22 KM | |
| St Aloysius Catholic Junior School Academy | Academy Converter | Outstanding | 0.26 KM |
| The Sue Hedley Nursery School | Local Authority Nursery School | Outstanding | 0.99 KM |
| South Tyneside Early Excellence Centre | Children's Centre | 1.06 KM | |
| Keelman'S Way School | Foundation Special School | Good | 1.15 KM |
Images
Nearby Streets
| Name | Average Price | Average Sqft | Distance |
|---|---|---|---|
| Thomas Drive | £ 330,000 | 0 | 0.00 KM |
| Shakespeare Avenue | £ 0 | 0 | 0.00 KM |
| Thistle Street | £ 175,000 | 0 | 0.00 KM |
| B1297 | £ 0 | 0 | 0.00 KM |
| Saint John's Walk | £ 0 | 0 | 0.00 KM |
Nearby Transport
| Name | NLC | TLC | Distance |
|---|---|---|---|
| Heworth | 7766 | HEW | 5.14 KM |
| Manors | 7603 | MAS | 9.58 KM |
Nearby Listings
| Address | Price | Type | Score | Distance |
|---|---|---|---|---|
| Tidespring Row, Hebburn, Tyne and Wear, NE31 | £ 179,950 | BUY | 6 / 10 | 0.00 KM |
| Bicester Grove, Hebburn, Tyne and Wear, NE31 | £ 199,950 | BUY | 7 / 10 | 0.09 KM |
| Olwen Drive, Hebburn | £ 105,000 | BUY | 6 / 10 | 0.10 KM |
| Bicester Grove, Hebburn, NE31 | £ 165,000 | BUY | 7 / 10 | 0.16 KM |
| The Alexander - Plot 26, Bell Street, Hebburn | £ 244,950 | BUY | Unknown | 0.26 KM |
Nearby Properties
| Address | Price | Distance |
|---|---|---|
| 15 Tidespring Row | £ 99,950 | 0.00 KM |
| 20 Tidespring Row | £ 74,000 | 0.00 KM |
| 16 Tidespring Row | £ 72,000 | 0.00 KM |
| 18 Tidespring Row | £ 76,000 | 0.00 KM |
| 19 Tidespring Row | £ 72,000 | 0.00 KM |