MC
Victoria Road East, Thornton-Cleveleys, FY5
By McGowan Housing
£ 65,000
Reviews
3 out of 5 stars
McGowan Housing says ..
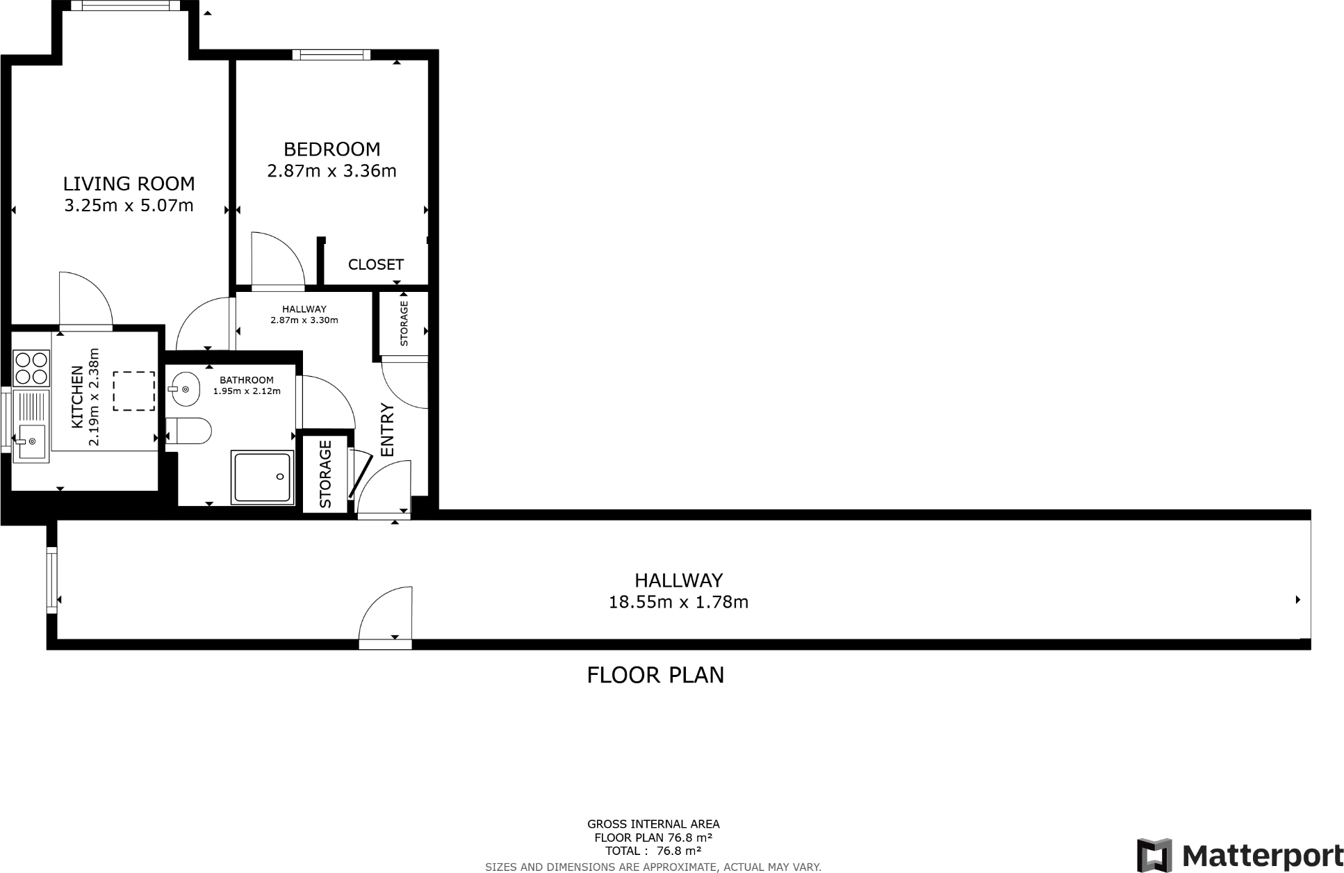
Buy-to-Let Opportunity | Long Term Tenant Currently Situated | 1 Bedroom Flat | Good Condition | Spacious Room | Prime Rental Location Within Thornton-Cleveleys
Property Oracle says ..
Therefore, we give this property 6 / 10. *Disclaimer: This is our option and does constitute a recommendation or financial advice. Do your own research. *
- Price
- 8
- Condition
- 6
- Location
- 7
- Land
- 3
- Bedrooms
- 1
- Bathrooms
- 1
The heatmap indicates the level of crime in the area. The color of the heatmap indicates the crime severity and recency.
Metrics Year-on-Year
- Average area value
- 192,500.00 £Decreased by 11.18 %
- Average area rental value
- 715.00 £/moDecreased by 23.77 %
- Est rental Yield
- 4.46 %Decreased by 14.07 %
- Crime Rate
- 20.00 %Unchanged by 0.00 %
from 216,726.00 £
from 938.00 £/mo
from 5.19 %
from 20.00 %
Agent Activity
McGowan Housing created the listing.
Nearby Schools
| Name | Type | Ofsted | Distance |
|---|---|---|---|
| Thornton Cleveleys Baines Endowed Voluntary Controlled Primary School | Voluntary Controlled School | Good | 0.36 KM |
| Thornton Children'S Centre | Children's Centre | 0.44 KM | |
| Millfield Science & Performing Arts College | Community School | Good | 0.49 KM |
| Stanah Primary School | Community School | Good | 1.10 KM |
| Great Arley School | Community Special School | Good | 1.27 KM |
Images
Nearby Streets
| Name | Average Price | Average Sqft | Distance |
|---|---|---|---|
| Lawsons Court | £ 110,000 | 0 | 0.00 KM |
| Alder Close | £ 0 | 0 | 0.00 KM |
| Torentum Court | £ 0 | 0 | 0.00 KM |
| Brookfield Road | £ 161,500 | 0 | 0.00 KM |
| Hulme Avenue | £ 0 | 0 | 0.00 KM |
Nearby Transport
| Name | NLC | TLC | Distance |
|---|---|---|---|
| Poulton-Le-Fylde | 2671 | PFY | 2.75 KM |
| Layton (Lancs) | 2669 | LAY | 5.00 KM |
| Blackpool North | 2739 | BPN | 7.52 KM |
| Blackpool South | 2740 | BPS | 9.53 KM |
Nearby Listings
| Address | Price | Type | Score | Distance |
|---|---|---|---|---|
| Victoria Road East, Thornton-Cleveleys, FY5 | £ 65,000 | BUY | 6 / 10 | 0.00 KM |
| LAWSWOOD - VICTORIA RD EAST - THORNTON CLEVELEYS - FY5 5BS | £ 90,000 | BUY | 7 / 10 | 0.00 KM |
| Mayfair Gardens, Thornton-Cleveleys, FY5 | £ 175,000 | BUY | 6 / 10 | 0.14 KM |
| 27 Victoria Road East, Thornton-Cleveleys, FY5 5BU | £ 200,000 | BUY | Unknown | 0.19 KM |
| Mayfair Gardens, Thornton-Cleveleys, Lancashire, FY5 5BW | £ 130,000 | BUY | 6 / 10 | 0.21 KM |
Nearby Properties
| Address | Price | Distance |
|---|---|---|
| 3 Lawsons Road | £ 395,000 | 0.08 KM |
| 11 Lawsons Road | £ 285,000 | 0.08 KM |
| 18 Lawsons Road | £ 280,000 | 0.08 KM |
| 25a Victoria Road East | £ 60,000 | 0.13 KM |
| 1 Mayfair Gardens | £ 206,000 | 0.14 KM |