Bucklesham, Ipswich, Suffolk, IP10
By Jackson-Stops
£ 325,000
Reviews
2 out of 5 stars
Jackson-Stops says ..
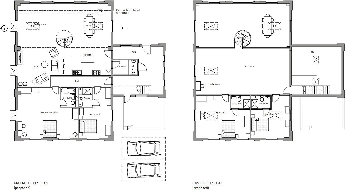
SELF BUILDERS ONLY Former Pump House for Conversion - A rare and attractive opportunity to convert a former pump house into a contemporary modern home, retaining the Victorian charm of this period structure. The Pump House features a red brick exterior, under a pitched red t...
Property Oracle says ..
This property is a PLOT of land with a building that requires extensive renovation. The building is currently derelict and in need of complete modernisation. The location is rural, with the nearest amenities a short drive away. There are a number of primary schools within a reasonable distance. Train links are available at Trimley, Woodbridge, Felixstowe, Melton (Suffolk) and Harwich Town. The list price is significantly below the average price for the area, however, this is likely due to the condition of the property and the significant amount of work required. The plot size is not specified, but it appears to be relatively large. Given the significant cost of renovation, the property may represent good value for money for a buyer who is prepared to undertake a large-scale renovation project.
Therefore, we give this property 5 / 10. *Disclaimer: This is our option and does constitute a recommendation or financial advice. Do your own research. *
- Price
- 7
- Condition
- 2
- Location
- 6
- Land
- 7
- Bedrooms
- 4
- Bathrooms
- 0
- Sqft (est)
- 1,625.00
The heatmap indicates the level of crime in the area. The color of the heatmap indicates the crime severity and recency.
Metrics Year-on-Year
- Average area value
- 453,423.00 £Increased by 25.86 %
- Est sale value
- 578,500.00 £Decreased by 6.56 %
- Average area rental value
- 925.00 £/moDecreased by 22.14 %
- Est letting value
- 0.00 £/moDecreased by 100.00 %
- Est rental Yield
- 2.45 %Decreased by 38.13 %
- Crime Rate
- 0.00 %
Agent Activity
Jackson-Stops created the listing.
Nearby Schools
| Name | Type | Ofsted | Distance |
|---|---|---|---|
| Waldringfield Primary School | Community School | Good | 2.83 KM |
| Bucklesham Primary School | Community School | Good | 3.24 KM |
| Trimley St Martin Primary School | Community School | Good | 3.40 KM |
| Birchwood Primary School | Community School | Outstanding | 5.58 KM |
| Trimley St Mary Primary School | Community School | Good | 5.66 KM |
Images
Nearby Streets
| Name | Average Price | Average Sqft | Distance |
|---|---|---|---|
| Watermill Road | £ 0 | 0 | 0.00 KM |
| Lower House Lane | £ 0 | 0 | 0.00 KM |
Nearby Transport
| Name | NLC | TLC | Distance |
|---|---|---|---|
| Trimley | 7225 | TRM | 6.00 KM |
| Woodbridge | 7228 | WDB | 6.85 KM |
| Felixstowe | 7214 | FLX | 8.30 KM |
| Melton (Suffolk) | 7221 | MES | 8.94 KM |
| Harwich Town | 6905 | HWC | 9.81 KM |
Nearby Listings
| Address | Price | Type | Score | Distance |
|---|---|---|---|---|
| Bucklesham, Ipswich, Suffolk, IP10 | £ 325,000 | BUY | 5 / 10 | 0.00 KM |
| Bucklesham, Nr Ipswich, Suffolk | £ 195,000 | BUY | 5 / 10 | 0.10 KM |
| Newbourne, Woodbridge | £ 170,000 | BUY | 7 / 10 | 0.40 KM |
| Mill Road, Newbourne | £ 600,000 | BUY | 5 / 10 | 0.82 KM |
| Jackson Road, Newbourne | £ 775,000 | BUY | Unknown | 0.87 KM |
Nearby Properties
| Address | Price | Distance |
|---|---|---|
| 22a Mill Road | £ 195,000 | 0.65 KM |
| 29 Mill Road | £ 315,000 | 0.65 KM |
| 28 Mill Road | £ 377,500 | 0.65 KM |
| 19 Mill Road | £ 620,000 | 0.65 KM |
| 22 Mill Road | £ 650,000 | 0.65 KM |