Sandyway Head, Buxton Road, High Peak
By Gascoigne Halman
£ 275,000
Reviews
3 out of 5 stars
Gascoigne Halman says ..
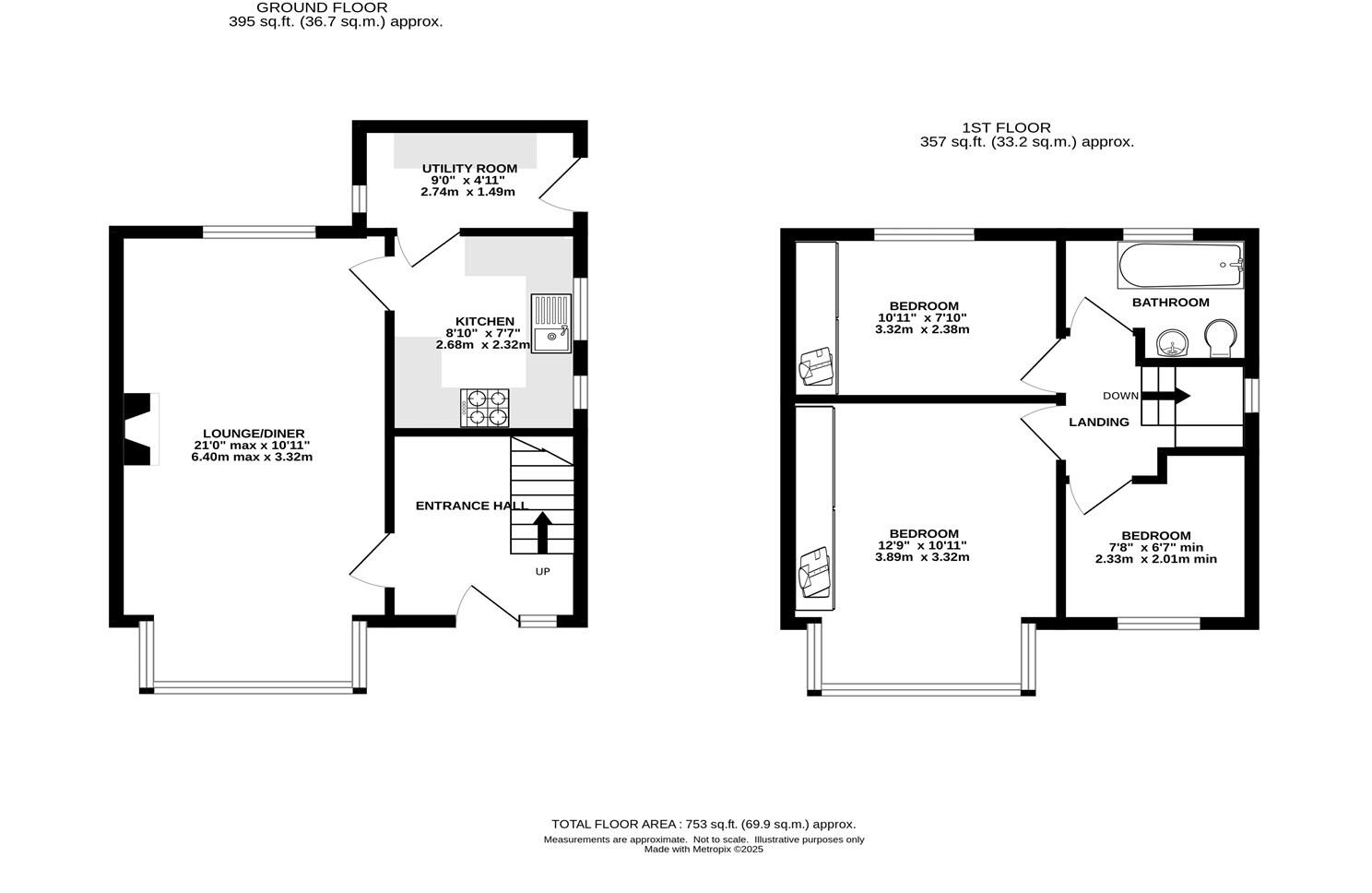
A beautifully presented three bedroom semi detached home with off road parking and detached garage to the rear. The property has undergone significant improvement by the current owners which includes the addition of a useful utility room, a new modern kitchen and attractive re-rendering. There is...
Property Oracle says ..
This three-bedroom semi-detached house located on Buxton Road in Chapel East, High Peak, Derbyshire, presents a compelling opportunity for buyers seeking a comfortable family home in a convenient location. The property’s location is a key advantage, boasting proximity to well-regarded schools and easily accessible railway stations offering connections to wider transport networks. Photos showcase a recently updated kitchen and bathroom, suggesting modern amenities and reduced need for immediate renovations. The property also includes a relatively small garden and a detached garage, providing some external space and additional storage. The asking price reflects current market trends in the area; however, a more comprehensive assessment may benefit from additional data concerning property size in nearby listings, allowing for more precise comparisons on price per square foot. Overall, this property is suitable for families seeking a move to the High Peak area.
Therefore, we give this property 6 / 10. *Disclaimer: This is our option and does constitute a recommendation or financial advice. Do your own research. *
- Price
- 7
- Condition
- 7
- Location
- 7
- Land
- 4
- Bedrooms
- 3
- Bathrooms
- 1
- Sqft (est)
- 753.00
The heatmap indicates the level of crime in the area. The color of the heatmap indicates the crime severity and recency.
Metrics Year-on-Year
- Average area value
- 334,167.00 £Increased by 24.23 %
- Est sale value
- 193,521.00 £Decreased by 19.44 %
- Average area rental value
- 1,252.00 £/moIncreased by 4.33 %
- Est letting value
- 0.00 £/moDecreased by 100.00 %
- Est rental Yield
- 4.50 %Decreased by 15.89 %
- Crime Rate
- 8.00 %Unchanged by 0.00 %
Agent Activity
Gascoigne Halman created the listing.
Nearby Schools
| Name | Type | Ofsted | Distance |
|---|---|---|---|
| Chapel-En-Le-Frith Cofe Vc Primary School | Voluntary Controlled School | Good | 1.01 KM |
| Chapel-En-Le-Frith High School | Community School | Good | 2.60 KM |
| Dove Holes Cofe Primary School | Voluntary Controlled School | Good | 3.06 KM |
| The Meadows | Other Independent Special School | Outstanding | 3.13 KM |
| Chinley Primary School | Foundation School | Good | 3.44 KM |
Images
Nearby Streets
| Name | Average Price | Average Sqft | Distance |
|---|---|---|---|
| Brooklands Road | £ 0 | 0 | 0.00 KM |
| Fernbank | £ 0 | 0 | 0.00 KM |
| Heyworth Road | £ 0 | 0 | 0.00 KM |
| Coarses View | £ 250,000 | 0 | 0.00 KM |
| Brookside Path | £ 420,000 | 0 | 0.00 KM |
Nearby Transport
| Name | NLC | TLC | Distance |
|---|---|---|---|
| Chapel-En-Le-Frith | 2762 | CEF | 2.51 KM |
| Dove Holes | 2766 | DVH | 2.88 KM |
| Chinley | 2823 | CLY | 5.24 KM |
| Buxton | 2946 | BUX | 7.20 KM |
| Whaley Bridge | 2772 | WBR | 9.45 KM |
Nearby Listings
| Address | Price | Type | Score | Distance |
|---|---|---|---|---|
| Sandyway Head, Buxton Road, High Peak | £ 275,000 | BUY | 6 / 10 | 0.00 KM |
| Buxton Road, Chapel-En-Le-Frith, High Peak | £ 225,000 | BUY | 5 / 10 | 0.02 KM |
| Ashfield Road, High Peak | £ 280,000 | BUY | 7 / 10 | 0.12 KM |
| Ashfield Road, Chapel-En-Le-Frith, SK23 | £ 300,000 | BUY | 6 / 10 | 0.13 KM |
| Brooklands Road, Chapel-En-Le-Frith, High Peak | £ 399,950 | BUY | 7 / 10 | 0.18 KM |
Nearby Properties
| Address | Price | Distance |
|---|---|---|
| 37 Buxton Road | £ 143,263 | 0.07 KM |
| 23 Buxton Road | £ 125,000 | 0.07 KM |
| 45 Buxton Road | £ 145,000 | 0.07 KM |
| 41 Buxton Road | £ 139,950 | 0.07 KM |
| 39 Buxton Road | £ 139,950 | 0.07 KM |