The Norfolk Agents says ..
A stylishly presented family home offering versatile accommodation & occupying grounds of c. 1.2 acres, in a delightful rural setting, with exceptional views over the neighbouring countryside.
Property Oracle says ..
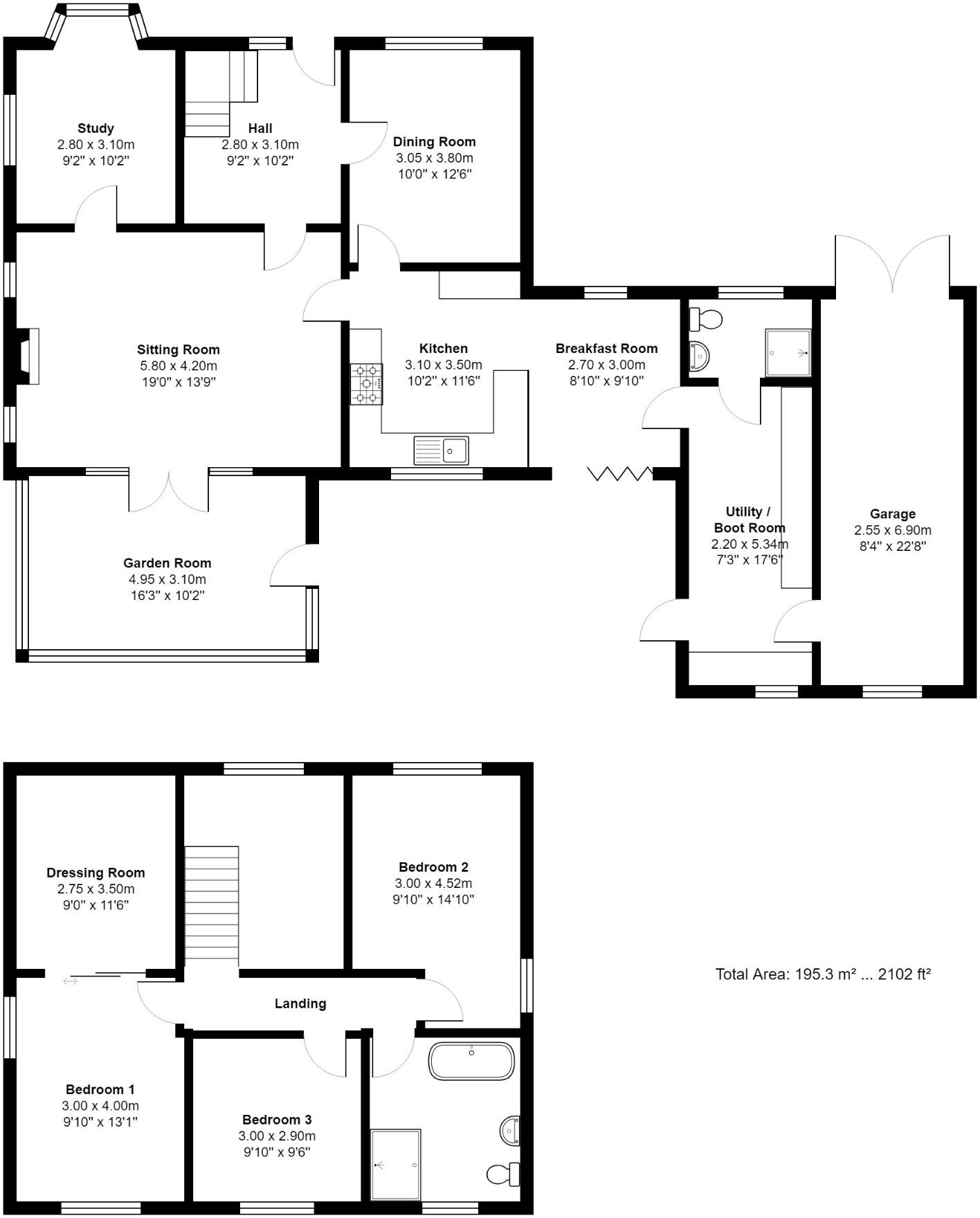
This four-bedroom, two-bathroom detached house located in Blo Norton, Norfolk, is a charming property situated in a tranquil rural setting. The property benefits from a large garden of approximately 1.2 acres, offering extensive outdoor space. The house itself appears to be well-maintained and possibly recently renovated, evidenced by the modern kitchen and bathrooms. The interior is tastefully decorated and presents a comfortable living space, although style choices are naturally subjective. The location, while offering peace and quiet, is relatively remote with regards to public transportation. Families will appreciate the proximity to several well-rated primary schools. While the asking price is substantial, it aligns somewhat with the costs of similar properties in the area, taking into account the significantly larger-than-average plot size. Overall, the property presents a compelling proposition for buyers seeking a spacious, well-maintained family home in a peaceful rural setting in Norfolk, but potential buyers should consider the lack of convenient public transportation access.
Therefore, we give this property 7 / 10. *Disclaimer: This is our option and does constitute a recommendation or financial advice. Do your own research. *
- Price
- 7
- Condition
- 8
- Location
- 7
- Land
- 9
- Bedrooms
- 4
- Bathrooms
- 2
- Sqft (est)
- 2,102.19
The heatmap indicates the level of crime in the area. The color of the heatmap indicates the crime severity and recency.
Metrics Year-on-Year
- Average area value
- 500,000.00 £Decreased by 2.50 %
- Est sale value
- 565,489.11 £Decreased by 24.23 %
- Average area rental value
- 1,500.00 £/moIncreased by 26.05 %
- Est letting value
- 0.00 £/mo
- Est rental Yield
- 3.60 %Increased by 29.50 %
- Crime Rate
- 46.00 %Unchanged by 0.00 %
Agent Activity
The Norfolk Agents created the listing.
Nearby Schools
| Name | Type | Ofsted | Distance |
|---|---|---|---|
| Garboldisham Church Of England Primary Academy | Academy Sponsor Led | 2.74 KM | |
| Hopton Church Of England Voluntary Controlled Primary School | Voluntary Controlled School | Good | 3.85 KM |
| St Andrew'S Cofe Va Primary School, Lopham | Voluntary Aided School | Good | 4.39 KM |
| St Botolph'S Church Of England Voluntary Controlled Primary School | Voluntary Controlled School | Good | 6.33 KM |
| Kenninghall Primary School | Academy Sponsor Led | 6.69 KM |
Images
Nearby Streets
| Name | Average Price | Average Sqft | Distance |
|---|---|---|---|
| Smallworth Lane | £ 585,000 | 0 | 0.00 KM |
| Water Lane | £ 0 | 0 | 0.00 KM |
Nearby Listings
| Address | Price | Type | Score | Distance |
|---|---|---|---|---|
| The Street, Blo Norton | £ 695,000 | BUY | 7 / 10 | 0.00 KM |
| Broadway Lane, Blo Norton | £ 650,000 | BUY | 7 / 10 | 0.13 KM |
| The Street, Blo Norton, Diss, Norfolk, IP22 | £ 725,000 | BUY | 7 / 10 | 0.16 KM |
| The Street, Blo Norton | £ 725,000 | BUY | 6 / 10 | 0.18 KM |
| Blo Norton, Norfolk | £ 795,000 | BUY | Unknown | 0.22 KM |
Nearby Properties
| Address | Price | Distance |
|---|---|---|
| Corner Farm House | £ 462,500 | 0.08 KM |
| Saddlers Cottage | £ 189,950 | 0.10 KM |
| Saddlers | £ 340,000 | 0.10 KM |
| Hampton House | £ 457,500 | 0.10 KM |
| Cottage Farm House | £ 475,000 | 0.10 KM |