Station Road, Derby, DE65
YO

Station Road, Derby, DE65

By Yopa

£ 220,000

Reviews

3 out of 5 stars

Yopa says ..

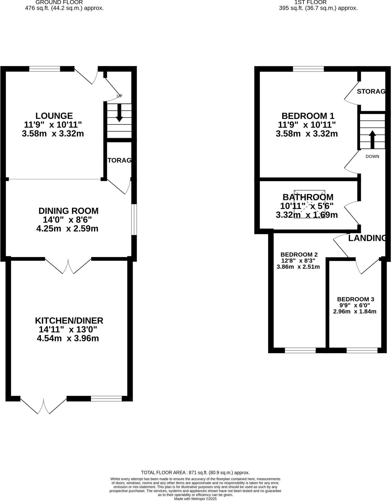
Stylish 3-bed home with spacious lounge, study area, and a stunning kitchen/diner with French doors to garden. Modern bathroom, built-in storage, and generous rear garden with patio and lawn. Sought-after location—early viewing advised!

Property Oracle says ..

Therefore, we give this property 7 / 10. *Disclaimer: This is our option and does constitute a recommendation or financial advice. Do your own research. *

Price
8
Condition
8
Location
7
Land
7
Bedrooms
3
Bathrooms
1
Sqft (est)
791.26

The heatmap indicates the level of crime in the area. The color of the heatmap indicates the crime severity and recency.

Metrics Year-on-Year

Average area value
312,696.00 £
Increased by 21.15 %
from 258,114.00 £
Est sale value
386,134.88 £
Increased by 71.23 %
from 225,509.10 £
Average area rental value
875.00 £/mo
Decreased by 12.50 %
from 1,000.00 £/mo
Est letting value
791.26 £/mo
Unchanged by 0.00 %
from 791.26 £/mo
Est rental Yield
3.36 %
Decreased by 27.74 %
from 4.65 %
Crime Rate
18.00 %
Unchanged by 0.00 %
from 18.00 %

Agent Activity

  • Yopa created the listing.

Nearby Schools

NameTypeOfstedDistance
Heath Fields Primary SchoolCommunity SchoolGood0.69 KM
Richard Wakefield Cofe Primary AcademyAcademy Converter1.57 KM
Church Broughton Cofe Primary SchoolVoluntary Controlled SchoolGood3.71 KM
John Of Rolleston Primary SchoolAcademy Converter4.39 KM
St Modwen'S Catholic Primary SchoolVoluntary Aided SchoolGood5.03 KM

Images

18B1AD10-9920-47BC-89ED-5818436942CF.JPG 6B1895AC-EE31-45C7-B723-3E2B90CEAA9B.JPG 98511A94-E908-42A7-B8DF-BFC974F8A2D4.JPG 5D3BAE26-F0E4-4C93-9811-890BB72780DA.JPG 65890631-22DE-4D36-94E3-9C7FA324A204.JPG 29BC4604-3400-4211-9DE9-67ECE161A4A0.JPG 788B3CF8-891E-4344-B13F-9BF10B6BEBAB.JPG AA225B5D-0542-4DFE-8E91-67B04C458C52.JPG 2C0B0702-467A-40F4-A6E5-2E148A02CB25.JPG 14F9C858-4702-440B-8B7B-513D5D0ED873.JPG F909B4F9-614E-441A-9E52-2CB377DA93CE.JPG 1C3B115E-FEC5-47EF-A1F2-F4A4D8269BC1.JPG 6CB851C1-349C-4587-9C82-B8906134AC30.JPG A19A9D63-7A30-4041-B75E-528E72761750.JPG DE4EA79A-43A6-4FFE-BC51-E532358A2A46.JPG

Nearby Streets

NameAverage PriceAverage SqftDistance
Kensington Drive £ 000.00 KM
Holyrood Close £ 000.00 KM
Kensington Drive £ 000.00 KM
Marston Lane £ 119,95000.00 KM
Frogmore Lane £ 000.00 KM

Nearby Transport

NameNLCTLCDistance
Tutbury And Hatton1783TUT0.65 KM
Burton-On-Trent1658BUT8.18 KM

Nearby Listings

AddressPriceTypeScoreDistance
Station Road, Derby, DE65 £ 220,000BUY7 / 100.00 KM
Station Road, Hatton, Derby £ 150,000BUY5 / 100.10 KM
Eaton Close, Hatton £ 217,500BUY7 / 100.13 KM
Hassall Road, Derby, DE65 £ 282,000BUY6 / 100.14 KM
Hassall Road, Hatton, DE65 £ 260,000BUY7 / 100.14 KM

Nearby Properties

AddressPriceDistance
100 Station Road £ 170,0000.01 KM
130 Station Road £ 134,9500.01 KM
118 Station Road £ 87,5000.01 KM
178 Station Road £ 157,0000.01 KM
92 Station Road £ 205,0000.01 KM