Davies & Way says ..
This delightful home is well located at the top of Radford hill which affords it wonderful open views whilst being only a short walk to the village centre where the local amenities and café are located. The current owners have lived in the property since it was built back in the 1970's. They...
Property Oracle says ..
Therefore, we give this property 7 / 10. *Disclaimer: This is our option and does constitute a recommendation or financial advice. Do your own research. *
- Price
- 8
- Condition
- 6
- Location
- 7
- Land
- 7
- Bedrooms
- 4
- Bathrooms
- 2
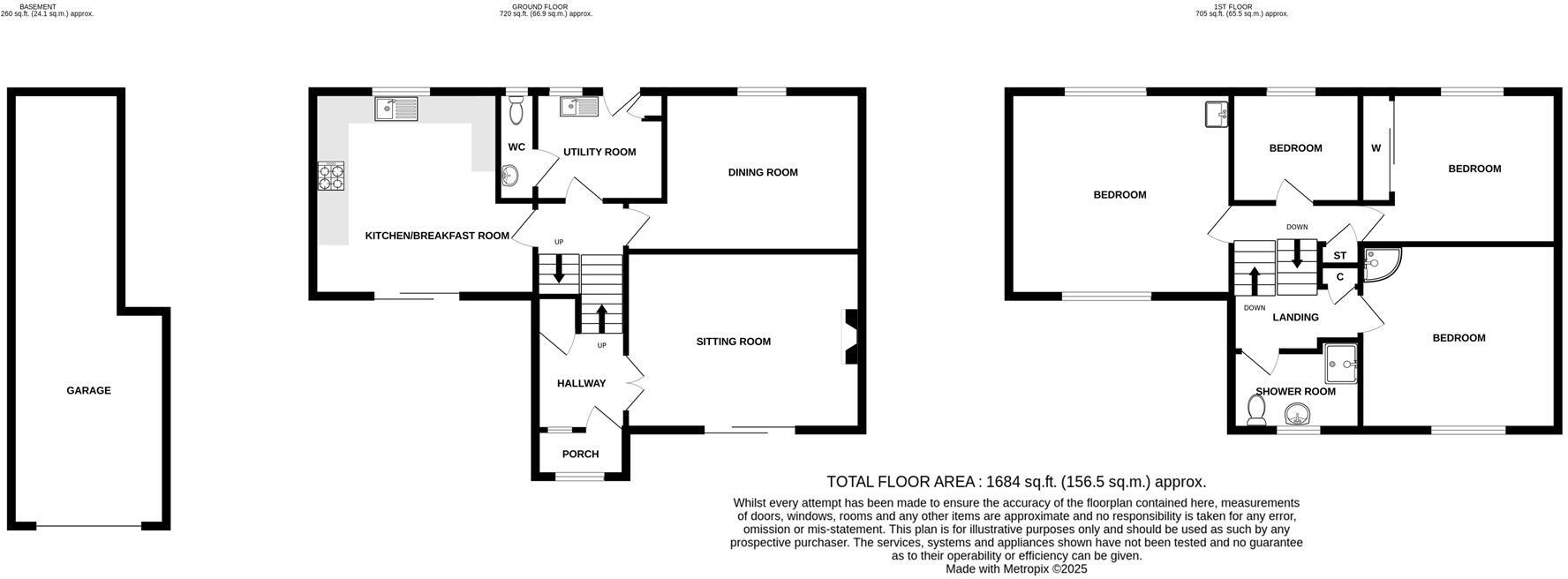
- Sqft (est)
- 1,684.00
The heatmap indicates the level of crime in the area. The color of the heatmap indicates the crime severity and recency.
Metrics Year-on-Year
- Average area value
- 345,000.00 £Decreased by 4.42 %
- Est sale value
- 784,744.00 £Increased by 72.59 %
- Average area rental value
- 1,280.00 £/moDecreased by 25.28 %
- Est letting value
- 1,684.00 £/moUnchanged by 0.00 %
- Est rental Yield
- 4.45 %Decreased by 21.79 %
- Crime Rate
- 17.00 %Unchanged by 0.00 %
from 360,962.00 £
from 454,680.00 £
from 1,713.00 £/mo
from 1,684.00 £/mo
from 5.69 %
from 17.00 %
Agent Activity
Davies & Way created the listing.
Nearby Schools
| Name | Type | Ofsted | Distance |
|---|---|---|---|
| St Mary'S Cofe Primary School | Academy Sponsor Led | 0.61 KM | |
| Farmborough Church Primary School | Academy Converter | 2.64 KM | |
| Paulton Junior School | Community School | Outstanding | 3.75 KM |
| Paulton Infant School | Academy Converter | 3.75 KM | |
| Paulton Children'S Centre | Children's Centre | 3.81 KM |
Images
Nearby Streets
| Name | Average Price | Average Sqft | Distance |
|---|---|---|---|
| Rectory Lane | £ 235,000 | 0 | 0.00 KM |
| Chapel Walk | £ 0 | 0 | 0.00 KM |
| Homefield | £ 590,000 | 0 | 0.00 KM |
| Hillview | £ 0 | 0 | 0.00 KM |
| The Glebe | £ 404,500 | 0 | 0.00 KM |
Nearby Listings
| Address | Price | Type | Score | Distance |
|---|---|---|---|---|
| Radford Hill, Timsbury, Bath | £ 450,000 | BUY | 7 / 10 | 0.00 KM |
| The Old Smithy, 1 Maggs Hill, Timsbury, Bath, Bath and North East Somerset BA2 0LX | £ 125,000 | BUY | Unknown | 0.05 KM |
| South View, Timsbury, Bath, BA2 0LZ | £ 540,000 | BUY | 7 / 10 | 0.06 KM |
| Bakers Parade, Maggs Hill, Timsbury, BA2 | £ 199,950 | BUY | Unknown | 0.07 KM |
| South View, Timsbury | £ 237,500 | BUY | 7 / 10 | 0.07 KM |
Nearby Properties
| Address | Price | Distance |
|---|---|---|
| 8 Radford Hill | £ 249,000 | 0.06 KM |
| 3 Radford Hill | £ 250,000 | 0.06 KM |
| 7 Radford Hill | £ 329,000 | 0.06 KM |
| Sunholme | £ 175,000 | 0.07 KM |
| Meadow View | £ 385,000 | 0.07 KM |