The Agency UK says ..
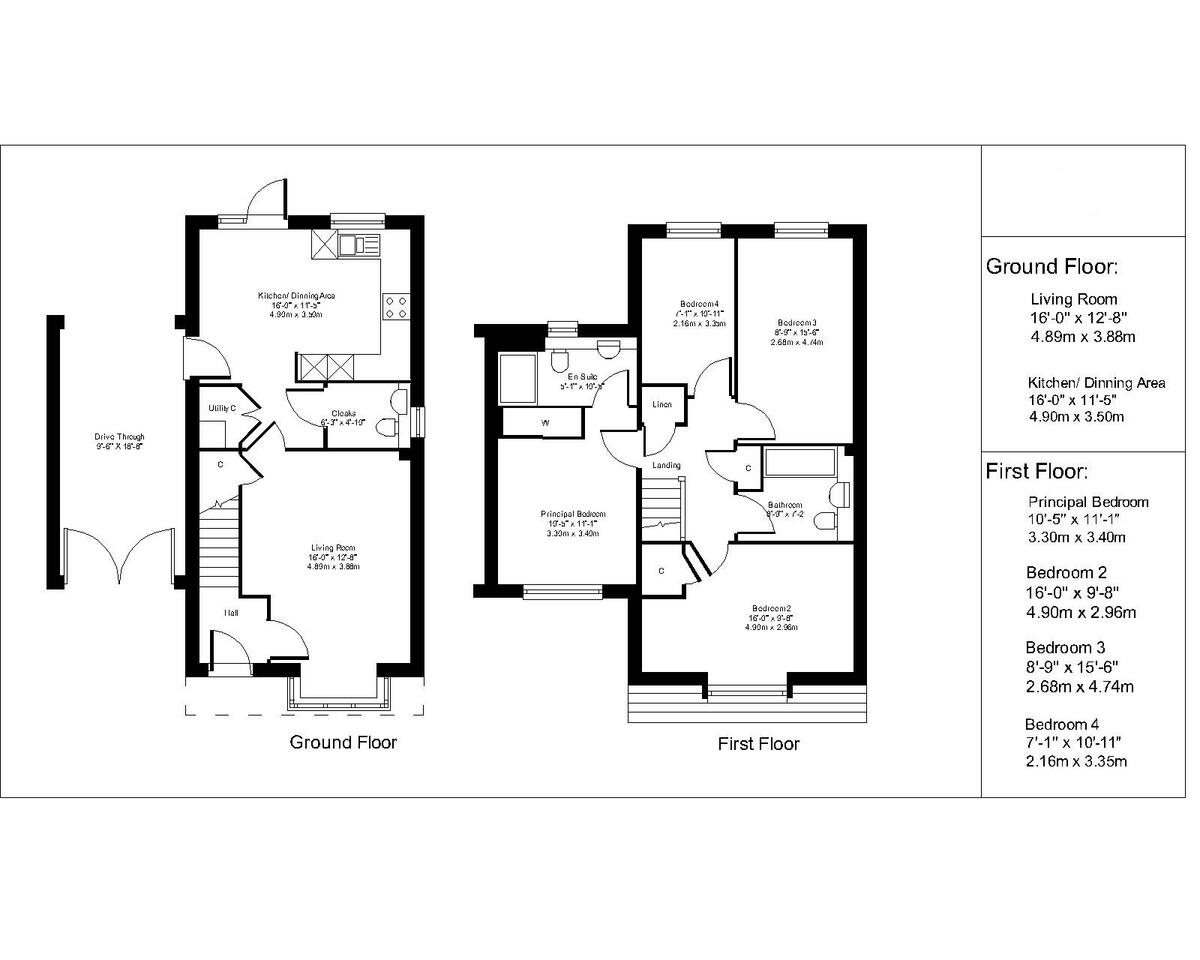
Modern four-bedroom semi detached home in Ewhurst with south-facing garden, garage, EV charging, solar panels, and underfloor heating. Built in 2023, close to local amenities and schools. Stylish, energy-efficient, and ready to move into
Property Oracle says ..
Therefore, we give this property 7 / 10. *Disclaimer: This is our option and does constitute a recommendation or financial advice. Do your own research. *
- Price
- 6
- Condition
- 9
- Location
- 8
- Land
- 7
- Bedrooms
- 4
- Bathrooms
- 3
- Sqft (est)
- 864.39
The heatmap indicates the level of crime in the area. The color of the heatmap indicates the crime severity and recency.
Metrics Year-on-Year
- Average area value
- 272,143.00 £Decreased by 0.84 %
- Est sale value
- 211,775.55 £Increased by 2.08 %
- Average area rental value
- 950.00 £/moDecreased by 12.68 %
- Est letting value
- 0.00 £/mo
- Est rental Yield
- 4.19 %Decreased by 11.97 %
- Crime Rate
- 45.00 %Unchanged by 0.00 %
from 274,456.00 £
from 207,453.60 £
from 1,088.00 £/mo
from 0.00 £/mo
from 4.76 %
from 45.00 %
Agent Activity
The Agency UK created the listing.
Nearby Schools
| Name | Type | Ofsted | Distance |
|---|---|---|---|
| Ewhurst Cofe Aided Infant School | Voluntary Aided School | Outstanding | 0.60 KM |
| Hurtwood House School | Other Independent School | 2.97 KM | |
| Duke Of Kent School | Other Independent School | 3.00 KM | |
| Park Mead Primary | Foundation School | Good | 3.75 KM |
| St Joseph'S Specialist Trust | Non-maintained Special School | Outstanding | 4.24 KM |
Images
Nearby Streets
| Name | Average Price | Average Sqft | Distance |
|---|---|---|---|
| Cranleigh Road | £ 0 | 0 | 0.00 KM |
| Links Close | £ 0 | 0 | 0.00 KM |
Nearby Transport
| Name | NLC | TLC | Distance |
|---|---|---|---|
| Gomshall | 5298 | GOM | 7.86 KM |
Nearby Listings
| Address | Price | Type | Score | Distance |
|---|---|---|---|---|
| Oxmead Street, Ewhurst, GU6 | £ 600,000 | BUY | 7 / 10 | 0.00 KM |
| Larkfield, Ewhurst, Cranleigh, Surrey | £ 585,000 | BUY | Unknown | 0.12 KM |
| Larkfield, Ewhurst, Cranleigh, Surrey | £ 386,500 | BUY | Unknown | 0.12 KM |
| Larkfield, Ewhurst | £ 375,000 | BUY | 6 / 10 | 0.12 KM |
| Williams Place, Ewhurst, Cranleigh, Surrey | £ 525,000 | BUY | 7 / 10 | 0.14 KM |
Nearby Properties
| Address | Price | Distance |
|---|---|---|
| 7 Larkfield | £ 485,000 | 0.12 KM |
| 29 Larkfield | £ 399,950 | 0.12 KM |
| 18 Larkfield | £ 495,000 | 0.12 KM |
| 10 Larkfield | £ 350,000 | 0.12 KM |
| 28 Larkfield | £ 199,950 | 0.12 KM |