Lower Road, Surrey Quays SE16
By Alex Neil Estate Agents
£ 1,000,000
Reviews
2 out of 5 stars
Alex Neil Estate Agents says ..
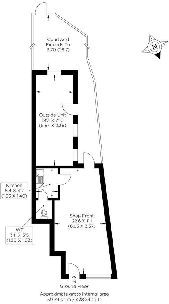
This freehold mixed-use property presents a compelling investment opportunity, ideally suited to property investors and developers alike. The premises comprise a ground floor retail unit, a self-contained one-bedroom apartment on the first floor, and three en-suite HMO rooms with a shared kitchen...
Property Oracle says ..
This property, located on Lower Road in Rotherhithe, presents a unique opportunity. While its location offers convenient access to transportation and nearby schools, the property itself requires extensive renovation. The limited land and current condition significantly impact its value, making the list price seem high relative to comparable properties in the area. Potential buyers should carefully consider the renovation costs and potential return on investment before making an offer.
Therefore, we give this property 4 / 10. *Disclaimer: This is our option and does constitute a recommendation or financial advice. Do your own research. *
- Price
- 4
- Condition
- 3
- Location
- 7
- Land
- 2
- Bedrooms
- 4
- Bathrooms
- 2
- Sqft (est)
- 428.30
The heatmap indicates the level of crime in the area. The color of the heatmap indicates the crime severity and recency.
Metrics Year-on-Year
- Average area value
- 622,222.00 £Increased by 5.44 %
- Est sale value
- 424,873.60 £Increased by 48.95 %
- Average area rental value
- 2,241.00 £/moIncreased by 5.31 %
- Est letting value
- 1,284.90 £/moIncreased by 50.00 %
- Est rental Yield
- 4.32 %Decreased by 0.23 %
- Crime Rate
- 9.00 %Unchanged by 0.00 %
Agent Activity
Alex Neil Estate Agents created the listing.
Nearby Schools
| Name | Type | Ofsted | Distance |
|---|---|---|---|
| Marathon Science School | Other Independent School | Good | 0.47 KM |
| Rotherhithe Primary School | Community School | Good | 0.48 KM |
| Rotherhithe Primary School & Children'S Centre | Children's Centre | 0.48 KM | |
| Cavendish School | Other Independent Special School | Outstanding | 0.64 KM |
| St Joseph'S Catholic Primary School | Voluntary Aided School | Outstanding | 0.75 KM |
Images
Nearby Streets
| Name | Average Price | Average Sqft | Distance |
|---|---|---|---|
| Worgan Street | £ 0 | 0 | 0.00 KM |
| Luxford Street | £ 0 | 0 | 0.00 KM |
| Warndon Street | £ 0 | 0 | 0.00 KM |
| Marker Way | £ 0 | 0 | 0.00 KM |
| Hawkstone Road | £ 0 | 0 | 0.00 KM |
Nearby Transport
| Name | NLC | TLC | Distance |
|---|---|---|---|
| Surrey Quays | 1083 | SQE | 0.22 KM |
| Canada Water | 1659 | ZCW | 0.75 KM |
| New Cross | 5150 | NWX | 0.75 KM |
| South Bermondsey | 5425 | SBM | 1.12 KM |
| Rotherhithe | 1039 | ROE | 1.16 KM |
Nearby Listings
| Address | Price | Type | Score | Distance |
|---|---|---|---|---|
| Lower Road, Surrey Quays SE16 | £ 1,000,000 | BUY | 4 / 10 | 0.00 KM |
| Tawny Way, Surrey Quays, SE16 | £ 325,000 | BUY | 6 / 10 | 0.07 KM |
| Tawny Way, London, SE16 2NQ | £ 379,500 | BUY | 5 / 10 | 0.07 KM |
| Cope Street, Harbord House Cope Street, SE16 | £ 430,000 | BUY | 5 / 10 | 0.08 KM |
| 5 Tawny Way, Fulmar House, London, SE16 2NN | £ 345,000 | BUY | Unknown | 0.09 KM |
Nearby Properties
| Address | Price | Distance |
|---|---|---|
| 239 Lower Road | £ 10,000 | 0.01 KM |
| 197 Lower Road | £ 159,500 | 0.01 KM |
| 235 Lower Road | £ 330,000 | 0.01 KM |
| 31 Tawny Way | £ 310,000 | 0.01 KM |
| 26 Tawny Way | £ 170,000 | 0.08 KM |