Cuffern, Roch, Haverfordwest
By West Wales Properties
£ 375,000
Reviews
3 out of 5 stars
West Wales Properties says ..
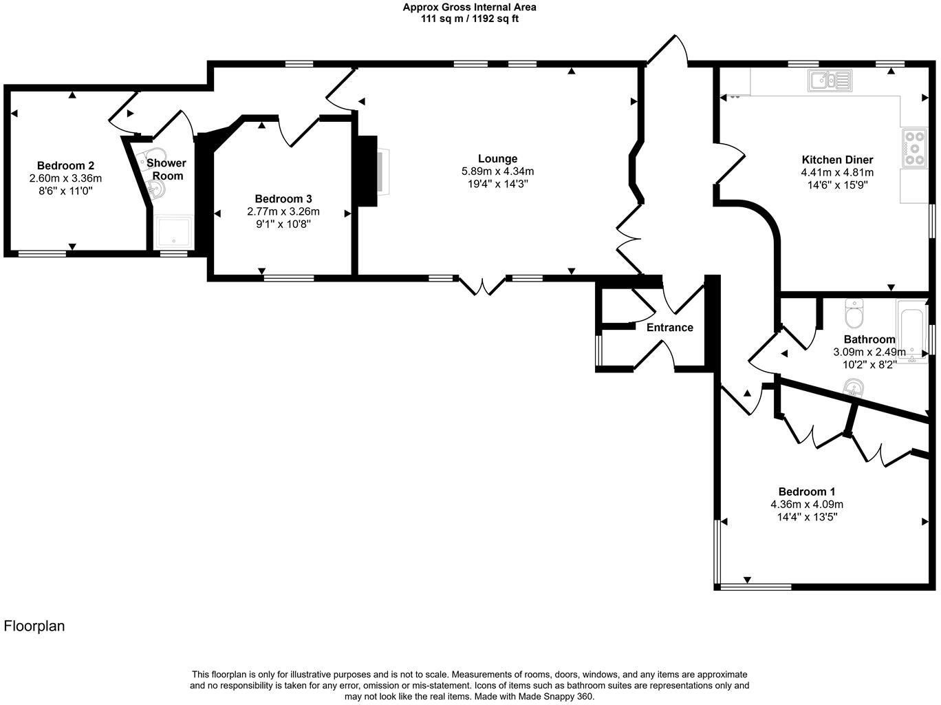
A beautifully presented three bedroom bungalow with vaulted ceilings located in the highly sought after rural hamlet of Cuffern. The accommodation of a high standard briefly comprises: Entrance Porch, Hallway, Lounge, Kitchen/Dining Room, Bathroom, Shower Room and Three Bedrooms. Benefi...
Property Oracle says ..
Therefore, we give this property 6 / 10. *Disclaimer: This is our option and does constitute a recommendation or financial advice. Do your own research. *
- Price
- 6
- Condition
- 8
- Location
- 6
- Land
- 7
- Bedrooms
- 3
- Bathrooms
- 2
- Sqft (est)
- 969.48
The heatmap indicates the level of crime in the area. The color of the heatmap indicates the crime severity and recency.
Metrics Year-on-Year
- Average area value
- 278,905.00 £Increased by 2.67 %
- Est sale value
- 266,607.00 £Increased by 50.27 %
- Average area rental value
- 800.00 £/moDecreased by 34.53 %
- Est letting value
- 0.00 £/mo
- Est rental Yield
- 3.44 %Decreased by 36.30 %
- Crime Rate
- 0.00 %
from 271,663.00 £
from 177,414.84 £
from 1,222.00 £/mo
from 0.00 £/mo
from 5.40 %
from 0.00 %
Agent Activity
West Wales Properties created the listing.
Nearby Schools
| Name | Type | Ofsted | Distance |
|---|---|---|---|
| Roch C.P. School | Welsh Establishment | 4.13 KM | |
| Broad Haven C.P. School | Welsh Establishment | 9.20 KM | |
| Marlowe St David'S Education Unit | Welsh Establishment | 9.24 KM |
Images
Nearby Streets
| Name | Average Price | Average Sqft | Distance |
|---|---|---|---|
| Chapel Road | £ 350,000 | 0 | 0.00 KM |
| Summerhill Close | £ 0 | 0 | 0.00 KM |
Nearby Listings
| Address | Price | Type | Score | Distance |
|---|---|---|---|---|
| Cuffern, Roch, Haverfordwest | £ 375,000 | BUY | 6 / 10 | 0.00 KM |
| The Woodlands, Cuffern, Pembrokeshire, SA62 | £ 65,000 | BUY | 6 / 10 | 0.00 KM |
| The Woodlands, Cuffern, Pembrokeshire, SA62 | £ 65,000 | BUY | 7 / 10 | 0.20 KM |
| The Woodlands, Roch, Haverfordwest | £ 55,000 | BUY | 4 / 10 | 0.20 KM |
| Cuffern Manor Cottages, Roch, Haverfordwest | £ 275,000 | BUY | Unknown | 0.21 KM |
Nearby Properties
| Address | Price | Distance |
|---|---|---|
| 3 Courtfield Drive | £ 340,000 | 1.64 KM |
| 1 Courtfield Drive | £ 329,000 | 1.64 KM |
| 6 Courtfield Drive | £ 375,100 | 1.64 KM |
| 9 Cuffern Road | £ 195,000 | 1.70 KM |
| 16 Cuffern Road | £ 248,500 | 1.72 KM |