Plot 1, Charles Place, Dickens Lane, Poynton
By Gascoigne Halman
£ 950,000
Reviews
4 out of 5 stars
Gascoigne Halman says ..
*** LAST REMAINING HOUSE***OPEN DAY WEDNESDAY 28TH MAY 2PM- 4PM *** "CHARLES PLACE" is an EXCLUSIVE DEVELOPMENT of FIVE BESPOKE DETACHED FAMILY HOMES constructed to a HIGH SPECIFICATION by LABC AWARD WINNING local developers Abode. OCCUPYING...
Property Oracle says ..
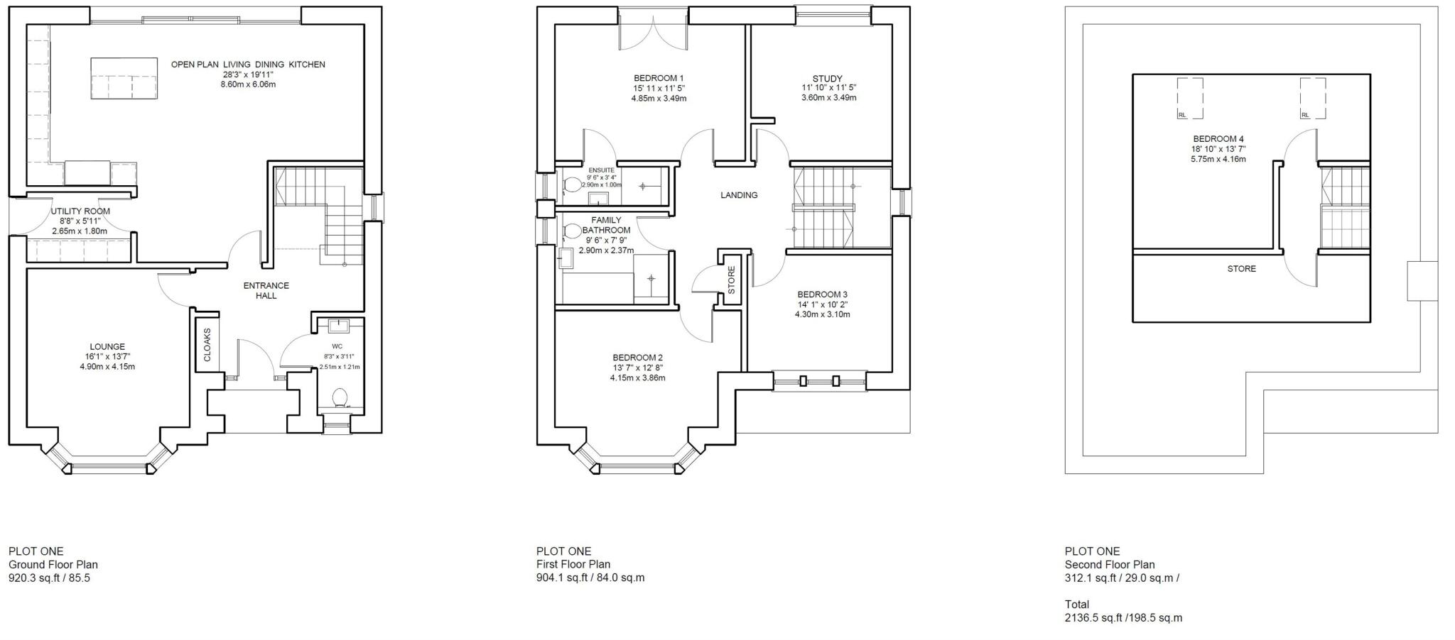
This property is a new build detached house located in Poynton, Cheshire. The location benefits from being close to several highly-rated schools, including Vernon Primary School (Outstanding Ofsted rating) and Poynton High School. Transport links are also good, with Poynton train station within a reasonable distance. The property itself is in excellent condition, appearing modern and well-maintained. The images show a spacious layout, modern kitchen and bathrooms, and a good-sized garden. Given the property’s size (1727 sqft), condition, location and amenities, the list price of £950,000 is at the higher end of the market but comparable to other similar new build properties in the area. The average price per sqft in the area is £532.00, and this property is significantly larger than the average. The plot size is also a considerable size, adding to the overall value.
Therefore, we give this property 8 / 10. *Disclaimer: This is our option and does constitute a recommendation or financial advice. Do your own research. *
- Price
- 7
- Condition
- 10
- Location
- 9
- Land
- 8
- Bedrooms
- 5
- Bathrooms
- 2
- Sqft (est)
- 1,727.10
- Lot (est)
- 2,136.50
The heatmap indicates the level of crime in the area. The color of the heatmap indicates the crime severity and recency.
Metrics Year-on-Year
- Average area value
- 562,143.00 £Decreased by 0.87 %
- Est sale value
- 818,645.40 £Increased by 37.39 %
- Average area rental value
- 1,050.00 £/moDecreased by 21.88 %
- Est letting value
- 0.00 £/mo
- Est rental Yield
- 2.24 %Decreased by 21.13 %
- Crime Rate
- 1.00 %Unchanged by 0.00 %
Agent Activity
Gascoigne Halman created the listing.
Nearby Schools
| Name | Type | Ofsted | Distance |
|---|---|---|---|
| Poynton Children'S Centre | Children's Centre Linked Site | 0.19 KM | |
| Vernon Primary School | Community School | Outstanding | 0.20 KM |
| St Paul'S Catholic Primary School, A Voluntary Academy | Academy Converter | 0.31 KM | |
| Poynton High School | Academy Converter | 0.73 KM | |
| Worth Primary School | Academy Converter | 1.12 KM |
Images
Nearby Streets
| Name | Average Price | Average Sqft | Distance |
|---|---|---|---|
| School Lane | £ 475,000 | 0 | 0.00 KM |
| Fountain Close | £ 0 | 0 | 0.00 KM |
| Abbey Court | £ 514,333 | 0 | 0.00 KM |
| Ash Road | £ 0 | 0 | 0.00 KM |
| Lawrence Place | £ 199,950 | 0 | 0.00 KM |
Nearby Transport
| Name | NLC | TLC | Distance |
|---|---|---|---|
| Poynton | 2874 | PYT | 1.92 KM |
| Adlington (Cheshire) | 2939 | ADC | 3.23 KM |
| Hazel Grove | 2768 | HAZ | 3.73 KM |
| Middlewood | 2971 | MDL | 4.23 KM |
| Bramhall | 2944 | BML | 5.34 KM |
Nearby Listings
| Address | Price | Type | Score | Distance |
|---|---|---|---|---|
| Plot 1, Charles Place, Dickens Lane, Poynton | £ 950,000 | BUY | 8 / 10 | 0.00 KM |
| Plot 5, Charles Place, Dickens Lane, Poynton | £ 825,000 | BUY | 8 / 10 | 0.01 KM |
| Dickens Lane, Poynton, Stockport, Cheshire, SK12 1NT | £ 950,000 | BUY | 7 / 10 | 0.01 KM |
| Bagstock Avenue, Poynton | £ 425,000 | BUY | 8 / 10 | 0.15 KM |
| Dickens Lane, Poynton | £ 425,000 | BUY | 7 / 10 | 0.23 KM |
Nearby Properties
| Address | Price | Distance |
|---|---|---|
| 111 Dickens Lane | £ 268,000 | 0.16 KM |
| 74 Dickens Lane | £ 195,000 | 0.16 KM |
| 82 Dickens Lane | £ 455,000 | 0.16 KM |
| 101 Dickens Lane | £ 136,000 | 0.16 KM |
| 91 Dickens Lane | £ 295,000 | 0.16 KM |