Chancellors says ..
This well-presented three-bedroom end-of-terrace home offers comfortable and convenient living in a sought-after residential location, just 1.4 miles from the station,. Ideal for commuters and families alike.
Property Oracle says ..
Therefore, we give this property 5 / 10. *Disclaimer: This is our option and does constitute a recommendation or financial advice. Do your own research. *
- Price
- 4
- Condition
- 4
- Location
- 7
- Land
- 7
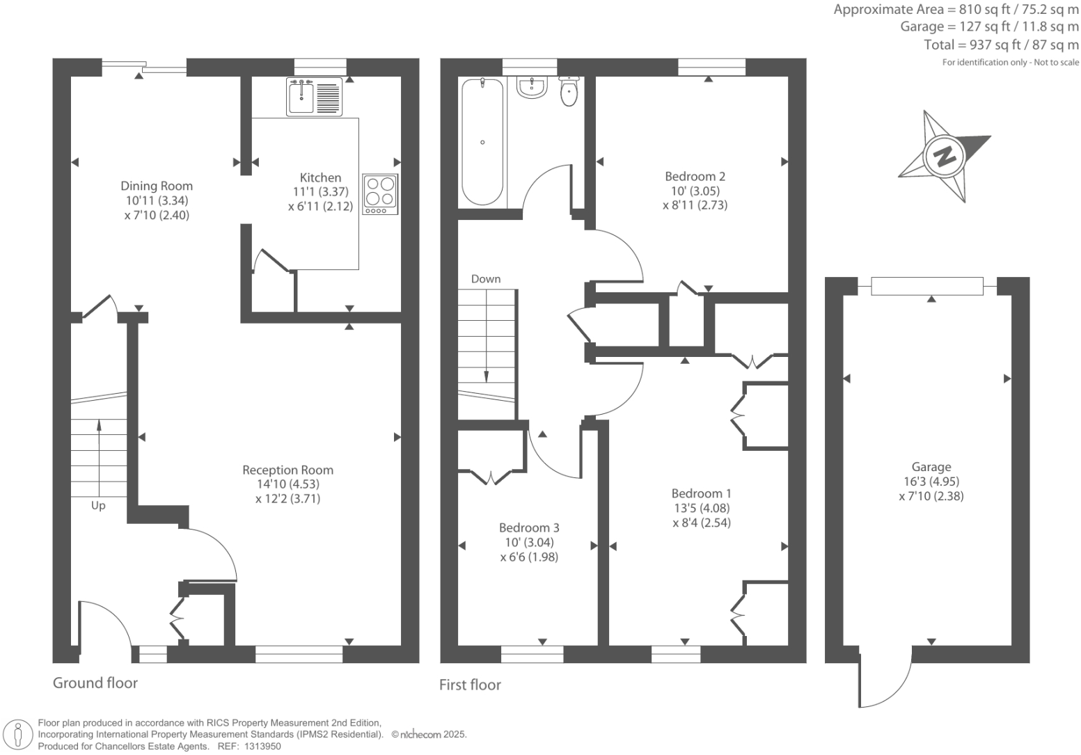
- Bedrooms
- 3
- Bathrooms
- 1
- Sqft (est)
- 734.29
The heatmap indicates the level of crime in the area. The color of the heatmap indicates the crime severity and recency.
Metrics Year-on-Year
- Average area value
- 357,000.00 £Increased by 6.10 %
- Est sale value
- 345,116.30 £Increased by 35.45 %
- Average area rental value
- 1,200.00 £/moIncreased by 4.62 %
- Est letting value
- 734.29 £/moUnchanged by 0.00 %
- Est rental Yield
- 4.03 %Decreased by 1.47 %
- Crime Rate
- 4.00 %Unchanged by 0.00 %
from 336,467.00 £
from 254,798.63 £
from 1,147.00 £/mo
from 734.29 £/mo
from 4.09 %
from 4.00 %
Agent Activity
Chancellors created the listing.
Nearby Schools
| Name | Type | Ofsted | Distance |
|---|---|---|---|
| Fir Tree Primary School And Nursery | Academy Sponsor Led | Requires improvement | 0.95 KM |
| Parsons Down Junior School | Community School | Good | 1.17 KM |
| Parsons Down Infant School | Community School | Good | 1.26 KM |
| Engaging Potential | Other Independent Special School | Good | 1.47 KM |
| Whitelands Park Primary School | Academy Sponsor Led | Good | 2.44 KM |
Images
Nearby Streets
| Name | Average Price | Average Sqft | Distance |
|---|---|---|---|
| Southdown Road | £ 425,000 | 0 | 0.00 KM |
| Lakeview | £ 0 | 0 | 0.00 KM |
| Jubilee Court | £ 180,000 | 0 | 0.00 KM |
| Pinfold Place | £ 0 | 0 | 0.00 KM |
| Pinder Place | £ 430,000 | 0 | 0.00 KM |
Nearby Transport
| Name | NLC | TLC | Distance |
|---|---|---|---|
| Newbury Racecourse | 3071 | NRC | 2.48 KM |
| Newbury | 3074 | NBY | 4.13 KM |
| Thatcham | 3152 | THA | 4.89 KM |
Nearby Listings
| Address | Price | Type | Score | Distance |
|---|---|---|---|---|
| Thatcham, Berkshire, RG19 | £ 330,000 | BUY | 5 / 10 | 0.00 KM |
| Robertsfield, Thatcham, Berkshire, RG19 | £ 325,000 | BUY | 6 / 10 | 0.06 KM |
| ROBERTSFIELD, THATCHAM | £ 240,000 | BUY | Unknown | 0.08 KM |
| Benham Hill, Thatcham, Berkshire, RG18 | £ 365,000 | BUY | 7 / 10 | 0.11 KM |
| Arkle Avenue, Thatcham, Berkshire, RG19 | £ 500,000 | BUY | 7 / 10 | 0.14 KM |
Nearby Properties
| Address | Price | Distance |
|---|---|---|
| 41 Robertsfield | £ 153,000 | 0.05 KM |
| 61 Robertsfield | £ 275,000 | 0.05 KM |
| 28 Robertsfield | £ 209,950 | 0.05 KM |
| 32 Robertsfield | £ 186,500 | 0.05 KM |
| 57 Robertsfield | £ 150,000 | 0.05 KM |