OR
Upper Charles Street, Camberley, Surrey, GU15
By Orchard
£ 200,000
Reviews
2 out of 5 stars
Orchard says ..
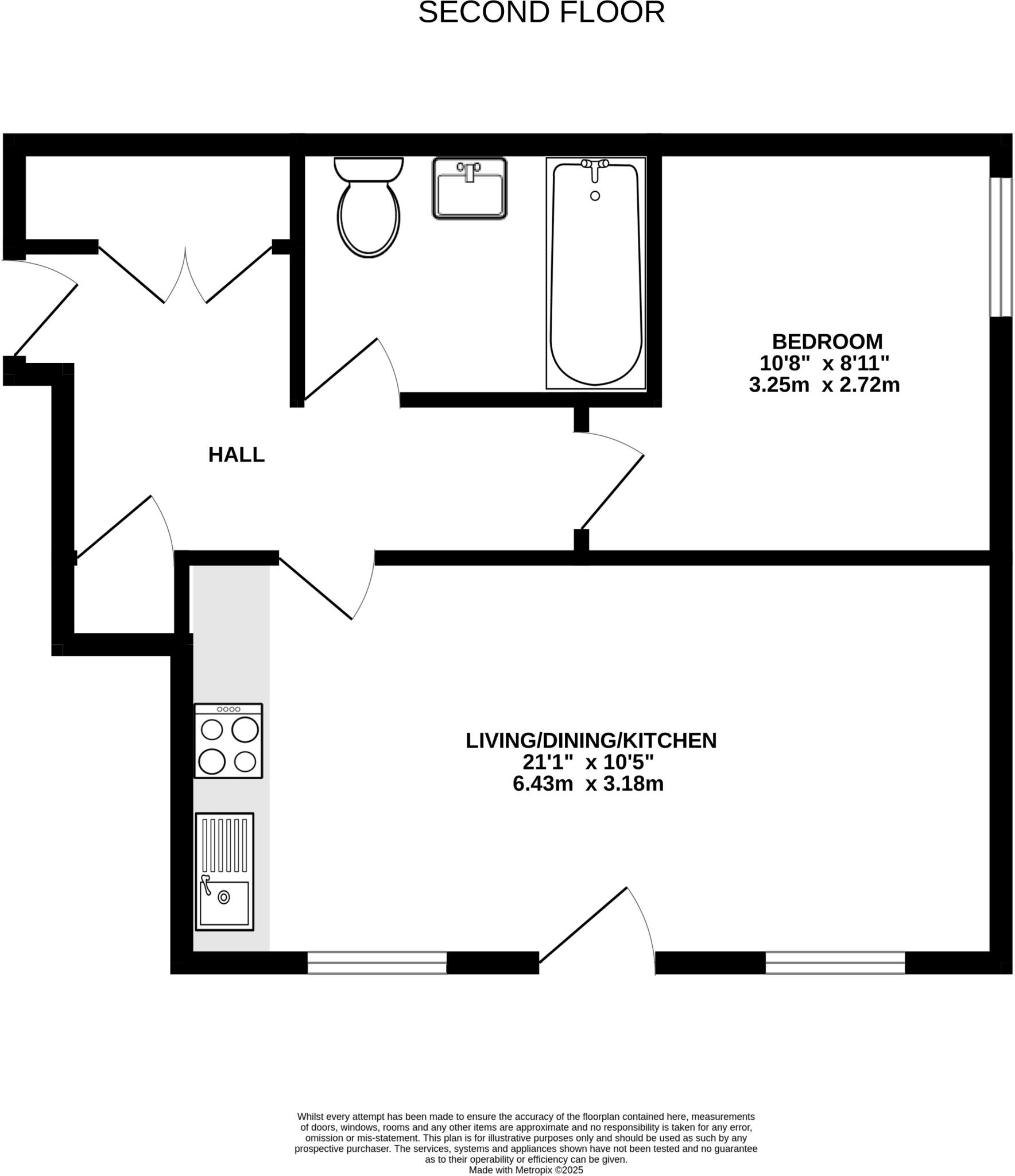
Offered to the market is this stunning one-bedroom second floor apartment, set in a sought-after location. This modern property boasts spacious rooms, high quality finishes, and plenty of natural light throughout. The open plan living area is perfect for entertaining with a fully equipped kitchen...
Property Oracle says ..
Therefore, we give this property 4 / 10. *Disclaimer: This is our option and does constitute a recommendation or financial advice. Do your own research. *
- Price
- 3
- Condition
- 8
- Location
- 7
- Land
- 1
- Bedrooms
- 1
- Bathrooms
- 0
- Sqft (est)
- 315.17
The heatmap indicates the level of crime in the area. The color of the heatmap indicates the crime severity and recency.
Metrics Year-on-Year
- Average area value
- 226,464.00 £Decreased by 27.05 %
- Est sale value
- 90,768.96 £Decreased by 24.61 %
- Average area rental value
- 1,243.00 £/moDecreased by 7.99 %
- Est letting value
- 315.17 £/moUnchanged by 0.00 %
- Est rental Yield
- 6.59 %Increased by 26.25 %
- Crime Rate
- 61.00 %Unchanged by 0.00 %
from 310,433.00 £
from 120,394.94 £
from 1,351.00 £/mo
from 315.17 £/mo
from 5.22 %
from 61.00 %
Agent Activity
Orchard created the listing.
Nearby Schools
| Name | Type | Ofsted | Distance |
|---|---|---|---|
| South Camberley Sure Start Children'S Centre | Children's Centre Linked Site | 0.64 KM | |
| Lyndhurst School | Other Independent School | 0.73 KM | |
| Kings International College | Foundation School | Good | 1.73 KM |
| South Camberley Primary And Nursery School | Academy Converter | 1.74 KM | |
| The Orchard Sure Start Children'S Centre | Children's Centre | 1.96 KM |
Images
Nearby Streets
| Name | Average Price | Average Sqft | Distance |
|---|---|---|---|
| Charles Street cycle path | £ 185,000 | 0 | 0.00 KM |
| High Street | £ 140,000 | 0 | 0.00 KM |
| The Bowlings | £ 357,500 | 0 | 0.00 KM |
| Shelley Court | £ 0 | 0 | 0.00 KM |
| Firlands Avenue | £ 735,000 | 0 | 0.00 KM |
Nearby Transport
| Name | NLC | TLC | Distance |
|---|---|---|---|
| Camberley | 5682 | CAM | 0.62 KM |
| Frimley | 5683 | FML | 2.95 KM |
| Blackwater | 5625 | BAW | 3.09 KM |
| Farnborough North | 5688 | FNN | 4.09 KM |
| Farnborough (Main) | 5521 | FNB | 4.68 KM |
Nearby Listings
| Address | Price | Type | Score | Distance |
|---|---|---|---|---|
| Upper Charles Street, Camberley, Surrey, GU15 | £ 200,000 | BUY | 4 / 10 | 0.00 KM |
| Upper Charles Street, Camberley, Surrey, GU15 | £ 210,000 | BUY | 6 / 10 | 0.00 KM |
| Upper Charles Street, Camberley, Surrey, GU15 | £ 230,000 | BUY | 5 / 10 | 0.00 KM |
| Upper Charles Street, Camberley | £ 300,000 | BUY | 5 / 10 | 0.02 KM |
| North Court, Camberley | £ 180,000 | BUY | 6 / 10 | 0.02 KM |
Nearby Properties
| Address | Price | Distance |
|---|---|---|
| 8 Southern Road | £ 140,000 | 0.14 KM |
| 48 Southern Road | £ 210,000 | 0.14 KM |
| 42d Southern Road | £ 47,950 | 0.14 KM |
| 34 Southern Road | £ 475,000 | 0.14 KM |
| 14 Southern Road | £ 297,000 | 0.14 KM |