Oak Place, Newton Abbot, TQ12 2EX
By Simply Green Estate Agents
£ 220,000
Reviews
3 out of 5 stars
Simply Green Estate Agents says ..
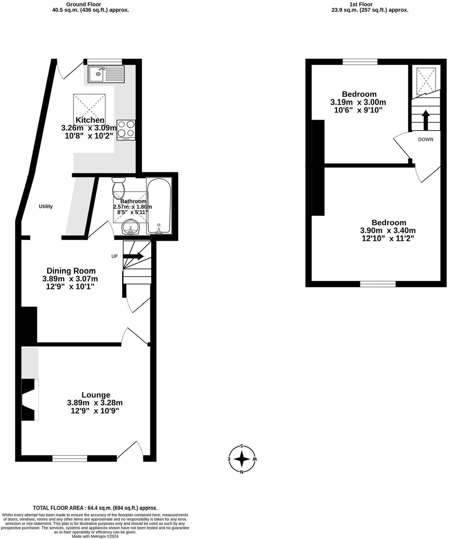
NO ONWARD CHAIN! Situated just a short walk away from Newton Abbot Town Centre & a wealth of surround amenities, this Two Bedroom Mid Terraced home is beautifully presented throughout. Nestle in a sought after area, with accommodation briefly comprising of a Lounge, Dining Room, ext...
Property Oracle says ..
The property is a well-presented 2 bedroom terraced house in a convenient location close to schools and transport links. The property appears to be in good condition, having undergone some modernisation, and benefits from a small garden. While the price per sqft is higher than the area average, comparable properties on Oak Place show a range of prices, making it difficult to definitively assess value without more detailed comparable data.
Therefore, we give this property 7 / 10. *Disclaimer: This is our option and does constitute a recommendation or financial advice. Do your own research. *
- Price
- 7
- Condition
- 8
- Location
- 8
- Land
- 6
- Bedrooms
- 2
- Bathrooms
- 1
- Sqft (est)
- 677.05
- Lot (est)
- 693.20
The heatmap indicates the level of crime in the area. The color of the heatmap indicates the crime severity and recency.
Metrics Year-on-Year
- Average area value
- 365,000.00 £Increased by 34.08 %
- Est sale value
- 206,500.25 £Increased by 21.51 %
- Average area rental value
- 850.00 £/moIncreased by 5.20 %
- Est letting value
- 0.00 £/mo
- Est rental Yield
- 2.79 %Decreased by 21.63 %
- Crime Rate
- 23.00 %Unchanged by 0.00 %
Agent Activity
Simply Green Estate Agents created the listing.
Nearby Schools
| Name | Type | Ofsted | Distance |
|---|---|---|---|
| All Saints Marsh Cofe Academy | Academy Converter | Good | 0.20 KM |
| Bearnes Voluntary Primary School | Academy Converter | Good | 0.41 KM |
| South Devon Utc | University Technical College | Good | 0.54 KM |
| Wolborough Church Of England (Aided) Nursery And Primary School | Voluntary Aided School | Good | 0.79 KM |
| Decoy Primary School | Community School | Good | 1.37 KM |
Images
Nearby Streets
| Name | Average Price | Average Sqft | Distance |
|---|---|---|---|
| Osborne Street | £ 200,000 | 0 | 0.00 KM |
| Alexandra Road | £ 0 | 0 | 0.00 KM |
| Templer Way | £ 140,000 | 0 | 0.00 KM |
| Cricket Field Road | £ 0 | 0 | 0.00 KM |
| Brunel Road | £ 0 | 0 | 0.00 KM |
Nearby Transport
| Name | NLC | TLC | Distance |
|---|---|---|---|
| Newton Abbot | 3426 | NTA | 0.35 KM |
| Torre | 3432 | TRR | 8.86 KM |
Nearby Listings
| Address | Price | Type | Score | Distance |
|---|---|---|---|---|
| Oak Place, Newton Abbot, TQ12 2EX | £ 220,000 | BUY | 7 / 10 | 0.00 KM |
| Oak Place, Newton Abbot, Devon, TQ12 | £ 145,000 | BUY | Unknown | 0.01 KM |
| Courtenay Park, Newton Abbot | £ 750,000 | BUY | 6 / 10 | 0.07 KM |
| Courtenay Park, Newton Abbot, TQ12 2HB | £ 190,000 | BUY | 6 / 10 | 0.07 KM |
| Courtenay Park, Newton Abbot, TQ12 2HB | £ 170,000 | BUY | 6 / 10 | 0.07 KM |
Nearby Properties
| Address | Price | Distance |
|---|---|---|
| 12 Oak Place | £ 122,500 | 0.01 KM |
| 7 Oak Place | £ 127,000 | 0.01 KM |
| 9 Oak Place | £ 185,000 | 0.01 KM |
| 10 Oak Place | £ 212,500 | 0.01 KM |
| 5 Oak Place | £ 132,000 | 0.01 KM |