Off Millerhill Road, Danderhall, Midlothian, EH22 1SB
By Miller Homes Scotland East
£ 519,000
Reviews
3 out of 5 stars
Miller Homes Scotland East says ..
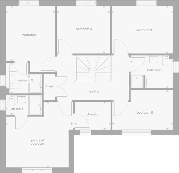
The LAYFORD - This FIVE BEDROOM home has a TRADITIONAL BAY WINDOW which gives the lounge an elegant appeal, complementing a superb L-SHAPED DINING AND FAMILY ROOM that opens on to the garden, and extends into the KITCHEN WITH SEPARATE LAUNDRY ROOM. Two of the five bedrooms are en-suite, and one...
Property Oracle says ..
A modern detached property in Dalkeith, Midlothian. Close to transportation links. The property is in excellent condition and appears to be newly built or recently renovated.
Therefore, we give this property 7 / 10. *Disclaimer: This is our option and does constitute a recommendation or financial advice. Do your own research. *
- Price
- 6
- Condition
- 9
- Location
- 7
- Land
- 7
- Bedrooms
- 5
- Bathrooms
- 0
- Sqft (est)
- 955.00
The heatmap indicates the level of crime in the area. The color of the heatmap indicates the crime severity and recency.
Metrics Year-on-Year
- Average area value
- 345,048.00 £Increased by 34.37 %
- Est sale value
- 484,185.00 £Increased by 11.92 %
- Average area rental value
- 803.00 £/moDecreased by 6.19 %
- Est letting value
- 955.00 £/moUnchanged by 0.00 %
- Est rental Yield
- 2.79 %Decreased by 30.25 %
- Crime Rate
- 0.00 %
Agent Activity
Miller Homes Scotland East created the listing.
Images
Nearby Streets
| Name | Average Price | Average Sqft | Distance |
|---|---|---|---|
| Monktonhall Colliery Road | £ 275,000 | 0 | 0.00 KM |
| Desmoulins Drive | £ 0 | 0 | 0.00 KM |
| Cocklerow Gardens | £ 0 | 0 | 0.00 KM |
| Newton Village | £ 170,000 | 0 | 0.00 KM |
| Cocklerow Court | £ 495,000 | 0 | 0.00 KM |
Nearby Transport
| Name | NLC | TLC | Distance |
|---|---|---|---|
| Shawfair | 6963 | SFI | 1.20 KM |
| Newcraighall | 8808 | NEW | 2.00 KM |
| Musselburgh | 9304 | MUB | 2.65 KM |
| Brunstane | 8807 | BSU | 3.32 KM |
| Eskbank | 3776 | EKB | 3.77 KM |
Nearby Listings
| Address | Price | Type | Score | Distance |
|---|---|---|---|---|
| Off Millerhill Road, Danderhall, Midlothian, EH22 1SB | £ 443,000 | BUY | 7 / 10 | 0.00 KM |
| Off Millerhill Road, Danderhall, Midlothian, EH22 1SB | £ 425,000 | BUY | Unknown | 0.00 KM |
| Off Millerhill Road, Danderhall, Midlothian, EH22 1SB | £ 275,000 | BUY | 6 / 10 | 0.00 KM |
| Off Millerhill Road, Danderhall, Midlothian, EH22 1SB | £ 452,000 | BUY | 7 / 10 | 0.00 KM |
| Off Millerhill Road, Danderhall, Midlothian, EH22 1SB | £ 315,000 | BUY | 5 / 10 | 0.00 KM |