Holroyds says ..
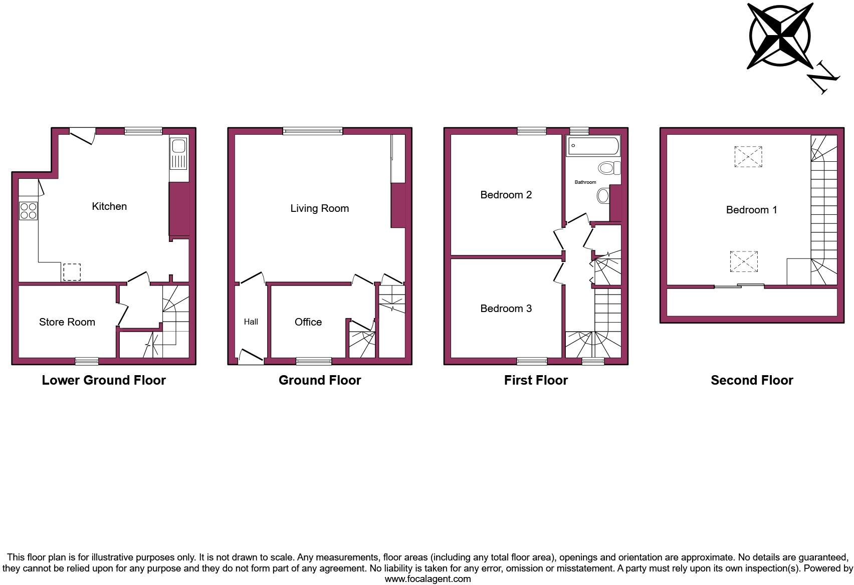
A fantastic opportunity to purchase this three bedroom stone terrace situated within the popular residential location of Haworth. Offering flexible living accommodation planned over four floors. This home will suit a wide variety of purchaser, viewing is highly recommended.
Property Oracle says ..
This is a three-bedroom semi-detached property located on River Street in Haworth, Keighley. The property offers a blend of traditional charm and modern updates, making it appealing to a variety of buyers. The interior features a well-maintained living space, a modern kitchen, and a stylish bathroom. The property also benefits from a garden, providing valuable outdoor space. The location in Haworth offers convenient access to local schools, transportation, and amenities. With a list price of £210,000, the property represents good value for money compared to the average price per square foot in the area.
Therefore, we give this property 7 / 10. *Disclaimer: This is our option and does constitute a recommendation or financial advice. Do your own research. *
- Price
- 8
- Condition
- 7
- Location
- 7
- Land
- 6
- Bedrooms
- 3
- Bathrooms
- 1
- Sqft (est)
- 905.00
The heatmap indicates the level of crime in the area. The color of the heatmap indicates the crime severity and recency.
Metrics Year-on-Year
- Average area value
- 856,250.00 £Increased by 15.74 %
- Est sale value
- 642,550.00 £Increased by 21.37 %
- Average area rental value
- 2,000.00 £/moDecreased by 15.25 %
- Est letting value
- 905.00 £/moUnchanged by 0.00 %
- Est rental Yield
- 2.80 %Decreased by 26.89 %
- Crime Rate
- 48.00 %Unchanged by 0.00 %
Agent Activity
Holroyds created the listing.
Nearby Schools
| Name | Type | Ofsted | Distance |
|---|---|---|---|
| Haworth Primary School | Academy Converter | Good | 0.70 KM |
| Treetops Children'S Centre | Children's Centre Linked Site | 0.70 KM | |
| Lees Primary School | Academy Converter | 1.28 KM | |
| Oakworth Primary School | Academy Converter | 1.46 KM | |
| Oxenhope Cofe Primary School | Academy Converter | Good | 2.38 KM |
Images
Nearby Streets
| Name | Average Price | Average Sqft | Distance |
|---|---|---|---|
| Bright Street | £ 149,995 | 0 | 0.00 KM |
| Park Street | £ 0 | 0 | 0.00 KM |
| Dove Street | £ 0 | 0 | 0.00 KM |
| Regent Street | £ 0 | 0 | 0.00 KM |
| May Street | £ 0 | 0 | 0.00 KM |
Nearby Transport
| Name | NLC | TLC | Distance |
|---|---|---|---|
| Keighley | 8468 | KEI | 6.46 KM |
| Steeton And Silsden | 8469 | SON | 7.57 KM |
Nearby Listings
| Address | Price | Type | Score | Distance |
|---|---|---|---|---|
| River Street, Haworth, Keighley | £ 210,000 | BUY | 7 / 10 | 0.00 KM |
| Aire Street, Haworth, Keighley, BD22 8LX | £ 150,000 | BUY | 5 / 10 | 0.05 KM |
| Back River Street, Haworth, Keighley, BD22 | £ 225,000 | BUY | 7 / 10 | 0.07 KM |
| Aire Street, Haworth, Keighley, BD22 | £ 119,950 | BUY | 6 / 10 | 0.08 KM |
| Mill Hey, Haworth | £ 480,000 | BUY | 6 / 10 | 0.09 KM |
Nearby Properties
| Address | Price | Distance |
|---|---|---|
| 40 River Street | £ 83,000 | 0.00 KM |
| 44 River Street | £ 152,000 | 0.00 KM |
| 17 River Street | £ 110,000 | 0.02 KM |
| 18 Back River Street | £ 128,500 | 0.02 KM |
| 43 Mill Hey | £ 140,000 | 0.05 KM |