Shipbourne Road, Tonbridge, TN10 3DN
By Bracketts Chartered Surveyors
£ 265,000
Reviews
3 out of 5 stars
Bracketts Chartered Surveyors says ..
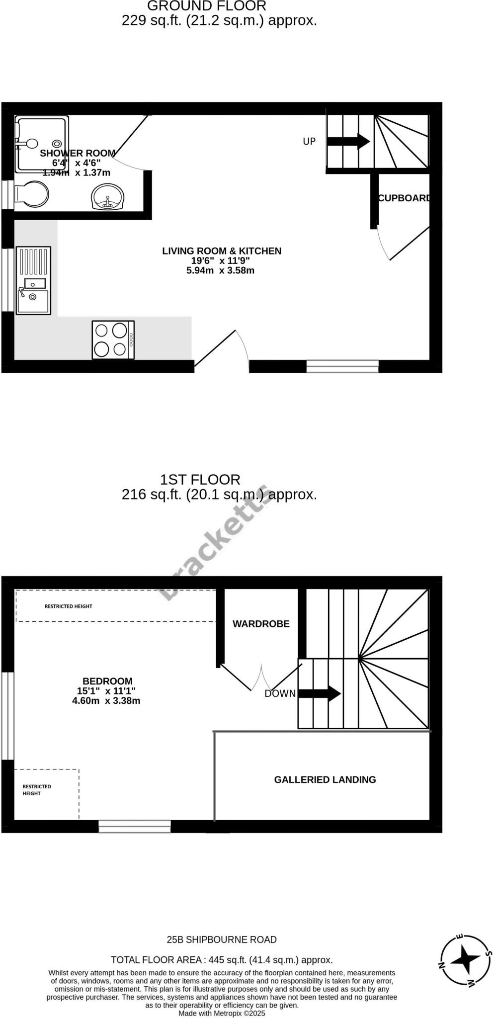
Bracketts are pleased to bring to the market this one bedroom property that offers a spacious open plan living area/kitchen with integrated appliances, shower room. Upstairs is the bedroom with fitted wardrobe and open mezzanine staircase. Set off the the main road this amazing property is hidden...
Property Oracle says ..
This link-detached house on Shipbourne Road in Tonbridge presents a well-maintained and modern living space. The property features one bedroom and one bathroom, making it suitable for individuals or couples. The interior boasts a contemporary kitchen and bathroom, with fresh paint and new flooring throughout. The outdoor paved area provides a functional space for relaxation and plants. Located in a well-connected area, the property benefits from proximity to schools, transportation, and local amenities. While the outdoor space is not a traditional garden, it adds to the property’s appeal. Overall, this property offers a comfortable and convenient living environment in a desirable location.
Therefore, we give this property 6 / 10. *Disclaimer: This is our option and does constitute a recommendation or financial advice. Do your own research. *
- Price
- 7
- Condition
- 8
- Location
- 7
- Land
- 5
- Bedrooms
- 1
- Bathrooms
- 1
- Sqft (est)
- 445.00
The heatmap indicates the level of crime in the area. The color of the heatmap indicates the crime severity and recency.
Metrics Year-on-Year
- Average area value
- 273,747.00 £Decreased by 7.23 %
- Est sale value
- 162,870.00 £Increased by 23.65 %
- Average area rental value
- 1,032.00 £/moDecreased by 0.77 %
- Est letting value
- 445.00 £/moUnchanged by 0.00 %
- Est rental Yield
- 4.52 %Increased by 6.86 %
- Crime Rate
- 5.00 %Unchanged by 0.00 %
Agent Activity
Bracketts Chartered Surveyors created the listing.
Nearby Schools
| Name | Type | Ofsted | Distance |
|---|---|---|---|
| Tonbridge School | Other Independent School | 0.30 KM | |
| Hilden Oaks Preparatory School And Nursery | Other Independent School | 0.48 KM | |
| Hilden Grange School | Other Independent School | 0.48 KM | |
| Ymca West Kent | Special Post 16 Institution | 0.60 KM | |
| Slade Primary School And Attached Unit For Children With Hearing Impairment | Community School | Outstanding | 0.74 KM |
Images
Nearby Streets
| Name | Average Price | Average Sqft | Distance |
|---|---|---|---|
| The Avenue | £ 0 | 0 | 0.00 KM |
| Castle Street | £ 290,000 | 0 | 0.00 KM |
| Stafford Road | £ 0 | 0 | 0.00 KM |
| Lyons Crescent | £ 330,357 | 0 | 0.00 KM |
| Tannery Road | £ 0 | 0 | 0.00 KM |
Nearby Transport
| Name | NLC | TLC | Distance |
|---|---|---|---|
| Tonbridge | 5229 | TON | 1.38 KM |
| Hildenborough | 5236 | HLB | 5.69 KM |
| High Brooms | 5235 | HIB | 5.85 KM |
| Leigh (Kent) | 5294 | LIH | 7.46 KM |
| Tunbridge Wells | 5230 | TBW | 8.15 KM |
Nearby Listings
| Address | Price | Type | Score | Distance |
|---|---|---|---|---|
| Shipbourne Road, Tonbridge, TN10 3DN | £ 265,000 | BUY | 6 / 10 | 0.00 KM |
| Shipbourne Road, Tonbridge | £ 425,000 | BUY | 5 / 10 | 0.00 KM |
| Shipbourne Road, Tonbridge | £ 450,000 | BUY | 5 / 10 | 0.00 KM |
| Shipbourne Road, Tonbridge | £ 435,000 | BUY | 6 / 10 | 0.00 KM |
| Shipbourne Road, Tonbridge, Kent, TN10 | £ 750,000 | BUY | 6 / 10 | 0.08 KM |
Nearby Properties
| Address | Price | Distance |
|---|---|---|
| Elm Way | £ 680,000 | 0.06 KM |
| 11 Manor Grove | £ 500,000 | 0.12 KM |
| 4 Manor Grove | £ 680,000 | 0.12 KM |
| 2 Manor Grove | £ 650,000 | 0.12 KM |
| 30 Shipbourne Road | £ 250,000 | 0.12 KM |