Kings Staithe Square, Bank House Kings Staithe Square, PE30
By Sowerbys
£ 1,600,000
Reviews
2 out of 5 stars
Sowerbys says ..
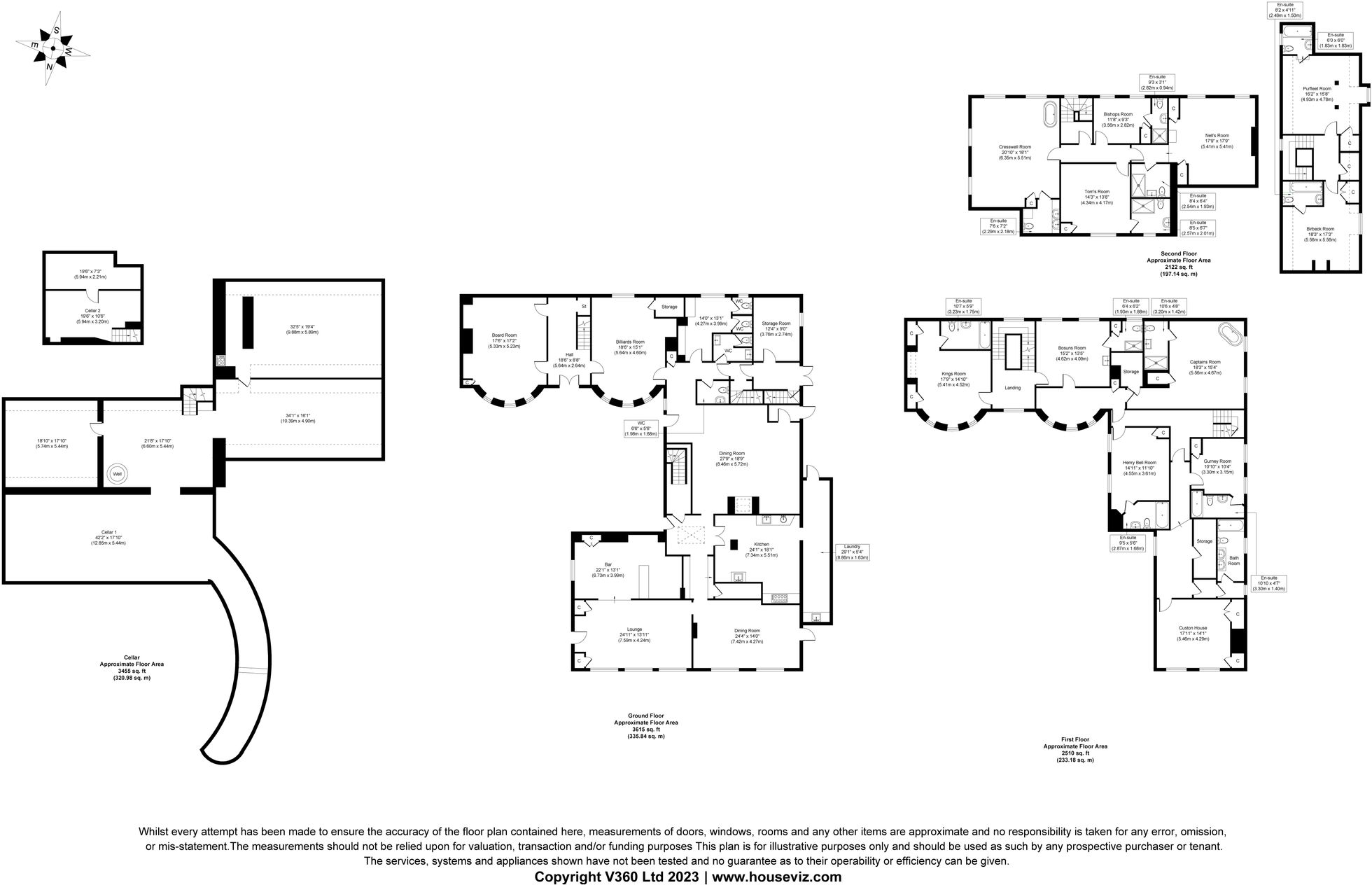
A unique purchasing opportunity, find 12 bedrooms - with individual bathrooms, dining areas seating 120, a riverside terrace and more. Recognised as arguably the most stylish place to eat, drink and stay - Bank House is an award winning and thriving hotel, restaurant and bar. Business as usual.
Property Oracle says ..
This property, Bank House, presents a unique investment opportunity in King’s Lynn, Norfolk. Currently operating as a successful hotel, restaurant, and bar, the property boasts 12 bedrooms, each with its own bathroom, and substantial dining areas. Its location in King’s Staithe Square provides a historic and picturesque setting, close to the River Great Ouse. The property itself is attractively presented. Images indicate a well-maintained building that is likely of considerable age, displaying character and charm. The interior is stylishly decorated. Given the property’s size, layout and established business, prospective buyers should thoroughly investigate the financial aspects and profitability of the existing commercial operation before proceeding. The lack of additional land is expected considering its city centre location. The value of the property is heavily reliant on the business and its success as a commercial property, rather than strictly residential valuation.
Therefore, we give this property 5 / 10. *Disclaimer: This is our option and does constitute a recommendation or financial advice. Do your own research. *
- Price
- 7
- Condition
- 8
- Location
- 7
- Land
- 1
- Bedrooms
- 12
- Bathrooms
- 12
- Sqft (est)
- 10,738.29
The heatmap indicates the level of crime in the area. The color of the heatmap indicates the crime severity and recency.
Metrics Year-on-Year
- Average area value
- 105,000.00 £Decreased by 43.72 %
- Est sale value
- 1,213,426.77 £Decreased by 54.98 %
- Average area rental value
- 785.00 £/moDecreased by 5.88 %
- Est letting value
- 0.00 £/moDecreased by 100.00 %
- Est rental Yield
- 8.97 %Increased by 67.35 %
- Crime Rate
- 5.00 %Unchanged by 0.00 %
Agent Activity
Sowerbys created the listing.
Nearby Schools
| Name | Type | Ofsted | Distance |
|---|---|---|---|
| Visiting Teacher Service West | Miscellaneous | 0.29 KM | |
| West Lynn Primary School | Academy Sponsor Led | Good | 0.77 KM |
| Whitefriars Church Of England Primary Academy | Academy Converter | Good | 0.84 KM |
| King'S Lynn Nursery School | Local Authority Nursery School | Good | 0.89 KM |
| Greyfriars Academy | Academy Converter | 1.09 KM |
Images
Nearby Streets
| Name | Average Price | Average Sqft | Distance |
|---|---|---|---|
| Purfleet Place | £ 0 | 0 | 0.00 KM |
| Saint Margaret's Lane | £ 0 | 0 | 0.00 KM |
| White Lion Court | £ 0 | 0 | 0.00 KM |
| Saint James Court | £ 0 | 0 | 0.00 KM |
| Chapel Court | £ 0 | 0 | 0.00 KM |
Nearby Transport
| Name | NLC | TLC | Distance |
|---|---|---|---|
| Kings Lynn | 7115 | KLN | 1.17 KM |
| Watlington | 7057 | WTG | 8.96 KM |
Nearby Listings
| Address | Price | Type | Score | Distance |
|---|---|---|---|---|
| South Quay, King's Lynn | £ 115,000 | BUY | Unknown | 0.03 KM |
| King's Lynn | £ 350,000 | BUY | 6 / 10 | 0.05 KM |
| Flat 7, Bellfosters, Kings Staithe Lane, King's Lynn PE30 1LZ | £ 160,000 | BUY | 4 / 10 | 0.05 KM |
| Enjoy stunning riverside views from this 2nd Floor apartment for the over 55's - South Quay. | £ 99,995 | BUY | 6 / 10 | 0.07 KM |
| South Quay, King's Lynn | £ 110,000 | BUY | 5 / 10 | 0.07 KM |
Nearby Properties
| Address | Price | Distance |
|---|---|---|
| 1 Kings Staithe Lane | £ 435,000 | 0.06 KM |
| 10 South Quay | £ 577,500 | 0.07 KM |
| 25 Queen Street | £ 675,000 | 0.10 KM |
| 27 Queen Street | £ 340,000 | 0.10 KM |
| 29 Queen Street | £ 260,000 | 0.10 KM |