Woodbury Down, Willowbrook House, Coster Avenue, London, N4
By Yours Link Limited
£ 535,000
Reviews
3 out of 5 stars
Yours Link Limited says ..
Willowbrook House is a beautifully designed residential development within the Woodberry Down development and is positioned by the famous reservoirs of Woodberry Wetlands, of which this apartment has direct breathtaking views.
Property Oracle says ..
This one-bedroom apartment in Willowbrook House, Woodberry Down, is a modern, well-maintained property situated within a developing residential area. The apartment’s interior is presented in excellent condition, featuring a contemporary design and high-quality fixtures and fittings. The photos showcase a bright and spacious living area, a modern kitchen, and a stylish bathroom. The absence of a private garden is expected for an apartment of this type. The location offers proximity to Woodberry Wetlands, providing green space and recreational opportunities. Transport links are satisfactory, with several train stations within a reasonable distance, though the area is still under significant construction, which may affect the overall appeal to some buyers. While the apartment itself is in excellent condition, the lack of private outdoor space and the ongoing development surrounding the building could be factors influencing buyer decisions. The price appears competitive relative to nearby properties but further price per square foot data for comparable one-bedroom apartments in Woodberry Down is needed for a fully informed evaluation. The surrounding area’s ongoing development is an important factor to consider; this could be seen as a positive by some (future amenities) and a negative by others (ongoing construction and potential disruption). Overall, the property represents a good modern apartment in a convenient, if still developing, location.
Therefore, we give this property 6 / 10. *Disclaimer: This is our option and does constitute a recommendation or financial advice. Do your own research. *
- Price
- 7
- Condition
- 9
- Location
- 7
- Land
- 1
- Bedrooms
- 1
- Bathrooms
- 1
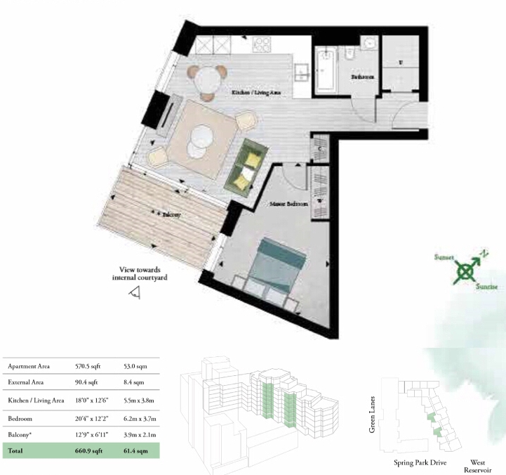
- Sqft (est)
- 660.90
The heatmap indicates the level of crime in the area. The color of the heatmap indicates the crime severity and recency.
Metrics Year-on-Year
- Average area value
- 1,015,379.00 £Increased by 50.11 %
- Est sale value
- 907,415.70 £Increased by 51.05 %
- Average area rental value
- 2,678.00 £/moIncreased by 16.59 %
- Est letting value
- 1,982.70 £/moUnchanged by 0.00 %
- Est rental Yield
- 3.16 %Decreased by 22.36 %
- Crime Rate
- 4.00 %Unchanged by 0.00 %
Agent Activity
Yours Link Limited created the listing.
Nearby Schools
| Name | Type | Ofsted | Distance |
|---|---|---|---|
| Woodberry Down Children'S Centre | Children's Centre | 0.19 KM | |
| Beis Chinuch Lebonos Girls School | Other Independent School | Requires improvement | 0.37 KM |
| Skinners' Academy | Academy Sponsor Led | Good | 0.47 KM |
| Woodberry Down Community Primary School | Community School | Outstanding | 0.59 KM |
| Parkwood Primary School | Community School | Good | 0.74 KM |
Images
Nearby Streets
| Name | Average Price | Average Sqft | Distance |
|---|---|---|---|
| Springpark Drive | £ 0 | 0 | 0.00 KM |
| Linkway | £ 525,000 | 0 | 0.00 KM |
| Anax Street | £ 0 | 0 | 0.00 KM |
| Dragonfly Walk | £ 0 | 0 | 0.00 KM |
| Greenway Close | £ 775,000 | 0 | 0.00 KM |
Nearby Transport
| Name | NLC | TLC | Distance |
|---|---|---|---|
| Harringay Green Lanes | 7401 | HRY | 0.99 KM |
| Finsbury Park | 6119 | FPK | 1.46 KM |
| Harringay | 6012 | HGY | 1.52 KM |
| Stamford Hill | 6968 | SMH | 2.01 KM |
| Drayton Park | 6000 | DYP | 2.23 KM |
Nearby Listings
| Address | Price | Type | Score | Distance |
|---|---|---|---|---|
| Woodbury Down, Willowbrook House, Coster Avenue, London, N4 | £ 535,000 | BUY | 6 / 10 | 0.00 KM |
| Willowbrook House, Coster Avenue, N4 | £ 800,000 | BUY | 6 / 10 | 0.00 KM |
| Coster Avenue London N4 | £ 575,000 | BUY | 6 / 10 | 0.00 KM |
| Willowbrook House, Finsbury Park, London, N4 | £ 680,000 | BUY | 6 / 10 | 0.00 KM |
| Willowbrook House, N4 | £ 850,000 | BUY | 6 / 10 | 0.00 KM |
Nearby Properties
| Address | Price | Distance |
|---|---|---|
| 297a Green Lanes | £ 780,000 | 0.11 KM |
| 297b Green Lanes | £ 825,000 | 0.11 KM |
| 43 Spring Park Drive | £ 165,000 | 0.13 KM |
| 27 Spring Park Drive | £ 65,000 | 0.13 KM |
| 40 Spring Park Drive | £ 195,000 | 0.18 KM |