Chingford Road, Lloyd Park, Walthamstow, E17
By Foxtons
£ 425,000
Reviews
2 out of 5 stars
Foxtons says ..
Lovely 2 bedroom 1st. floor flat offering sunlit and spacious interiors, contemporary décor, separate modern kitchen and sleek bathroom.
Property Oracle says ..
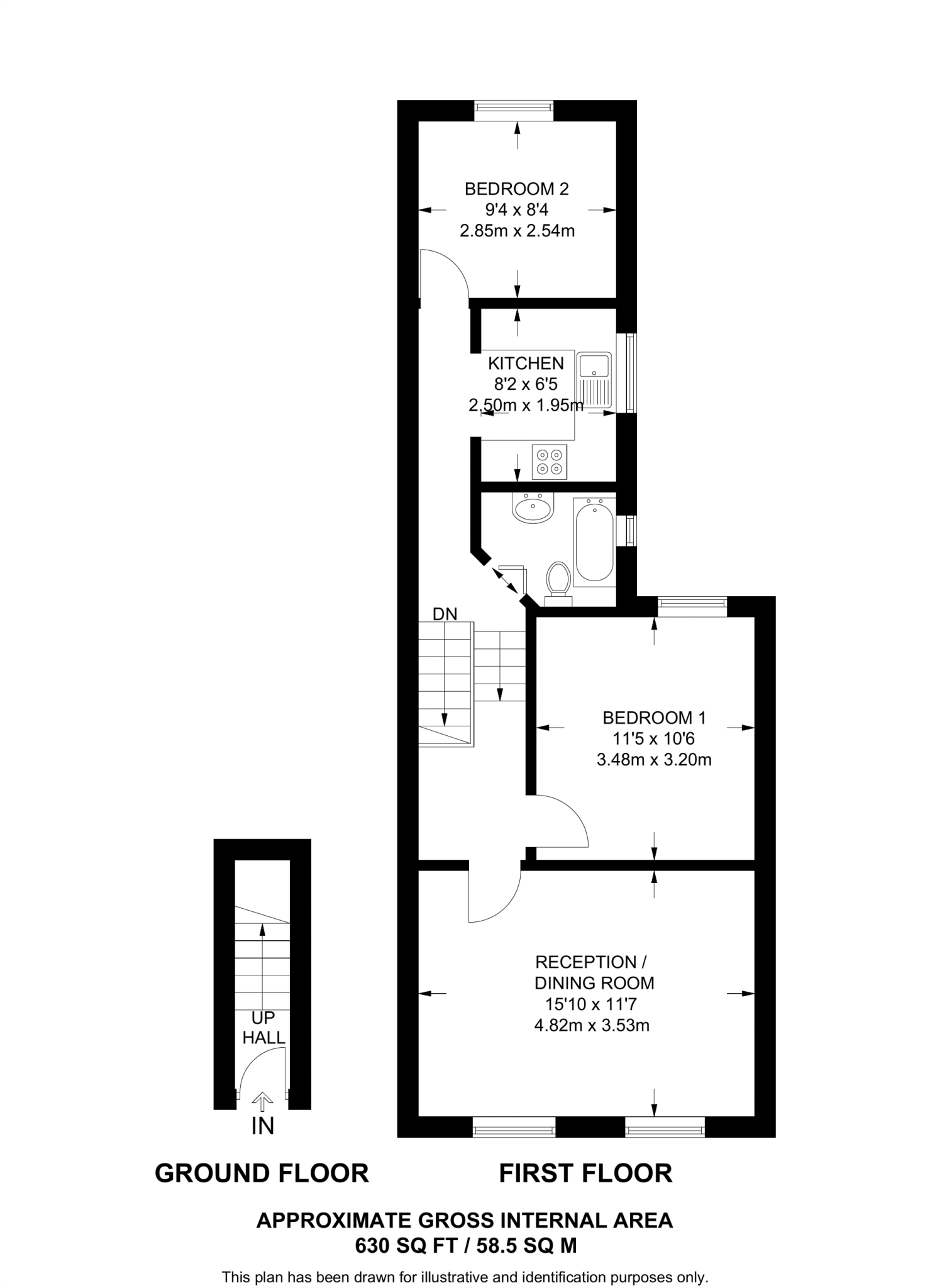
This property is a two-bedroom flat located on Chingford Road in Walthamstow, E17. The area benefits from nearby transport links, including Walthamstow Central station (0.95km), offering good access to London. Several schools are within a reasonable distance, including Emmanuel Community School (rated ‘Good’ by Ofsted) and Walthamstow School for Girls (rated ‘Outstanding’). The property itself appears to be in good condition based on the provided images, with a modern kitchen and bathroom. While the images do not show the exterior or garden, the lack of plot size information suggests it is unlikely to have a significant amount of outdoor space. The list price of £425,000 is slightly below the average price of £524,872 for the area, however, without the square footage of the property, a definitive assessment of value for money cannot be made. Nearby comparable properties range from £275,000 to £500,000, indicating some price variation in the area.
Therefore, we give this property 5 / 10. *Disclaimer: This is our option and does constitute a recommendation or financial advice. Do your own research. *
- Price
- 6
- Condition
- 8
- Location
- 7
- Land
- 2
- Bedrooms
- 2
- Bathrooms
- 1
The heatmap indicates the level of crime in the area. The color of the heatmap indicates the crime severity and recency.
Metrics Year-on-Year
- Average area value
- 670,000.00 £Increased by 15.57 %
- Average area rental value
- 2,617.00 £/moIncreased by 10.61 %
- Est rental Yield
- 4.69 %Decreased by 4.29 %
- Crime Rate
- 9.00 %Unchanged by 0.00 %
Agent Activity
Foxtons created the listing.
Nearby Schools
| Name | Type | Ofsted | Distance |
|---|---|---|---|
| The Lloyd Park Children Centre | Children's Centre | 0.12 KM | |
| Emmanuel Community School | Free Schools | Good | 0.56 KM |
| Sir George Monoux College | Further Education | Requires improvement | 0.65 KM |
| Walthamstow East Children Centre | Children's Centre | 0.76 KM | |
| Walthamstow School For Girls | Community School | Outstanding | 0.77 KM |
Images
Nearby Streets
| Name | Average Price | Average Sqft | Distance |
|---|---|---|---|
| Howard Road | £ 634,722 | 0 | 0.00 KM |
| Chandos Avenue | £ 0 | 0 | 0.00 KM |
| Dudley Road | £ 0 | 0 | 0.00 KM |
| Hawthorne Road | £ 0 | 0 | 0.00 KM |
| Fellowship Square | £ 500,000 | 0 | 0.00 KM |
Nearby Transport
| Name | NLC | TLC | Distance |
|---|---|---|---|
| Walthamstow Central | 6953 | WHC | 0.95 KM |
| Walthamstow Queen'S Road | 7407 | WMW | 1.27 KM |
| Wood Street | 6954 | WST | 1.76 KM |
| St James Street | 6973 | SJS | 2.03 KM |
| Leyton Midland Road | 7402 | LEM | 2.61 KM |
Nearby Listings
| Address | Price | Type | Score | Distance |
|---|---|---|---|---|
| Chingford Road, Lloyd Park, Walthamstow, E17 | £ 425,000 | BUY | 5 / 10 | 0.00 KM |
| Chingford Road, Walthamstow, London, E17 | £ 600,000 | BUY | 8 / 10 | 0.03 KM |
| Chingford Road, LONDON, London, E17 | £ 350,000 | BUY | 6 / 10 | 0.04 KM |
| Chingford Road, Walthamstow, London, E17 | £ 600,000 | BUY | 7 / 10 | 0.04 KM |
| Chingford Road, Walthamstow | £ 750,000 | BUY | 7 / 10 | 0.05 KM |
Nearby Properties
| Address | Price | Distance |
|---|---|---|
| 10a Chingford Road | £ 500,000 | 0.02 KM |
| 62 Chingford Road | £ 60,000 | 0.02 KM |
| 46 Chingford Road | £ 240,000 | 0.02 KM |
| 32 Chingford Road | £ 320,000 | 0.02 KM |
| 2a Chingford Road | £ 77,500 | 0.03 KM |