Gilson Bailey says ..
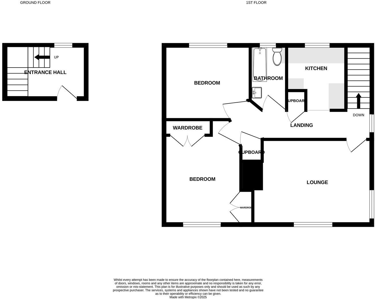
**FIRST FLOOR FLAT OVERLOOKING EATON PARK WITH A PRIVATE REAR GARDEN** Gilson Bailey are delighted to offer this TWO BEDROOM, FIRST FLOOR FLAT situated in to the west of Norwich with good access to the Hospital and University. Accommodation comprising private entrance hall, lounge/diner, kitchen,...
Property Oracle says ..
This property is a two bedroom apartment located on North Park Avenue in Norwich. The apartment is in good condition and benefits from a private garden. The location is convenient, with several schools and transportation links nearby. The list price is slightly below the average price per square foot for the area, making it potentially good value for money.
Therefore, we give this property 7 / 10. *Disclaimer: This is our option and does constitute a recommendation or financial advice. Do your own research. *
- Price
- 7
- Condition
- 8
- Location
- 7
- Land
- 7
- Bedrooms
- 2
- Bathrooms
- 1
- Sqft (est)
- 410.00
The heatmap indicates the level of crime in the area. The color of the heatmap indicates the crime severity and recency.
Metrics Year-on-Year
- Average area value
- 265,714.00 £Increased by 17.36 %
- Est sale value
- 148,010.00 £Increased by 28.93 %
- Average area rental value
- 1,105.00 £/moDecreased by 15.71 %
- Est letting value
- 410.00 £/moUnchanged by 0.00 %
- Est rental Yield
- 4.99 %Decreased by 28.20 %
- Crime Rate
- 14.00 %Unchanged by 0.00 %
Agent Activity
Gilson Bailey created the listing.
Nearby Schools
| Name | Type | Ofsted | Distance |
|---|---|---|---|
| Bluebell Primary School | Academy Converter | 0.32 KM | |
| Eaton Hall Specialist Academy | Academy Special Converter | Outstanding | 0.68 KM |
| City Academy Norwich | Academy Sponsor Led | Requires improvement | 0.85 KM |
| University Of East Anglia | Higher Education Institutions | 1.15 KM | |
| Colman Junior School | Community School | Good | 1.21 KM |
Images
Nearby Streets
| Name | Average Price | Average Sqft | Distance |
|---|---|---|---|
| Strawberry Hill Gardens | £ 0 | 0 | 0.00 KM |
| Strawberry Hill Gardens | £ 0 | 0 | 0.00 KM |
| Hanbury Close | £ 0 | 0 | 0.00 KM |
| Gunton Road | £ 0 | 0 | 0.00 KM |
| Water Lane | £ 0 | 0 | 0.00 KM |
Nearby Transport
| Name | NLC | TLC | Distance |
|---|---|---|---|
| Norwich | 7309 | NRW | 6.12 KM |
Nearby Listings
| Address | Price | Type | Score | Distance |
|---|---|---|---|---|
| North Park Avenue, Norwich | £ 180,000 | BUY | 7 / 10 | 0.00 KM |
| Lovelace Road, Norwich | £ 320,000 | BUY | 6 / 10 | 0.10 KM |
| North Park Avenue, Norwich | £ 180,000 | BUY | 6 / 10 | 0.17 KM |
| Northfields, Norwich, NR4 | £ 135,000 | BUY | 5 / 10 | 0.26 KM |
| North Park Avenue, Norwich, Norfolk, NR4 | £ 190,000 | BUY | 6 / 10 | 0.27 KM |
Nearby Properties
| Address | Price | Distance |
|---|---|---|
| 176 North Park Avenue | £ 123,500 | 0.08 KM |
| 136 North Park Avenue | £ 37,600 | 0.08 KM |
| 166 North Park Avenue | £ 164,000 | 0.08 KM |
| 138 North Park Avenue | £ 120,000 | 0.08 KM |
| 122 North Park Avenue | £ 145,000 | 0.08 KM |