JM Catley says ..
A truly outstanding opportunity to purchase a beautiful home set within one of Morley's most iconic mills.
Property Oracle says ..
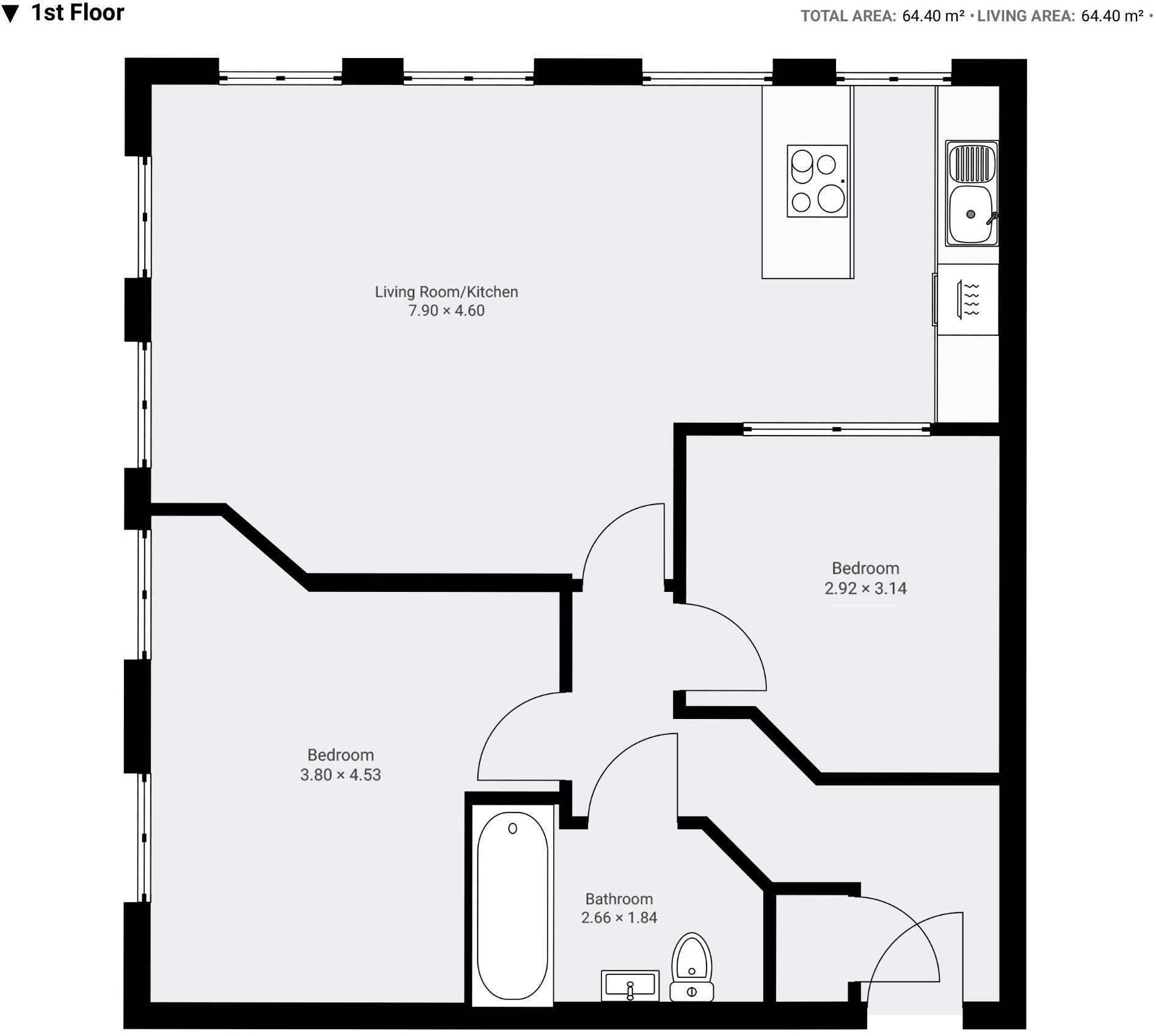
This is a two-bedroom apartment located in Park Mill Court, Morley, Leeds. The property is listed by JM Catley and has a list price of £174,950. The apartment offers 693.20 sqft of living space. The property is located close to local amenities, schools, and transportation links, including Morley train station. The interior of the apartment appears to be in good condition, with a modern kitchen and bathroom. The building retains some of its original traditional features. The apartment does not have a private garden, but there is some communal outdoor space available. The price of the property is competitive compared to other properties in the area.
Therefore, we give this property 6 / 10. *Disclaimer: This is our option and does constitute a recommendation or financial advice. Do your own research. *
- Price
- 7
- Condition
- 8
- Location
- 7
- Land
- 3
- Bedrooms
- 2
- Bathrooms
- 0
- Sqft (est)
- 693.20
The heatmap indicates the level of crime in the area. The color of the heatmap indicates the crime severity and recency.
Metrics Year-on-Year
- Average area value
- 244,722.00 £Increased by 16.59 %
- Est sale value
- 198,948.40 £Increased by 8.71 %
- Average area rental value
- 958.00 £/moIncreased by 6.33 %
- Est letting value
- 693.20 £/moUnchanged by 0.00 %
- Est rental Yield
- 4.70 %Decreased by 8.74 %
- Crime Rate
- 22.00 %Unchanged by 0.00 %
Agent Activity
JM Catley created the listing.
Nearby Schools
| Name | Type | Ofsted | Distance |
|---|---|---|---|
| Seven Hills Primary School | Community School | Good | 0.31 KM |
| Morley South Children'S Centre | Children's Centre | 0.39 KM | |
| Queenswood School | Other Independent School | Good | 0.61 KM |
| Morley North Children'S Centre | Children's Centre | 0.81 KM | |
| The Morley Academy | Academy Converter | Outstanding | 1.34 KM |
Images
Nearby Streets
| Name | Average Price | Average Sqft | Distance |
|---|---|---|---|
| Tennyson Street | £ 0 | 0 | 0.00 KM |
| Rods Mills Lane | £ 0 | 0 | 0.00 KM |
| Harrwood Mews | £ 0 | 0 | 0.00 KM |
| Glendale Gardens | £ 0 | 0 | 0.00 KM |
| Glen Court | £ 132,500 | 0 | 0.00 KM |
Nearby Transport
| Name | NLC | TLC | Distance |
|---|---|---|---|
| Morley | 8504 | MLY | 0.76 KM |
| Cottingley | 8505 | COT | 2.73 KM |
| Batley | 8484 | BTL | 4.92 KM |
| Dewsbury | 8326 | DEW | 7.18 KM |
| Leeds | 8487 | LDS | 7.71 KM |
Nearby Listings
| Address | Price | Type | Score | Distance |
|---|---|---|---|---|
| Park Mill Court, Morley | £ 184,950 | BUY | Unknown | 0.00 KM |
| Park Mill Court, Morley | £ 167,500 | BUY | Unknown | 0.00 KM |
| Park Mill Court, Morley | £ 174,950 | BUY | 6 / 10 | 0.00 KM |
| Park Mill Court, Morley | £ 164,950 | BUY | Unknown | 0.00 KM |
| Park Mill Court, Morley, Leeds, West Yorkshire | £ 185,000 | BUY | 5 / 10 | 0.01 KM |
Nearby Properties
| Address | Price | Distance |
|---|---|---|
| 7 South Parade | £ 105,000 | 0.04 KM |
| 1a South Parade | £ 136,000 | 0.04 KM |
| 5a South Parade | £ 36,950 | 0.04 KM |
| 13 South Parade | £ 30,000 | 0.04 KM |
| 28 South Parade | £ 125,000 | 0.04 KM |