Barnfield Walk, Kingsbridge
By Kingsbridge Estate Agents Ltd
£ 250,000
Reviews
3 out of 5 stars
Kingsbridge Estate Agents Ltd says ..
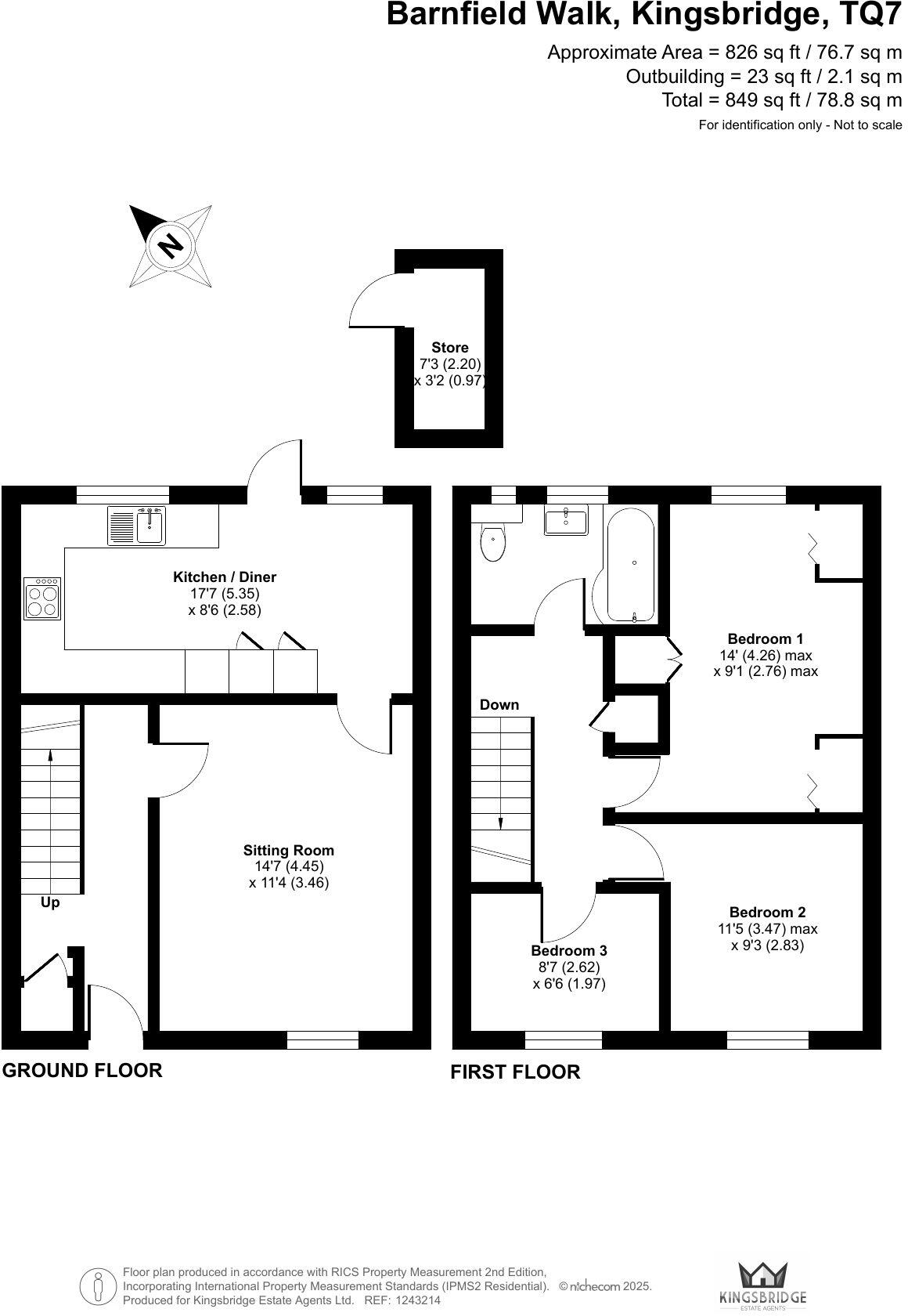
This well-maintained home offers spacious family accommodation with a modern finish. The ground floor includes a generous kitchen/dining area and a bright sitting room. Upstairs, there are two double bedrooms, a single bedroom, and a good-sized modern bathroom. The enclosed garden features a t...
Property Oracle says ..
This three-bedroom terraced house in Kingsbridge, Devon, is listed at £250,000. The property benefits from a modern kitchen and bathroom, and a small, enclosed rear garden. While the property is presented well, the square footage is smaller than the average for the area (612 sq ft vs 1320 sq ft). Kingsbridge is a desirable location in the South Hams, known for its coastal setting and amenities. The average house price in the area is £275,043, and the average price per square foot is £208. Considering the smaller size and the average price per square foot, the asking price appears reasonable. There are several nearby schools, including Kingsbridge Community Primary School and West Alvington Church of England Academy, both within a reasonable distance. However, information on nearby transportation is not available.
Therefore, we give this property 6 / 10. *Disclaimer: This is our option and does constitute a recommendation or financial advice. Do your own research. *
- Price
- 7
- Condition
- 8
- Location
- 7
- Land
- 4
- Bedrooms
- 3
- Bathrooms
- 1
- Sqft (est)
- 612.00
- Lot (est)
- 849.00
The heatmap indicates the level of crime in the area. The color of the heatmap indicates the crime severity and recency.
Metrics Year-on-Year
- Average area value
- 320,980.00 £Decreased by 8.16 %
- Est sale value
- 175,644.00 £Decreased by 21.58 %
- Average area rental value
- 954.00 £/moDecreased by 20.76 %
- Est letting value
- 0.00 £/moDecreased by 100.00 %
- Est rental Yield
- 3.57 %Decreased by 13.56 %
- Crime Rate
- 58.00 %Unchanged by 0.00 %
Agent Activity
Kingsbridge Estate Agents Ltd created the listing.
Nearby Schools
| Name | Type | Ofsted | Distance |
|---|---|---|---|
| Kingsbridge Academy | Academy Converter | 0.79 KM | |
| Kingsbridge Community Primary School | Community School | Requires improvement | 1.29 KM |
| West Alvington Church Of England Academy | Academy Converter | Good | 1.53 KM |
| Kingsbridge & District | Children's Centre | 1.58 KM | |
| Charleton Church Of England Academy | Academy Converter | Good | 4.06 KM |
Images
Nearby Streets
| Name | Average Price | Average Sqft | Distance |
|---|---|---|---|
| Plymouth Road | £ 0 | 0 | 0.00 KM |
| Mill Street | £ 0 | 0 | 0.00 KM |
| Springfield Drive | £ 850,000 | 0 | 0.00 KM |
| West Alvington Hill | £ 450,000 | 0 | 0.00 KM |
| Ashleigh Road | £ 0 | 0 | 0.00 KM |
Nearby Listings
| Address | Price | Type | Score | Distance |
|---|---|---|---|---|
| Barnfield Walk, Kingsbridge | £ 250,000 | BUY | 6 / 10 | 0.00 KM |
| Barnfield Walk, Kingsbridge | £ 245,000 | BUY | Unknown | 0.00 KM |
| Trebblepark Walk, Kingsbridge, Devon, TQ7 | £ 240,000 | BUY | 7 / 10 | 0.12 KM |
| Trebblepark Walk, Kingsbridge | £ 265,000 | BUY | 6 / 10 | 0.12 KM |
| Trebblepark Walk, Kingsbridge | £ 260,000 | BUY | Unknown | 0.12 KM |
Nearby Properties
| Address | Price | Distance |
|---|---|---|
| 5 Barnfield Walk | £ 48,950 | 0.01 KM |
| 7 Barnfield Walk | £ 145,000 | 0.01 KM |
| 21 Barnfield Walk | £ 157,000 | 0.01 KM |
| 17 Barnfield Walk | £ 270,000 | 0.01 KM |
| 15 Barnfield Walk | £ 179,000 | 0.01 KM |