Belsize Park Gardens, London, NW3
By Stones Residential
£ 2,000,000
Reviews
4 out of 5 stars
Stones Residential says ..
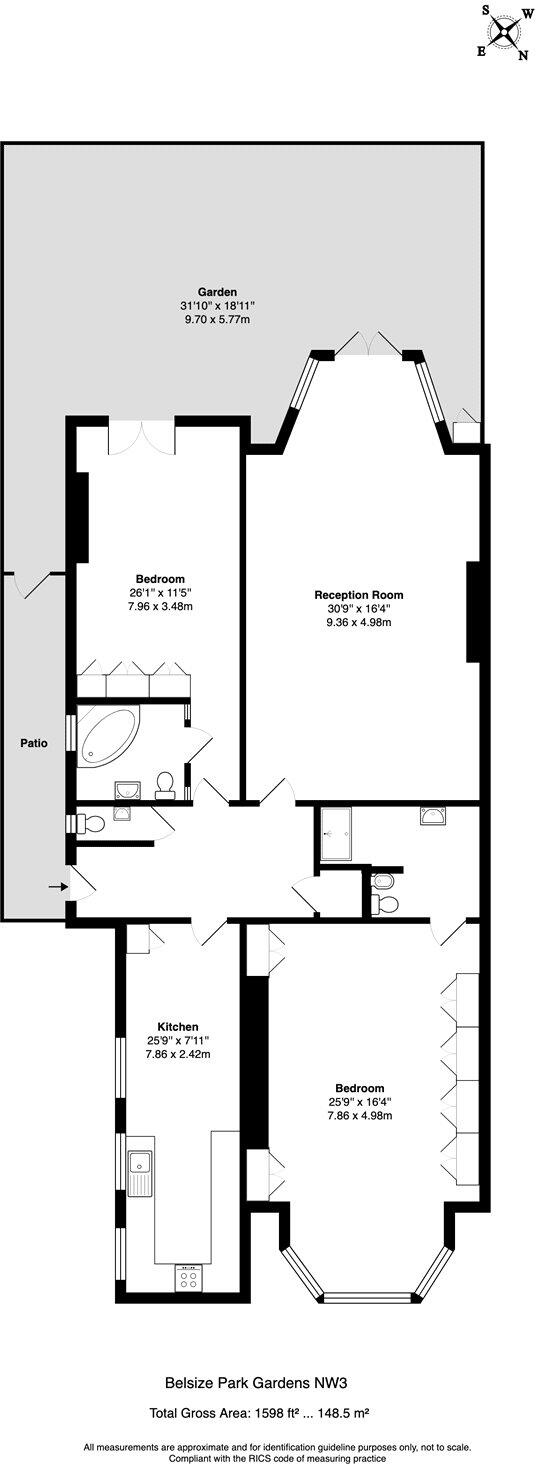
A beautifully presented garden apartment situated within an imposing stucco fronted house. The property boasts a spacious reception room with doors leading onto a private patio garden, two well proportioned double bedrooms, two bathrooms, large kitchen diner and a guest wc.
Property Oracle says ..
This property is a well-presented two bedroom, two bathroom apartment located in the highly desirable Belsize Park area of London. The apartment benefits from a modern, stylish interior and a private patio garden. The location is excellent, with easy access to transport links, local amenities, and highly-rated schools. While the plot size is small, the property itself is well-maintained and appears to be in excellent condition. The list price is slightly above the average price for the area, but considering the property’s condition, location, and modern features, it may represent good value for money.
Therefore, we give this property 8 / 10. *Disclaimer: This is our option and does constitute a recommendation or financial advice. Do your own research. *
- Price
- 8
- Condition
- 9
- Location
- 10
- Land
- 6
- Bedrooms
- 2
- Bathrooms
- 2
- Sqft (est)
- 1,350.00
The heatmap indicates the level of crime in the area. The color of the heatmap indicates the crime severity and recency.
Metrics Year-on-Year
- Average area value
- 1,242,308.00 £Decreased by 8.48 %
- Est sale value
- 2,154,600.00 £Decreased by 1.30 %
- Average area rental value
- 2,746.00 £/moDecreased by 7.17 %
- Est letting value
- 4,050.00 £/moUnchanged by 0.00 %
- Est rental Yield
- 2.65 %Increased by 1.53 %
- Crime Rate
- 6.00 %Unchanged by 0.00 %
Agent Activity
Stones Residential created the listing.
Nearby Schools
| Name | Type | Ofsted | Distance |
|---|---|---|---|
| Hereward House School | Other Independent School | 0.36 KM | |
| Sarum Hall School | Other Independent School | 0.36 KM | |
| The Hall School | Other Independent School | 0.41 KM | |
| The Artsxchange | Free Schools Alternative Provision | Good | 0.42 KM |
| Trevor-Roberts School | Other Independent School | 0.44 KM |
Images
Nearby Streets
| Name | Average Price | Average Sqft | Distance |
|---|---|---|---|
| Arkwright Road | £ 0 | 0 | 0.00 KM |
| Belsize Terrace | £ 1,247,500 | 0 | 0.00 KM |
| Lyttleton Close | £ 0 | 0 | 0.00 KM |
| Harben Road | £ 0 | 0 | 0.00 KM |
| Winchester Mews | £ 0 | 0 | 0.00 KM |
Nearby Transport
| Name | NLC | TLC | Distance |
|---|---|---|---|
| Hampstead Heath | 1413 | HDH | 0.89 KM |
| South Hampstead | 1451 | SOH | 1.40 KM |
| Finchley Road And Frognal | 1445 | FNY | 1.73 KM |
| Gospel Oak | 1409 | GPO | 2.07 KM |
| Kentish Town West | 1449 | KTW | 2.33 KM |
Nearby Listings
| Address | Price | Type | Score | Distance |
|---|---|---|---|---|
| Belsize Park Gardens, London, NW3 | £ 2,000,000 | BUY | 8 / 10 | 0.00 KM |
| Belsize Park Gardens, London | £ 2,000,000 | BUY | 7 / 10 | 0.01 KM |
| Belsize Park Gardens, London, NW3 | £ 2,195,000 | BUY | 8 / 10 | 0.01 KM |
| Garden Apartment, Belsize Park Gardens, Belsize Park, NW3 | £ 2,000,000 | BUY | 7 / 10 | 0.02 KM |
| Belsize Park Gardens, London, NW3 | £ 1,050,000 | BUY | 7 / 10 | 0.05 KM |
Nearby Properties
| Address | Price | Distance |
|---|---|---|
| 41 Belsize Park Gardens | £ 600,000 | 0.01 KM |
| 37a Belsize Park Gardens | £ 1,151,000 | 0.01 KM |
| 41b Belsize Park Gardens | £ 485,000 | 0.01 KM |
| 4 Lambolle Road | £ 6,500,000 | 0.05 KM |
| 24a Lambolle Road | £ 1,625,000 | 0.05 KM |