Greyfriars Crescent, Fulwood, Preston, PR2 3RB
By Clarkson Holden
£ 300,000
Reviews
3 out of 5 stars
Clarkson Holden says ..
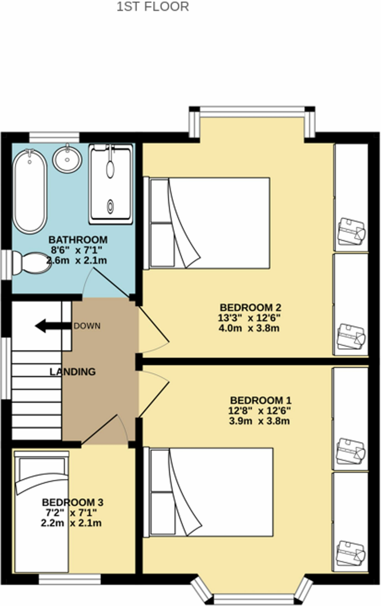
An immaculate 3-bedroom, extended, semi-detached house, offering a perfect blend of traditional charm and contemporary open-plan living. Original features thoughtfully installed with a modern twist.
Property Oracle says ..
This three-bedroom semi-detached house in Fulwood, Preston, presents itself as a well-maintained and tastefully renovated family home. The recently updated kitchen and bathroom are modern and stylish, featuring high-quality fixtures and fittings. The interior is presented in excellent order, suggesting a well-maintained and carefully updated property. The location in Fulwood is a significant advantage, being known for its family-friendly atmosphere and excellent schools, particularly its proximity to highly-rated primary and secondary schools. The property does however include a smaller garden compared to other homes in the area. While the list price of £300,000 needs further context by comparing it to similar properties to determine its competitiveness in the current market, based on current market trends in the area it does represent reasonable value for money, given the condition and desirable location.
Therefore, we give this property 7 / 10. *Disclaimer: This is our option and does constitute a recommendation or financial advice. Do your own research. *
- Price
- 7
- Condition
- 9
- Location
- 8
- Land
- 4
- Bedrooms
- 3
- Bathrooms
- 1
- Sqft (est)
- 846.80
The heatmap indicates the level of crime in the area. The color of the heatmap indicates the crime severity and recency.
Metrics Year-on-Year
- Average area value
- 267,143.00 £Decreased by 5.80 %
- Est sale value
- 242,184.80 £Increased by 3.25 %
- Average area rental value
- 1,024.00 £/moIncreased by 2.20 %
- Est letting value
- 846.80 £/mo
- Est rental Yield
- 4.60 %Increased by 8.49 %
- Crime Rate
- 1.00 %Unchanged by 0.00 %
Agent Activity
Clarkson Holden created the listing.
Nearby Schools
| Name | Type | Ofsted | Distance |
|---|---|---|---|
| Fulwood Academy | Academy Sponsor Led | Requires improvement | 0.30 KM |
| Fulwood And Cadley Primary School | Community School | Good | 0.39 KM |
| Queen'S Drive Primary School | Community School | Outstanding | 0.42 KM |
| Our Lady'S Catholic High School | Voluntary Aided School | Outstanding | 0.66 KM |
| St Anthony'S Catholic Primary School | Voluntary Aided School | Good | 0.74 KM |
Images
Nearby Streets
| Name | Average Price | Average Sqft | Distance |
|---|---|---|---|
| St Anthony's Close | £ 0 | 0 | 0.00 KM |
| Dunbar Drive | £ 0 | 0 | 0.00 KM |
| St Theresa's Drive | £ 240,000 | 0 | 0.00 KM |
| Fowler Street | £ 0 | 0 | 0.00 KM |
| The Dell | £ 0 | 0 | 0.00 KM |
Nearby Transport
| Name | NLC | TLC | Distance |
|---|---|---|---|
| Preston (Lancs) | 2753 | PRE | 3.36 KM |
| Lostock Hall | 2689 | LOH | 7.63 KM |
| Bamber Bridge | 2561 | BMB | 9.20 KM |
Nearby Listings
| Address | Price | Type | Score | Distance |
|---|---|---|---|---|
| Greyfriars Crescent, Fulwood, Preston, PR2 3RB | £ 300,000 | BUY | 7 / 10 | 0.00 KM |
| Greyfriars Avenue, Preston, PR2 3 | £ 300,000 | BUY | 8 / 10 | 0.13 KM |
| Greyfriars Avenue, Preston, PR2 3 | £ 280,000 | BUY | 7 / 10 | 0.13 KM |
| Greyfriars Avenue, Preston, PR2 3 | £ 230,000 | BUY | 7 / 10 | 0.14 KM |
| Conway Drive, Fulwood, Preston, PR2 3ES | £ 275,000 | BUY | 7 / 10 | 0.14 KM |
Nearby Properties
| Address | Price | Distance |
|---|---|---|
| 38 Greyfriars Crescent | £ 195,500 | 0.09 KM |
| 40 Greyfriars Crescent | £ 210,000 | 0.09 KM |
| 16 Greyfriars Crescent | £ 192,000 | 0.09 KM |
| 64 Greyfriars Crescent | £ 250,000 | 0.09 KM |
| 14 Greyfriars Crescent | £ 241,000 | 0.09 KM |