eXp UK says ..
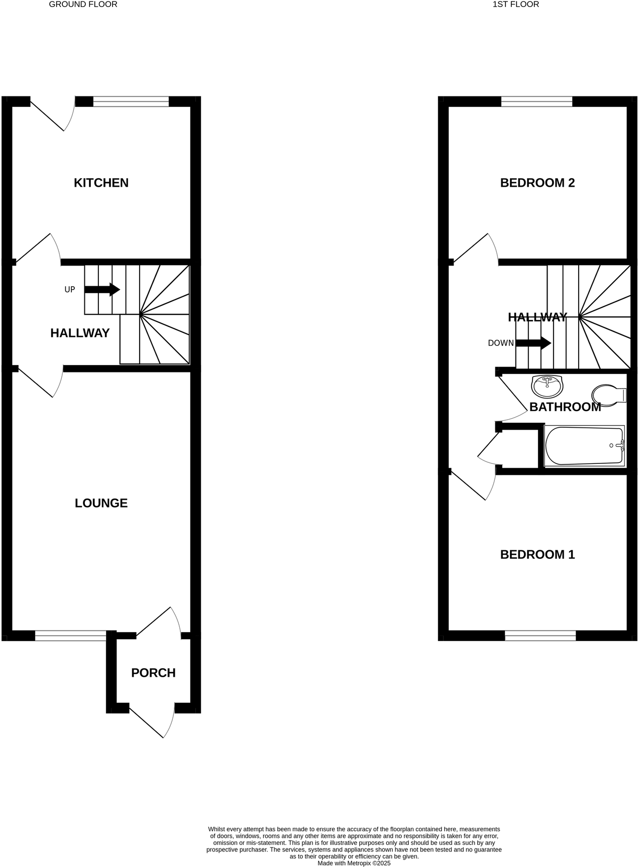
*OPEN DAY BY APPOINTMENT ONLY SATURDAY 28/06* Superbly located, well presented 2 bedroom semi-detached home. Perfect for first time buyers or downsizers, quote JK1260 upon enquiry and register your interest today.
Property Oracle says ..
Therefore, we give this property 5 / 10. *Disclaimer: This is our option and does constitute a recommendation or financial advice. Do your own research. *
- Price
- 5
- Condition
- 6
- Location
- 7
- Land
- 5
- Bedrooms
- 2
- Bathrooms
- 1
- Sqft (est)
- 689.00
The heatmap indicates the level of crime in the area. The color of the heatmap indicates the crime severity and recency.
Metrics Year-on-Year
- Average area value
- 199,000.00 £Decreased by 25.44 %
- Est sale value
- 267,332.00 £Increased by 15.13 %
- Average area rental value
- 1,426.00 £/moDecreased by 4.68 %
- Est letting value
- 1,378.00 £/moIncreased by 100.00 %
- Est rental Yield
- 8.60 %Increased by 27.79 %
- Crime Rate
- 3.00 %Unchanged by 0.00 %
from 266,913.00 £
from 232,193.00 £
from 1,496.00 £/mo
from 689.00 £/mo
from 6.73 %
from 3.00 %
Agent Activity
eXp UK created the listing.
Nearby Schools
| Name | Type | Ofsted | Distance |
|---|---|---|---|
| Shrubland Street Community Primary School | Community School | Good | 0.35 KM |
| Kingsway Children'S Centre | Children's Centre | 0.63 KM | |
| Whitnash Nursery School | Local Authority Nursery School | Outstanding | 0.72 KM |
| Whitnash Primary School | Community School | Good | 0.72 KM |
| St Patrick'S Catholic Primary School | Voluntary Aided School | Good | 0.73 KM |
Images
Nearby Streets
| Name | Average Price | Average Sqft | Distance |
|---|---|---|---|
| St John's Road | £ 155,000 | 0 | 0.00 KM |
| Rusina Court | £ 0 | 0 | 0.00 KM |
| Althorpe Street | £ 0 | 0 | 0.00 KM |
| Cumming Street | £ 0 | 0 | 0.00 KM |
| Cumming Street | £ 0 | 0 | 0.00 KM |
Nearby Transport
| Name | NLC | TLC | Distance |
|---|---|---|---|
| Leamington Spa | 4597 | LMS | 1.02 KM |
| Warwick | 4600 | WRW | 5.76 KM |
| Kenilworth | 7985 | KNW | 8.65 KM |
| Warwick Parkway | 8530 | WRP | 9.06 KM |
Nearby Listings
| Address | Price | Type | Score | Distance |
|---|---|---|---|---|
| Hitchman Mews, Leamington Spa | £ 250,000 | BUY | 5 / 10 | 0.00 KM |
| Hitchman Road, Leamington Spa | £ 120,000 | BUY | 5 / 10 | 0.04 KM |
| Hitchman Mews, Leamington Spa | £ 260,000 | BUY | 6 / 10 | 0.04 KM |
| Hitchman Road, Leamington Spa | £ 125,000 | BUY | 7 / 10 | 0.05 KM |
| St. Helens Road, Leamington Spa, Warwickshire, CV31 | £ 475,000 | BUY | 6 / 10 | 0.08 KM |
Nearby Properties
| Address | Price | Distance |
|---|---|---|
| 22 Hitchman Mews | £ 148,000 | 0.01 KM |
| 10 Hitchman Mews | £ 127,500 | 0.01 KM |
| 12 Hitchman Mews | £ 183,000 | 0.01 KM |
| 15 Hitchman Mews | £ 125,000 | 0.01 KM |
| 14 Hitchman Mews | £ 130,000 | 0.01 KM |