99
Redhill Gorse, Stafford, Staffordshire, ST16
By 99Home LTD
£ 245,000
Reviews
3 out of 5 stars
99Home LTD says ..
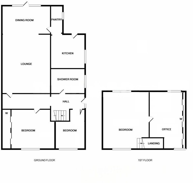
Property Ref: 15250 Beautifully Renovated 3-Bedroom Dormer Bungalow in a Sought-After Stafford Location Redhill Gorse, Trinity Fields, Stafford ST16 Freehold …
Property Oracle says ..
Therefore, we give this property 7 / 10. *Disclaimer: This is our option and does constitute a recommendation or financial advice. Do your own research. *
- Price
- 8
- Condition
- 7
- Location
- 7
- Land
- 7
- Bedrooms
- 3
- Bathrooms
- 1
- Sqft (est)
- 975.00
The heatmap indicates the level of crime in the area. The color of the heatmap indicates the crime severity and recency.
Metrics Year-on-Year
- Average area value
- 248,125.00 £Increased by 3.68 %
- Est sale value
- 299,325.00 £Increased by 26.86 %
- Average area rental value
- 1,100.00 £/moIncreased by 18.03 %
- Est letting value
- 975.00 £/mo
- Est rental Yield
- 5.32 %Increased by 13.92 %
- Crime Rate
- 7.00 %Unchanged by 0.00 %
from 239,320.00 £
from 235,950.00 £
from 932.00 £/mo
from 0.00 £/mo
from 4.67 %
from 7.00 %
Agent Activity
99Home LTD created the listing.
Nearby Schools
| Name | Type | Ofsted | Distance |
|---|---|---|---|
| Marshlands School | Community Special School | Good | 0.60 KM |
| Sir Graham Balfour High School | Academy Converter | Good | 1.02 KM |
| Tillington Manor Primary School | Community School | Good | 1.11 KM |
| Parkside Primary School | Academy Converter | Good | 1.13 KM |
| Doxey Primary And Nursery School | Community School | Requires improvement | 2.30 KM |
Images
Nearby Streets
| Name | Average Price | Average Sqft | Distance |
|---|---|---|---|
| Stone Road | £ 422,662 | 0 | 0.00 KM |
| Balfour Grove | £ 0 | 0 | 0.00 KM |
| Underwood Close | £ 0 | 0 | 0.00 KM |
| Bellis Court | £ 232,500 | 0 | 0.00 KM |
| Harry Kerr Drive | £ 0 | 0 | 0.00 KM |
Nearby Transport
| Name | NLC | TLC | Distance |
|---|---|---|---|
| Stafford | 1268 | STA | 3.28 KM |
| Stone (Staffs) | 1316 | SNE | 8.93 KM |
Nearby Listings
| Address | Price | Type | Score | Distance |
|---|---|---|---|---|
| Redhill Gorse, Stafford, Staffordshire, ST16 | £ 245,000 | BUY | 7 / 10 | 0.00 KM |
| Redhill Gorse, Stafford | £ 240,000 | BUY | Unknown | 0.09 KM |
| Redhill Gorse, Stafford, Staffordshire, ST16 | £ 240,000 | BUY | 7 / 10 | 0.09 KM |
| Crab Lane, Stafford | £ 240,000 | BUY | 6 / 10 | 0.13 KM |
| Redhill Gorse, Trinity Fields, Stafford, Staffordshire, ST16 | £ 240,000 | BUY | 7 / 10 | 0.14 KM |
Nearby Properties
| Address | Price | Distance |
|---|---|---|
| 24 Redhill Gorse | £ 126,000 | 0.09 KM |
| 25 Redhill Gorse | £ 164,500 | 0.09 KM |
| 39 Redhill Gorse | £ 125,000 | 0.09 KM |
| 27 Redhill Gorse | £ 166,000 | 0.09 KM |
| 9 Redhill Gorse | £ 132,000 | 0.09 KM |