Chappells says ..
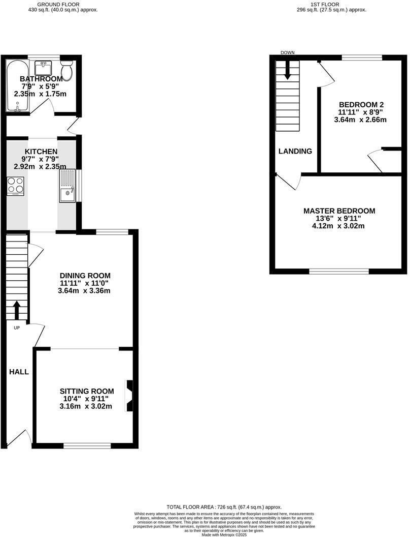
LOCATION ** LOCATION ** LOCATION ** SITUATED IN THE VERY HEART OF OLD TOWN OVERLOOKING THE TOWN GARDENS, THIS DELIGHTFUL TERRACED HOUSE OFFERS GOOD SIZE ACCOMMODATION, PERIOD FEATURES AND A LOVELY REAR GARDEN. TO THE GROUND FLOOR THERE IS A SPACIOUS LOUNGE WITH FIREPLACE, OPEN PLAN DINING ROOM, ...
Property Oracle says ..
This is a two-bedroom terraced house located on Quarry Road in Old Town, Swindon. The property is listed for £275,000 with Chappells. The house benefits from its proximity to local schools, including Lethbridge Primary School, and transportation links, with Swindon (Wilts) train station being less than 2km away. The interior of the property appears to be in generally good condition, although the kitchen could benefit from modernization. The property also features a garden, providing valuable outdoor space. Considering its location, condition, and features, the asking price seems reasonable.
Therefore, we give this property 6 / 10. *Disclaimer: This is our option and does constitute a recommendation or financial advice. Do your own research. *
- Price
- 7
- Condition
- 7
- Location
- 7
- Land
- 6
- Bedrooms
- 2
- Bathrooms
- 1
The heatmap indicates the level of crime in the area. The color of the heatmap indicates the crime severity and recency.
Metrics Year-on-Year
- Average area value
- 364,023.00 £Increased by 8.60 %
- Average area rental value
- 1,137.00 £/moDecreased by 2.15 %
- Est rental Yield
- 3.75 %Decreased by 9.86 %
- Crime Rate
- 0.00 %
Agent Activity
Chappells created the listing.
Nearby Schools
| Name | Type | Ofsted | Distance |
|---|---|---|---|
| Lethbridge Primary School | Academy Converter | Good | 0.13 KM |
| King William Street Church Of England Primary School | Academy Converter | Good | 0.51 KM |
| The Croft Primary School | Academy Sponsor Led | Outstanding | 0.59 KM |
| The Commonweal School | Academy Converter | Good | 0.83 KM |
| Holy Rood Catholic Primary School | Academy Converter | Requires improvement | 1.01 KM |
Images
Nearby Streets
| Name | Average Price | Average Sqft | Distance |
|---|---|---|---|
| Queensbury House | £ 140,000 | 0 | 0.00 KM |
| The Mews | £ 0 | 0 | 0.00 KM |
| Newport Street | £ 180,000 | 0 | 0.00 KM |
| Hoopers Place | £ 0 | 0 | 0.00 KM |
| Bow Court | £ 0 | 0 | 0.00 KM |
Nearby Transport
| Name | NLC | TLC | Distance |
|---|---|---|---|
| Swindon (Wilts) | 3333 | SWI | 1.89 KM |
Nearby Listings
| Address | Price | Type | Score | Distance |
|---|---|---|---|---|
| Quarry Road, Swindon | £ 275,000 | BUY | 6 / 10 | 0.00 KM |
| Quarry Road, Swindon, SN1 | £ 300,000 | BUY | 6 / 10 | 0.04 KM |
| Westlecot Road, Old Town, Swindon, SN1 | £ 700,000 | BUY | 7 / 10 | 0.14 KM |
| Avenue Road, Old Town, Swindon, SN1 | £ 375,250 | BUY | 8 / 10 | 0.19 KM |
| Avenue Road, Old Town, Swindon | £ 395,000 | BUY | 7 / 10 | 0.19 KM |
Nearby Properties
| Address | Price | Distance |
|---|---|---|
| 29 Quarry Road | £ 190,000 | 0.03 KM |
| 36 Quarry Road | £ 201,000 | 0.03 KM |
| 30 Quarry Road | £ 267,500 | 0.03 KM |
| 17 Quarry Road | £ 250,000 | 0.03 KM |
| 9 Quarry Road | £ 310,000 | 0.03 KM |