Ocean says ..
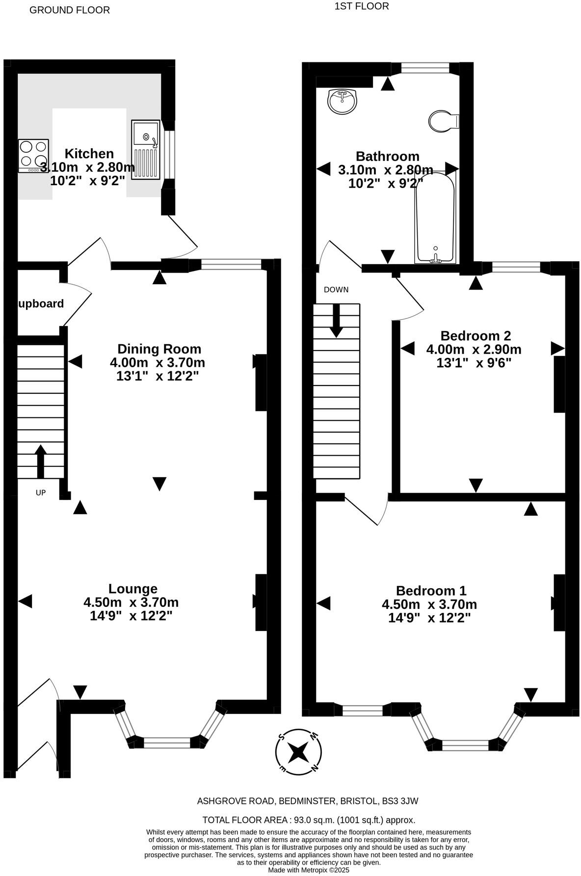
Bright and modern, this 2-bedroom terraced house in Bedminster has an open-plan living area and courtyard garden. It has no chain, making it perfect for first-time buyers.
Property Oracle says ..
This is a two-bedroom terraced house in Bedminster, Bristol. The property is in reasonable condition and has a garden. The property is well-located, with good access to local amenities, schools, and transportation links. The property is listed for £425,000, which is below the expected price given the square footage.
Therefore, we give this property 6 / 10. *Disclaimer: This is our option and does constitute a recommendation or financial advice. Do your own research. *
- Price
- 6
- Condition
- 7
- Location
- 7
- Land
- 6
- Bedrooms
- 2
- Bathrooms
- 1
- Sqft (est)
- 1,001.04
The heatmap indicates the level of crime in the area. The color of the heatmap indicates the crime severity and recency.
Metrics Year-on-Year
- Average area value
- 331,250.00 £Decreased by 14.00 %
- Est sale value
- 515,535.60 £Increased by 22.91 %
- Average area rental value
- 1,534.00 £/moDecreased by 7.03 %
- Est letting value
- 2,002.08 £/moIncreased by 100.00 %
- Est rental Yield
- 5.56 %Increased by 8.17 %
- Crime Rate
- 3.00 %Unchanged by 0.00 %
Agent Activity
Ocean created the listing.
Nearby Schools
| Name | Type | Ofsted | Distance |
|---|---|---|---|
| Luckwell Primary School | Academy Sponsor Led | 0.27 KM | |
| Compass Point: South Street School & Children'S Centre | Children's Centre | 0.47 KM | |
| Compass Point Primary School | Academy Converter | 0.52 KM | |
| Parson Street Primary School | Academy Converter | Requires improvement | 0.76 KM |
| Ashton Gate Primary School | Community School | Outstanding | 0.83 KM |
Images
Nearby Streets
| Name | Average Price | Average Sqft | Distance |
|---|---|---|---|
| Longmoor Road | £ 500,000 | 0 | 0.00 KM |
| Kingdom View | £ 0 | 0 | 0.00 KM |
| Trafalgar Terrace | £ 335,000 | 0 | 0.00 KM |
| Frobisher Road | £ 0 | 0 | 0.00 KM |
| Greenmarsh Lane | £ 0 | 0 | 0.00 KM |
Nearby Transport
| Name | NLC | TLC | Distance |
|---|---|---|---|
| Parson Street | 3246 | PSN | 0.50 KM |
| Bedminster | 3245 | BMT | 1.82 KM |
| Clifton Down | 3202 | CFN | 3.07 KM |
| Bristol Temple Meads | 3231 | BRI | 3.48 KM |
| Redland | 3247 | RDA | 3.71 KM |
Nearby Listings
| Address | Price | Type | Score | Distance |
|---|---|---|---|---|
| Ashgrove Road, Bedminster, Bristol | £ 425,000 | BUY | 6 / 10 | 0.00 KM |
| Ashgrove Road, Bedminster | £ 430,000 | BUY | 6 / 10 | 0.03 KM |
| Ashgrove Road, Bedminster, Bristol, Bristol City, BS3 | £ 289,995 | BUY | 7 / 10 | 0.03 KM |
| Ashgrove Road, Bedminster, Bristol | £ 525,000 | BUY | 7 / 10 | 0.04 KM |
| Ashgrove Road, Bedminster, Bristol | £ 500,000 | BUY | 5 / 10 | 0.04 KM |
Nearby Properties
| Address | Price | Distance |
|---|---|---|
| 61 Ashgrove Road | £ 310,726 | 0.03 KM |
| 49 Ashgrove Road | £ 352,500 | 0.03 KM |
| 45 Ashgrove Road | £ 160,000 | 0.03 KM |
| 21 Ashgrove Road | £ 505,000 | 0.03 KM |
| 47 Ashgrove Road | £ 398,500 | 0.03 KM |