Washington Road, Worcester Park, KT4
By eXp UK
£ 315,000
Reviews
3 out of 5 stars
eXp UK says ..
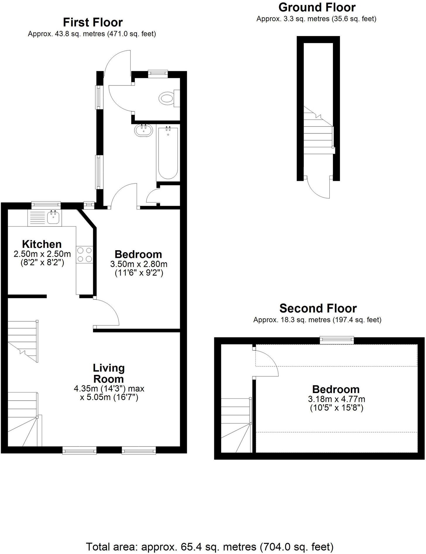
REF JK0700.We are pleased to offer this split level maisonette with it's own front door and direct access to private rear laid to lawn garden with storage sheds. Stairs to the first floor accommodation lead onto a spacious lounge reception area with two large pict...
Property Oracle says ..
This maisonette is located on Washington Road, Worcester Park, a suburban area in Sutton, Greater London. The property benefits from being within a reasonable distance of several South Western Railway stations, providing convenient access to London and surrounding areas. There are also several primary schools nearby, including Cheam Common Junior Academy which has a good Ofsted rating. This is a positive aspect for families.
The property itself is a two-bedroom maisonette with one bathroom. The images show a property that is habitable but could benefit from some modernisation. While not in disrepair, some updates to the decor and fixtures would enhance its overall appeal and potentially increase its value. The kitchen and bathroom appear functional but dated. The garden is a notable feature, offering some outdoor space, although it appears to require some maintenance.
Considering the average house price in the area is significantly higher at £483,081, and the average price per square foot is £504, the listed price of £315,000 for this 703.96 sqft maisonette appears relatively low. However, this needs to be considered in context with the property’s condition and the fact it is a maisonette rather than a house. The lower price might reflect the need for some modernisation. Nearby comparable properties show a range of prices, some higher and some lower, highlighting the variability in the market. The lack of plot size data for the comparable properties makes direct comparison difficult.
Based on the provided information, the property presents a reasonable value proposition for a buyer seeking a property that requires some updating but offers a relatively affordable entry point to the Worcester Park housing market. The location and proximity to transport links and schools are key advantages.
Therefore, we give this property 7 / 10. *Disclaimer: This is our option and does constitute a recommendation or financial advice. Do your own research. *
- Price
- 7
- Condition
- 7
- Location
- 8
- Land
- 6
- Bedrooms
- 2
- Bathrooms
- 1
- Sqft (est)
- 703.96
The heatmap indicates the level of crime in the area. The color of the heatmap indicates the crime severity and recency.
Metrics Year-on-Year
- Average area value
- 866,667.00 £Increased by 67.38 %
- Est sale value
- 327,341.40 £Decreased by 8.10 %
- Average area rental value
- 2,225.00 £/moIncreased by 16.19 %
- Est letting value
- 703.96 £/moUnchanged by 0.00 %
- Est rental Yield
- 3.08 %Decreased by 30.63 %
- Crime Rate
- 6.00 %Unchanged by 0.00 %
Agent Activity
eXp UK created the listing.
Nearby Schools
| Name | Type | Ofsted | Distance |
|---|---|---|---|
| Cheam Common Infants' Academy | Academy Converter | 0.40 KM | |
| Cheam Common Junior Academy | Academy Sponsor Led | Good | 0.46 KM |
| Dorchester Primary School | Foundation School | Good | 0.85 KM |
| Green Lane Primary And Nursery School | Academy Converter | 0.93 KM | |
| Meadow Primary School | Academy Converter | 1.52 KM |
Images
Nearby Streets
| Name | Average Price | Average Sqft | Distance |
|---|---|---|---|
| Caldbeck Avenue | £ 335,000 | 0 | 0.00 KM |
| Woodbine Lane | £ 520,000 | 0 | 0.00 KM |
| Bargate Close | £ 0 | 0 | 0.00 KM |
| Chiltern Close | £ 500,000 | 0 | 0.00 KM |
| Richlands Avenue | £ 0 | 0 | 0.00 KM |
Nearby Transport
| Name | NLC | TLC | Distance |
|---|---|---|---|
| Worcester Park | 5579 | WCP | 0.68 KM |
| Motspur Park | 5645 | MOT | 1.74 KM |
| Stoneleigh | 5606 | SNL | 2.08 KM |
| Malden Manor | 5599 | MAL | 2.50 KM |
| New Malden | 5567 | NEM | 3.29 KM |
Nearby Listings
| Address | Price | Type | Score | Distance |
|---|---|---|---|---|
| Washington Road, Worcester Park, KT4 | £ 315,000 | BUY | 7 / 10 | 0.00 KM |
| Washington Road, Worcester Park, Surrey | £ 330,500 | BUY | Unknown | 0.01 KM |
| Washington Road, Worcester Park, Surrey | £ 500,000 | BUY | Unknown | 0.01 KM |
| Washington Road, Worcester Park, KT4 | £ 350,000 | BUY | 7 / 10 | 0.03 KM |
| Washington Road, Worcester Park, KT4 | £ 625,000 | BUY | 7 / 10 | 0.04 KM |
Nearby Properties
| Address | Price | Distance |
|---|---|---|
| 74 Washington Road | £ 250,000 | 0.01 KM |
| 104 Washington Road | £ 331,500 | 0.01 KM |
| 26 Washington Road | £ 240,000 | 0.01 KM |
| 106 Washington Road | £ 240,000 | 0.01 KM |
| 30 Washington Road | £ 455,000 | 0.01 KM |