Robin Hood Close, Woking, Surrey, GU21
By Seymours Estate Agents
£ 435,000
Reviews
3 out of 5 stars
Seymours Estate Agents says ..
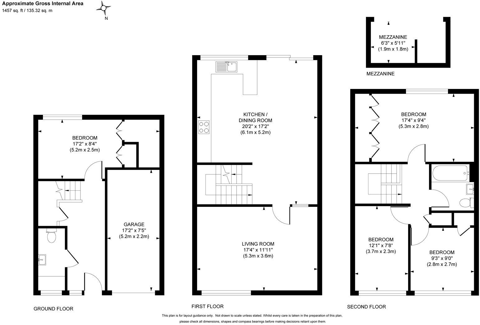
A very rare spacious townhouse that is offered to market within easy reach of St Johns village and Woking Town Centre that offers easy access to London Waterloo. The property is located in a quiet cul-de-sac and offers flexible living accommodation including three/four bedrooms, all of which...
Property Oracle says ..
This four-bedroom, two-bathroom terraced house in Woking, Surrey is listed at £435,000. The property has a plot size of 1,457 sqft and is situated in the St John’s area of Woking. While the provided images show a property that appears generally well-maintained, some areas could benefit from modernisation. The kitchen and bathrooms are functional but could be updated to enhance the overall aesthetic appeal. The garden is a notable feature, offering outdoor space. The location is convenient; with nearby schools and transportation links. Given the average house price in the area (£374,740) and average price per sqft (£373), the list price of £435,000 seems slightly above average, but not unreasonable considering the property’s size, location, and amenities.
Therefore, we give this property 7 / 10. *Disclaimer: This is our option and does constitute a recommendation or financial advice. Do your own research. *
- Price
- 6
- Condition
- 7
- Location
- 8
- Land
- 7
- Bedrooms
- 4
- Bathrooms
- 2
- Sqft (est)
- 1,029.17
- Lot (est)
- 1,457.00
The heatmap indicates the level of crime in the area. The color of the heatmap indicates the crime severity and recency.
Metrics Year-on-Year
- Average area value
- 384,737.00 £Decreased by 1.20 %
- Est sale value
- 418,872.19 £Increased by 15.95 %
- Average area rental value
- 1,963.00 £/moIncreased by 39.81 %
- Est letting value
- 2,058.34 £/moIncreased by 100.00 %
- Est rental Yield
- 6.12 %Increased by 41.34 %
- Crime Rate
- 12.00 %Unchanged by 0.00 %
Agent Activity
Seymours Estate Agents created the listing.
Nearby Schools
| Name | Type | Ofsted | Distance |
|---|---|---|---|
| The Winston Churchill School A Specialist Sports College | Foundation School | Good | 0.41 KM |
| Beaufort Primary School | Academy Converter | Good | 0.97 KM |
| St John'S Primary School | Academy Sponsor Led | Requires improvement | 1.04 KM |
| St John'S Primary School And Sure Start Children'S Centre | Children's Centre | 1.04 KM | |
| The Oaktree School | Academy Converter | 1.17 KM |
Images
Nearby Streets
| Name | Average Price | Average Sqft | Distance |
|---|---|---|---|
| Robin Hood Roundabout cycle path | £ 0 | 0 | 0.00 KM |
| Saint John's Lye | £ 0 | 0 | 0.00 KM |
| Lockfield Drive cycle path | £ 0 | 0 | 0.00 KM |
| Prestbury Court | £ 0 | 0 | 0.00 KM |
| St John's Road | £ 535,000 | 0 | 0.00 KM |
Nearby Transport
| Name | NLC | TLC | Distance |
|---|---|---|---|
| Worplesdon | 5686 | WPL | 3.23 KM |
| Brookwood | 5687 | BKO | 4.35 KM |
| Woking | 5685 | WOK | 4.54 KM |
| Longcross | 5674 | LNG | 7.96 KM |
| Guildford | 5631 | GLD | 8.76 KM |
Nearby Listings
| Address | Price | Type | Score | Distance |
|---|---|---|---|---|
| Robin Hood Close, Woking, Surrey, GU21 | £ 435,000 | BUY | 7 / 10 | 0.00 KM |
| St,Johns | £ 435,000 | BUY | 7 / 10 | 0.00 KM |
| Robin Hood Close, St Johns, Woking, GU21 | £ 450,000 | BUY | 6 / 10 | 0.03 KM |
| Ashley Road, Woking, Surrey, GU21 | £ 425,000 | BUY | 7 / 10 | 0.06 KM |
| St. Johns, Woking, Surrey, GU21 | £ 400,000 | BUY | 6 / 10 | 0.08 KM |
Nearby Properties
| Address | Price | Distance |
|---|---|---|
| 2 Robin Hood Close | £ 550,000 | 0.01 KM |
| 11 Robin Hood Close | £ 370,000 | 0.01 KM |
| 17 Robin Hood Close | £ 340,000 | 0.01 KM |
| 14 Robin Hood Close | £ 358,100 | 0.01 KM |
| 18 Robin Hood Close | £ 282,000 | 0.01 KM |