Farm Way, Benfleet
AS

Farm Way, Benfleet

By Aspire Estate Agents

£ 375,000

Reviews

3 out of 5 stars

Aspire Estate Agents says ..

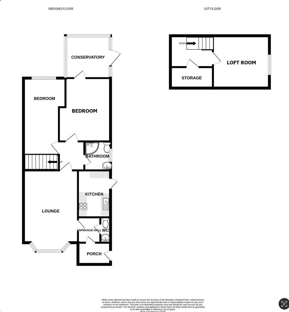
£375,000 - £385,000 Deceptively Spacious Two-Bedroom Semi-Detached Bungalow in the Heart of Thundersley Village This charming and deceptively spacious two-bedroom semi-detached bungalow offers a generous and versatile layout, including a useful loft room and exciting potential for furthe...

Property Oracle says ..

This semi-detached bungalow is located in Benfleet, Essex, and is on the market for £375,000. The property includes two bedrooms and one bathroom, and has a total area of 735.46 sqft. The average house price in the area is £455,821, with an average price per sqft of £459. This property is smaller than average for the area. The property benefits from a good sized garden, and appears to be in good condition, with a modern kitchen and conservatory. There are several good schools nearby, and transport links are within reasonable distance. Considering the location, condition, and size of the garden, the asking price is reasonable compared to similar properties in the area.

Therefore, we give this property 7 / 10. *Disclaimer: This is our option and does constitute a recommendation or financial advice. Do your own research. *

Price
7
Condition
8
Location
7
Land
7
Bedrooms
2
Bathrooms
1
Sqft (est)
735.46

The heatmap indicates the level of crime in the area. The color of the heatmap indicates the crime severity and recency.

Metrics Year-on-Year

Average area value
424,017.00 £
Decreased by 8.36 %
from 462,700.00 £
Est sale value
311,835.04 £
Decreased by 11.85 %
from 353,756.26 £
Average area rental value
1,575.00 £/mo
Increased by 17.19 %
from 1,344.00 £/mo
Est letting value
735.46 £/mo
Unchanged by 0.00 %
from 735.46 £/mo
Est rental Yield
4.46 %
Increased by 27.79 %
from 3.49 %
Crime Rate
20.00 %
Unchanged by 0.00 %
from 20.00 %

Agent Activity

  • Aspire Estate Agents marked this listing as sold.

  • Aspire Estate Agents created the listing.

Nearby Schools

NameTypeOfstedDistance
Cedar Hall SchoolFoundation Special SchoolGood0.30 KM
Thundersley Primary SchoolAcademy ConverterGood0.88 KM
Cap5 Little Handprints Family Hub Delivery SiteChildren's Centre0.88 KM
The DeanesAcademy Sponsor LedRequires improvement1.06 KM
Usp CollegeFurther Education1.24 KM

Images

DJI_0895-Edit.jpg 171A1269-171A1273-Edit.jpg 171A1259-171A1263-Edit.jpg 171A1224-171A1228-Edit.jpg 171A1219-171A1223-Edit.jpg 171A1179-171A1183-Edit.jpg 171A1184-171A1188-Edit.jpg 171A1169-171A1173-Edit.jpg 171A1189-171A1193-Edit.jpg 171A1194-171A1198-Edit.jpg 171A1199-171A1203-Edit.jpg 171A1204-171A1208-Edit.jpg 171A1239-171A1243.jpg 171A1249-171A1253-Edit.jpg 171A1278-Edit.jpg 171A1280-Edit.jpg 171A1281-Edit.jpg DJI_0893-Edit.jpg DJI_0894-Edit.jpg

Nearby Streets

NameAverage PriceAverage SqftDistance
Main road £ 000.00 KM
Deerhurst Close £ 000.00 KM
Thorndale £ 000.00 KM
The Common £ 000.00 KM
Starling Close £ 000.00 KM

Nearby Transport

NameNLCTLCDistance
Rayleigh6884RLG2.31 KM
Benfleet7439BEF4.36 KM
Leigh-On-Sea7446LES6.45 KM
Battlesbridge6870BLB6.61 KM
Hockley6880HOC8.42 KM

Nearby Listings

AddressPriceTypeScoreDistance
Farm Way, Benfleet £ 375,000BUY7 / 100.00 KM
Farm Way, Thundersley £ 395,000BUY6 / 100.05 KM
Farm Way, Thundersley, Benfleet £ 350,000BUY6 / 100.06 KM
Farm Way, Benfleet, Essex, SS7 £ 350,000BUYUnknown0.07 KM
Woodlow, Benfleet £ 350,000BUY7 / 100.08 KM

Nearby Properties

AddressPriceDistance
6 Farm Way £ 230,0000.05 KM
20 Farm Way £ 325,0000.05 KM
2 Farm Way £ 215,0000.05 KM
24 Farm Way £ 315,0000.05 KM
26 Farm Way £ 347,5000.05 KM