Finsbury Street, South Bank, York
By Churchills Estate Agents
£ 267,500
Reviews
3 out of 5 stars
Churchills Estate Agents says ..
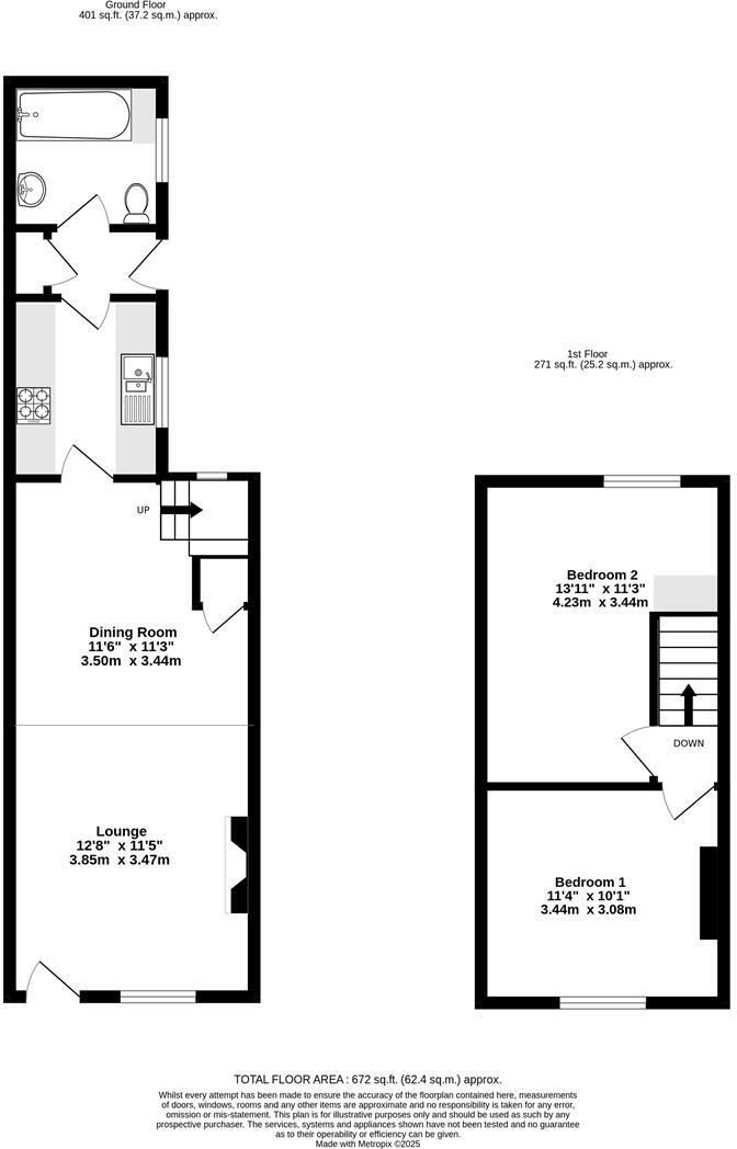
An immaculate two double bedroom period mid terrace home, located on this premium terraced street just off Bishopthorpe Road and close to Rowntree Park and the Millennium Bridge. The property provides bright and spacious living accommodation with uPVC double glazing, gas central heating throughou...
Property Oracle says ..
Therefore, we give this property 6 / 10. *Disclaimer: This is our option and does constitute a recommendation or financial advice. Do your own research. *
- Price
- 7
- Condition
- 8
- Location
- 8
- Land
- 2
- Bedrooms
- 2
- Bathrooms
- 1
- Sqft (est)
- 547.43
The heatmap indicates the level of crime in the area. The color of the heatmap indicates the crime severity and recency.
Metrics Year-on-Year
- Average area value
- 542,496.00 £Increased by 34.28 %
- Est sale value
- 228,825.74 £Increased by 33.55 %
- Average area rental value
- 1,435.00 £/moIncreased by 6.30 %
- Est letting value
- 547.43 £/moUnchanged by 0.00 %
- Est rental Yield
- 3.17 %Decreased by 20.95 %
- Crime Rate
- 2.00 %Unchanged by 0.00 %
from 404,000.00 £
from 171,345.59 £
from 1,350.00 £/mo
from 547.43 £/mo
from 4.01 %
from 2.00 %
Agent Activity
Churchills Estate Agents created the listing.
Nearby Schools
| Name | Type | Ofsted | Distance |
|---|---|---|---|
| Knavesmire Children'S Centre | Children's Centre | 0.46 KM | |
| Knavesmire Primary School | Academy Converter | 0.46 KM | |
| Millthorpe School | Academy Converter | Good | 0.68 KM |
| York Steiner School | Other Independent School | Inadequate | 0.94 KM |
| Scarcroft Primary School | Academy Converter | 0.97 KM |
Images
Nearby Streets
| Name | Average Price | Average Sqft | Distance |
|---|---|---|---|
| Drake Street | £ 180,000 | 0 | 0.00 KM |
| Bishopgate Street | £ 0 | 0 | 0.00 KM |
| Bishopthorpe Road | £ 0 | 0 | 0.00 KM |
| Bishopthorpegate Street | £ 230,000 | 0 | 0.00 KM |
| Nunnery Lane | £ 0 | 0 | 0.00 KM |
Nearby Transport
| Name | NLC | TLC | Distance |
|---|---|---|---|
| York | 8263 | YRK | 1.64 KM |
| Poppleton | 8254 | POP | 7.77 KM |
Nearby Listings
| Address | Price | Type | Score | Distance |
|---|---|---|---|---|
| Finsbury Street, South Bank, York | £ 267,500 | BUY | 6 / 10 | 0.00 KM |
| Finsbury Street, York | £ 250,000 | BUY | 5 / 10 | 0.01 KM |
| Finsbury Street, York YO23 1LT | £ 299,950 | BUY | Unknown | 0.02 KM |
| Bishopthorpe Road, York, North Yorkshire, YO23 | £ 625,000 | BUY | 7 / 10 | 0.04 KM |
| Bishopthorpe Road, York, North Yorkshire, YO23 | £ 500,000 | BUY | 5 / 10 | 0.05 KM |
Nearby Properties
| Address | Price | Distance |
|---|---|---|
| 49 Finsbury Street | £ 200,000 | 0.02 KM |
| 46 Finsbury Street | £ 48,950 | 0.02 KM |
| 27 Finsbury Street | £ 155,000 | 0.02 KM |
| 31 Finsbury Street | £ 159,950 | 0.02 KM |
| 44 Finsbury Street | £ 143,500 | 0.02 KM |