CH
Banbury, Oxfordshire, OX16
By Chancellors
£ 150,000
Chancellors says ..
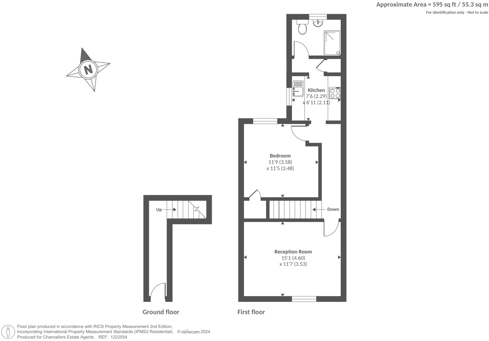
Chancellors are pleased to offer this top floor apartment with excellent rail links as well as being close to the town centre. the property boasts high ceilings, spacious living accommodation and allocated off road parking, the apartment is in good condition throughout. Viewing highly recommended.
- Bedrooms
- 1
- Bathrooms
- 1
The heatmap indicates the level of crime in the area. The color of the heatmap indicates the crime severity and recency.
Metrics Year-on-Year
- Average area value
- 379,990.00 £Increased by 38.42 %
- Average area rental value
- 1,098.00 £/moDecreased by 12.23 %
- Est rental Yield
- 3.47 %Decreased by 36.56 %
- Crime Rate
- 27.00 %Unchanged by 0.00 %
from 274,514.00 £
from 1,251.00 £/mo
from 5.47 %
from 27.00 %
Agent Activity
Chancellors created the listing.
Nearby Schools
| Name | Type | Ofsted | Distance |
|---|---|---|---|
| Dashwood Banbury Academy | Academy Sponsor Led | Good | 0.39 KM |
| East Street Children And Family Centre | Children's Centre Linked Site | 0.73 KM | |
| St Leonard'S Church Of England Primary School | Voluntary Controlled School | Good | 0.82 KM |
| St John'S Catholic Primary School | Academy Sponsor Led | 1.31 KM | |
| St Mary'S Church Of England Primary School, Banbury | Academy Converter | 1.48 KM |
Images
Nearby Streets
| Name | Average Price | Average Sqft | Distance |
|---|---|---|---|
| Higham Way | £ 146,875 | 0 | 0.00 KM |
| Crown House | £ 0 | 0 | 0.00 KM |
| Canal Street | £ 0 | 0 | 0.00 KM |
| Blacklock House | £ 0 | 0 | 0.00 KM |
| Amos Court | £ 0 | 0 | 0.00 KM |
Nearby Transport
| Name | NLC | TLC | Distance |
|---|---|---|---|
| Banbury | 4502 | BAN | 0.25 KM |
| Kings Sutton | 4508 | KGS | 6.74 KM |
Nearby Listings
| Address | Price | Type | Score | Distance |
|---|---|---|---|---|
| Banbury, Oxfordshire, OX16 | £ 150,000 | BUY | Unknown | 0.00 KM |
| Merton Street, BANBURY, Oxfordshire, OX16 | £ 120,000 | BUY | 6 / 10 | 0.03 KM |
| Merton Street, Banbury | £ 159,950 | BUY | 6 / 10 | 0.03 KM |
| Causeway, Banbury | £ 265,000 | BUY | 6 / 10 | 0.05 KM |
| Banbury, Oxfordshire, OX16 | £ 200,000 | BUY | Unknown | 0.06 KM |
Nearby Properties
| Address | Price | Distance |
|---|---|---|
| 2 Merton Street | £ 80,000 | 0.01 KM |
| 3 Merton Street | £ 60,000 | 0.01 KM |
| 36 Causeway | £ 42,000 | 0.04 KM |
| 44 Causeway | £ 98,000 | 0.04 KM |
| 34 Causeway | £ 156,000 | 0.04 KM |