Ravenswood Avenue, Ipswich, IP3
By Joseph Property Agency
£ 310,000
Reviews
3 out of 5 stars
Joseph Property Agency says ..
Situated in the sought-after Ravenswood area, this attractive three bedroom home offers a desirable cul-de-sac position ensuring peace and privacy.
Property Oracle says ..
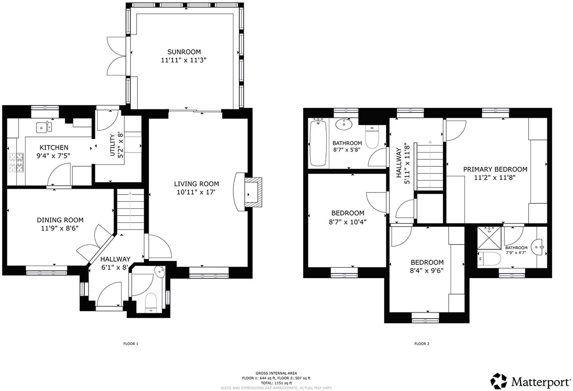
This detached property on Ravenswood Avenue, Ipswich, offers three bedrooms and two bathrooms, with a total area of 1,032 sqft. The house includes a detached garage and a generously sized garden. While the property is situated in a convenient location close to schools and transportation, the interior is dated and requires modernisation. The asking price of £310,000 is slightly above the local average per square foot, reflecting the property’s detached status and garden size, but also accounting for the necessary renovations.
Therefore, we give this property 6 / 10. *Disclaimer: This is our option and does constitute a recommendation or financial advice. Do your own research. *
- Price
- 6
- Condition
- 5
- Location
- 7
- Land
- 7
- Bedrooms
- 3
- Bathrooms
- 2
- Sqft (est)
- 1,032.00
The heatmap indicates the level of crime in the area. The color of the heatmap indicates the crime severity and recency.
Metrics Year-on-Year
- Average area value
- 255,769.00 £Decreased by 9.91 %
- Est sale value
- 293,088.00 £Increased by 1.79 %
- Average area rental value
- 1,124.00 £/moIncreased by 8.18 %
- Est letting value
- 1,032.00 £/moUnchanged by 0.00 %
- Est rental Yield
- 5.27 %Increased by 20.05 %
- Crime Rate
- 4.00 %Unchanged by 0.00 %
Agent Activity
Joseph Property Agency created the listing.
Nearby Schools
| Name | Type | Ofsted | Distance |
|---|---|---|---|
| Sir Bobby Robson School | Free Schools Special | 0.47 KM | |
| Ipswich Academy | Academy Sponsor Led | Good | 0.48 KM |
| Ravenswood Community Primary School | Community School | Good | 0.68 KM |
| Tree House Children'S Centre | Children's Centre | 0.89 KM | |
| New Skill Centre | Other Independent Special School | Requires improvement | 0.90 KM |
Images
Nearby Streets
| Name | Average Price | Average Sqft | Distance |
|---|---|---|---|
| Ravenswood Way | £ 0 | 0 | 0.00 KM |
| Shenley Road | £ 0 | 0 | 0.00 KM |
| Henry Road | £ 0 | 0 | 0.00 KM |
| Freston Road | £ 0 | 0 | 0.00 KM |
| Queen's Way | £ 265,000 | 0 | 0.00 KM |
Nearby Transport
| Name | NLC | TLC | Distance |
|---|---|---|---|
| Derby Road (Ipswich) | 7212 | DBR | 2.10 KM |
| Ipswich | 7217 | IPS | 5.38 KM |
| Westerfield | 7226 | WFI | 5.95 KM |
Nearby Listings
| Address | Price | Type | Score | Distance |
|---|---|---|---|---|
| Ravenswood Avenue, Ipswich, IP3 | £ 310,000 | BUY | 6 / 10 | 0.00 KM |
| Harrier Close, Ipswich | £ 305,000 | BUY | 6 / 10 | 0.05 KM |
| Harrier Close, Ipswich | £ 240,000 | BUY | 7 / 10 | 0.06 KM |
| Ravenswood Avenue, Ipswich | £ 160,000 | BUY | 7 / 10 | 0.07 KM |
| Ravenswood Avenue, Ipswich | £ 150,000 | BUY | 7 / 10 | 0.07 KM |
Nearby Properties
| Address | Price | Distance |
|---|---|---|
| 4 Harrier Close | £ 178,500 | 0.05 KM |
| 15 Harrier Close | £ 337,500 | 0.05 KM |
| 5 Harrier Close | £ 280,000 | 0.05 KM |
| 3 Harrier Close | £ 292,500 | 0.05 KM |
| 10 Harrier Close | £ 139,950 | 0.05 KM |