BO
7 Mossvale Grove, Saltley, Birmingham, B8 3QJ
By Bond Wolfe
£ 1
Reviews
2 out of 5 stars
Bond Wolfe says ..
For Sale By Public Auction 10 December 2025 A vacant leasehold semi detached property
Property Oracle says ..
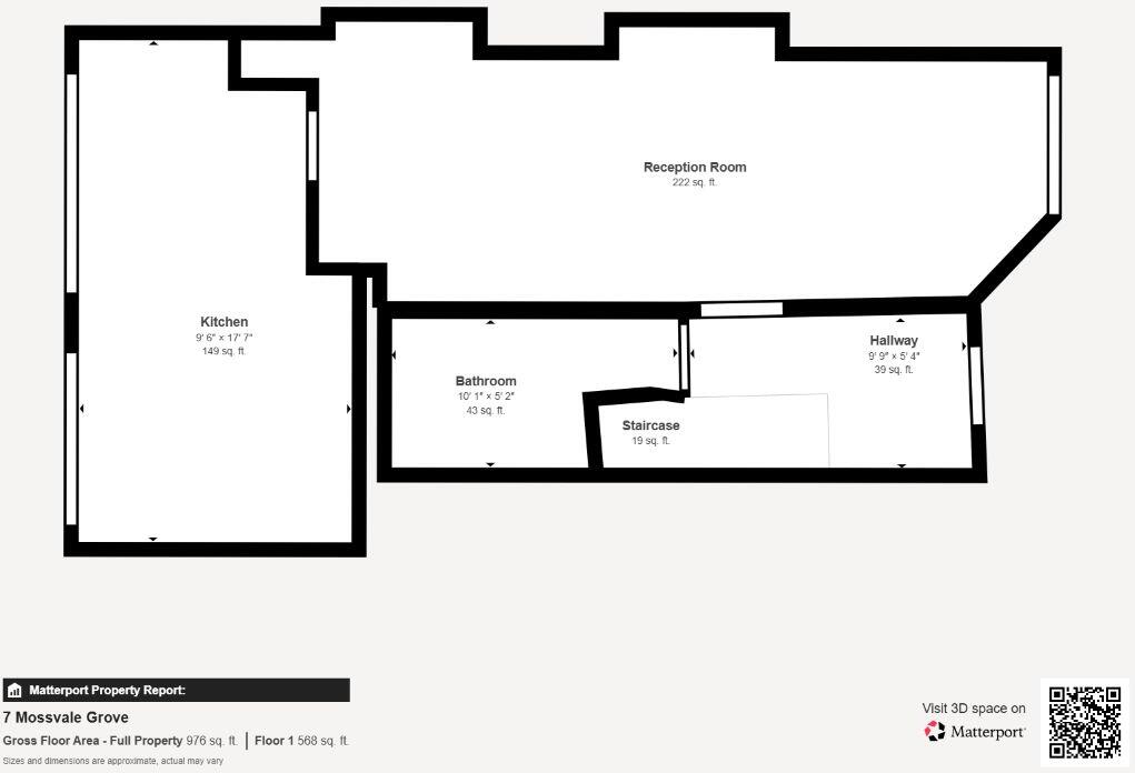
7 Mossvale Grove is a 2-bedroom semi-detached house located in Alum Rock, Birmingham. The property requires extensive renovation and is in poor condition. The house has a garden that needs landscaping. The listing price is incorrect.
Therefore, we give this property 5 / 10. *Disclaimer: This is our option and does constitute a recommendation or financial advice. Do your own research. *
- Price
- 8
- Condition
- 2
- Location
- 6
- Land
- 5
- Bedrooms
- 2
- Bathrooms
- 0
- Sqft (est)
- 472.00
The heatmap indicates the level of crime in the area. The color of the heatmap indicates the crime severity and recency.
Metrics Year-on-Year
- Average area value
- 210,398.00 £Decreased by 9.64 %
- Est sale value
- 118,472.00 £Increased by 22.44 %
- Average area rental value
- 1,204.00 £/moIncreased by 43.33 %
- Est letting value
- 472.00 £/mo
- Est rental Yield
- 6.87 %Increased by 58.66 %
- Crime Rate
- 3.00 %Unchanged by 0.00 %
from 232,840.00 £
from 96,760.00 £
from 840.00 £/mo
from 0.00 £/mo
from 4.33 %
from 3.00 %
Agent Activity
Bond Wolfe created the listing.
Nearby Schools
| Name | Type | Ofsted | Distance |
|---|---|---|---|
| Nansen Primary School | Academy Sponsor Led | Special Measures | 0.29 KM |
| Rockwood Academy | Academy Converter | Good | 0.29 KM |
| Highfield Junior And Infant School | Academy Sponsor Led | Good | 0.33 KM |
| Leigh Primary School | Academy Converter | Good | 0.47 KM |
| Highfield Nursery School | Local Authority Nursery School | Good | 0.52 KM |
Images
Nearby Streets
| Name | Average Price | Average Sqft | Distance |
|---|---|---|---|
| Glen Park Road | £ 0 | 0 | 0.00 KM |
| Highfield Road | £ 210,000 | 0 | 0.00 KM |
| Mendip Avenue | £ 0 | 0 | 0.00 KM |
| Wagoners Close | £ 300,000 | 0 | 0.00 KM |
| Salisbury Road | £ 167,500 | 0 | 0.00 KM |
Nearby Transport
| Name | NLC | TLC | Distance |
|---|---|---|---|
| Adderley Park | 1036 | ADD | 1.56 KM |
| Gravelly Hill | 1132 | GVH | 2.50 KM |
| Duddeston | 1040 | DUD | 2.82 KM |
| Aston | 1004 | AST | 3.07 KM |
| Small Heath | 4530 | SMA | 3.60 KM |
Nearby Listings
| Address | Price | Type | Score | Distance |
|---|---|---|---|---|
| 7 Mossvale Grove, Saltley, Birmingham, B8 3QJ | £ 1 | BUY | 5 / 10 | 0.00 KM |
| Haycroft Avenue, Birmingham, West Midlands, B8 | £ 190,000 | BUY | Unknown | 0.10 KM |
| Harts Road, Birmingham, West Midlands | £ 244,950 | BUY | 6 / 10 | 0.13 KM |
| Glenpark Road, Birmingham | £ 300,000 | BUY | 6 / 10 | 0.13 KM |
| Haycroft Avenue, Birmingham, West Midlands, B8 | £ 200,000 | BUY | Unknown | 0.13 KM |
Nearby Properties
| Address | Price | Distance |
|---|---|---|
| 18 Mossvale Grove | £ 92,000 | 0.02 KM |
| 21 Mossvale Grove | £ 115,000 | 0.02 KM |
| 14 Mossvale Grove | £ 115,000 | 0.02 KM |
| 19 Mossvale Grove | £ 125,000 | 0.02 KM |
| 83 Harts Road | £ 81,000 | 0.09 KM |