Arnold & Phillips says ..
Arnold and Phillips are delighted to offer this charming two-bedroom semi-detached property, ideally positioned along the sought-after and well-connected East Street in Southport. This classic Southport “doors-together” style home combines timeless character with a practical and invit...
Property Oracle says ..
This two-bedroom semi-detached property on East Street, Southport, presents as a comfortable family home or an investment opportunity. Its location offers convenient access to Southport town centre via nearby transport links. Multiple schools within reasonable proximity support family living. The provided images show a well-presented interior with a recently modernised kitchen. The property benefits from a small rear garden, adding practical outdoor space. However, the lack of precise plot size data hinders a more complete assessment of the land. While the asking price of £170,000 appears competitive given nearby sales, the absence of detailed square footage information on comparable properties makes a definitive price-per-square-foot calculation difficult. The overall impression is of a reasonably well-maintained home in a decent location, offering a balanced blend of features, but with minor potential for improvement.
Therefore, we give this property 6 / 10. *Disclaimer: This is our option and does constitute a recommendation or financial advice. Do your own research. *
- Price
- 7
- Condition
- 6
- Location
- 7
- Land
- 4
- Bedrooms
- 2
- Bathrooms
- 1
- Sqft (est)
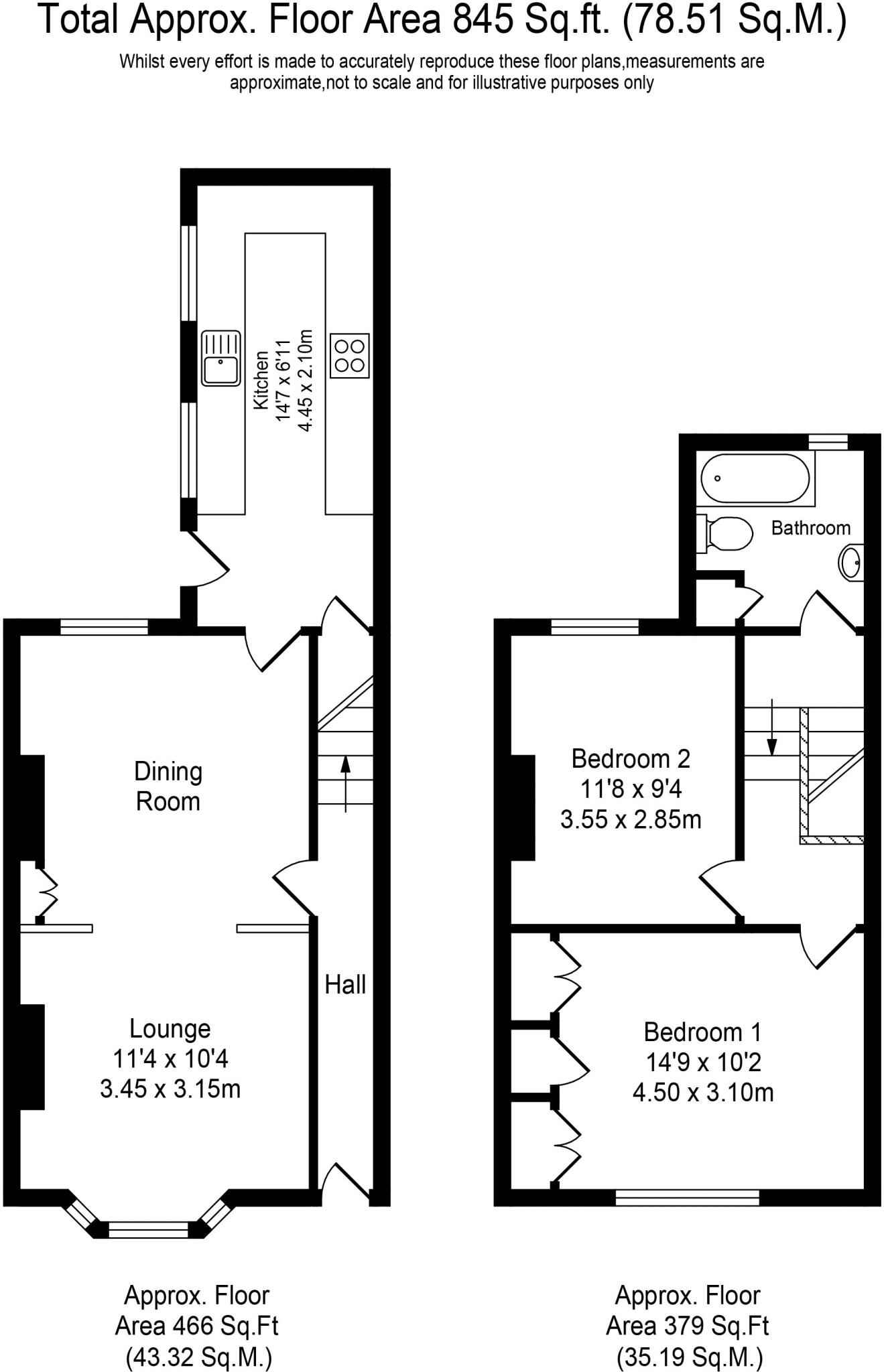
- 845.07
The heatmap indicates the level of crime in the area. The color of the heatmap indicates the crime severity and recency.
Metrics Year-on-Year
- Average area value
- 337,276.00 £Decreased by 6.99 %
- Est sale value
- 264,506.91 £Increased by 9.06 %
- Average area rental value
- 7,147.00 £/moIncreased by 653.90 %
- Est letting value
- 5,070.42 £/mo
- Est rental Yield
- 25.43 %Increased by 709.87 %
- Crime Rate
- 3.00 %Unchanged by 0.00 %
Agent Activity
Arnold & Phillips created the listing.
Nearby Schools
| Name | Type | Ofsted | Distance |
|---|---|---|---|
| Arden College | Special Post 16 Institution | Good | 0.63 KM |
| St Philip'S Church Of England Primary School | Voluntary Aided School | Good | 0.69 KM |
| Holy Trinity Church Of England Primary School, Southport | Academy Converter | 0.70 KM | |
| Parenting 2000 Children'S Centre | Children's Centre Linked Site | 0.73 KM | |
| Southport College | Further Education | Good | 0.79 KM |
Images
Nearby Streets
| Name | Average Price | Average Sqft | Distance |
|---|---|---|---|
| Manchester Road | £ 177,000 | 0 | 0.00 KM |
| Sussex Road | £ 0 | 0 | 0.00 KM |
| Hall Street | £ 0 | 0 | 0.00 KM |
| Tithebarn Road | £ 120,000 | 0 | 0.00 KM |
| Pilkington Road | £ 280,000 | 0 | 0.00 KM |
Nearby Transport
| Name | NLC | TLC | Distance |
|---|---|---|---|
| Southport | 2262 | SOP | 1.31 KM |
| Meols Cop | 2357 | MEC | 1.65 KM |
| Birkdale | 2352 | BDL | 3.05 KM |
| Hillside | 2231 | HIL | 4.74 KM |
| Ainsdale | 2350 | ANS | 7.69 KM |
Nearby Listings
| Address | Price | Type | Score | Distance |
|---|---|---|---|---|
| East Street, Southport | £ 170,000 | BUY | 6 / 10 | 0.00 KM |
| East Street,Southport,PR9 0RD | £ 42,500 | BUY | 7 / 10 | 0.00 KM |
| The Printworks, East Street, Southport, PR9 | £ 42,500 | BUY | 6 / 10 | 0.00 KM |
| The Print Works, 15A East Street, Southport, Merseyside, PR9 0RD | £ 42,500 | BUY | 7 / 10 | 0.00 KM |
| East Street, Southport, PR9 | £ 165,000 | BUY | Unknown | 0.05 KM |
Nearby Properties
| Address | Price | Distance |
|---|---|---|
| 21 East Street | £ 97,950 | 0.01 KM |
| 25 East Street | £ 132,000 | 0.01 KM |
| 4 East Street | £ 121,000 | 0.01 KM |
| 27 East Street | £ 159,995 | 0.01 KM |
| 14 East Street | £ 142,000 | 0.01 KM |