Flat , Lee Heights, Bambridge Court, Maidstone
By Honeydell Estate Agents Ltd
£ 205,000
Reviews
4 out of 5 stars
Honeydell Estate Agents Ltd says ..
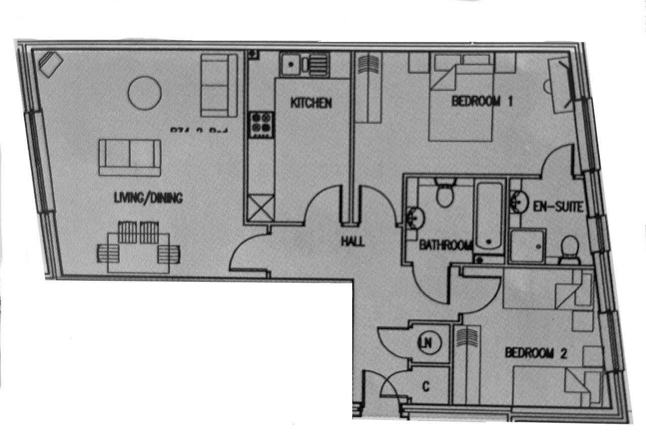
NO CHAIN with this well presented top floor (third floor) two bedroom apartment situated in the sought after after Lee Heights development.
Property Oracle says ..
The property is a two-bedroom, two-bathroom apartment located in Bambridge Court, Maidstone, Kent. The apartment is conveniently located near several primary and secondary schools, with Maidstone Grammar School for Girls and The Maplesden Noakes School being within a kilometer. Transportation links are also excellent, with Maidstone Barracks and Maidstone East train stations both less than a kilometer away. This provides easy access to commuting routes.
Based on the provided images, the apartment appears to be in good condition. The interior is modern and well-maintained, with updated fixtures and fittings. There is evidence of a communal garden area, although the specific plot size for this apartment is not provided.
Considering the average price per square foot in the area is £293, and similar apartments in Bambridge Court are listed between £200,000 and £220,000, the list price of £205,000 appears to be reasonable, potentially even slightly below average for the area, given its proximity to transport and schools. However, without knowing the square footage of the apartment, a definitive conclusion on price-per-square-foot value cannot be reached.
The lack of information regarding the square footage of the property and the plot size prevents a more detailed analysis of land and price. Further information is required to provide a more comprehensive assessment.
Therefore, we give this property 8 / 10. *Disclaimer: This is our option and does constitute a recommendation or financial advice. Do your own research. *
- Price
- 7
- Condition
- 8
- Location
- 9
- Land
- 0
- Bedrooms
- 2
- Bathrooms
- 2
The heatmap indicates the level of crime in the area. The color of the heatmap indicates the crime severity and recency.
Metrics Year-on-Year
- Average area value
- 273,561.00 £Increased by 1.68 %
- Average area rental value
- 1,086.00 £/moDecreased by 11.20 %
- Est rental Yield
- 4.76 %Decreased by 12.66 %
- Crime Rate
- 8.00 %Unchanged by 0.00 %
Agent Activity
Honeydell Estate Agents Ltd created the listing.
Nearby Schools
| Name | Type | Ofsted | Distance |
|---|---|---|---|
| Maidstone Grammar School For Girls | Foundation School | Outstanding | 0.70 KM |
| The Maplesden Noakes School | Academy Converter | Good | 0.82 KM |
| North Borough Junior School | Community School | Good | 0.94 KM |
| Brunswick House Primary School | Community School | Good | 1.03 KM |
| St Paul'S Infant School | Community School | Good | 1.08 KM |
Images
Nearby Streets
| Name | Average Price | Average Sqft | Distance |
|---|---|---|---|
| Springfield Avenue | £ 0 | 0 | 0.00 KM |
| guinevere point | £ 250,000 | 0 | 0.00 KM |
| Fawley Close | £ 0 | 0 | 0.00 KM |
| James Whathan Way | £ 362,852 | 0 | 0.00 KM |
| Egerton Road | £ 290,000 | 0 | 0.00 KM |
Nearby Transport
| Name | NLC | TLC | Distance |
|---|---|---|---|
| Maidstone Barracks | 5237 | MDB | 0.87 KM |
| Maidstone East | 5115 | MDE | 0.98 KM |
| Maidstone West | 5222 | MDW | 1.60 KM |
| Barming | 5133 | BMG | 4.08 KM |
| East Farleigh | 5234 | EFL | 4.76 KM |
Nearby Listings
| Address | Price | Type | Score | Distance |
|---|---|---|---|---|
| Flat , Lee Heights, Bambridge Court, Maidstone | £ 205,000 | BUY | 8 / 10 | 0.00 KM |
| Bambridge Court, Maidstone, Kent | £ 139,000 | BUY | 6 / 10 | 0.01 KM |
| Bambridge Court, Maidstone, Kent | £ 210,000 | BUY | 7 / 10 | 0.01 KM |
| Bambridge Court, Maidstone | £ 199,995 | BUY | 7 / 10 | 0.02 KM |
| Bambridge Court, Maidstone | £ 199,995 | BUY | 6 / 10 | 0.02 KM |
Nearby Properties
| Address | Price | Distance |
|---|---|---|
| 33 Radnor Close | £ 127,000 | 0.12 KM |
| 21 Radnor Close | £ 130,000 | 0.12 KM |
| 23 Radnor Close | £ 200,000 | 0.12 KM |
| 19 Radnor Close | £ 126,000 | 0.12 KM |
| 16 Radnor Close | £ 115,000 | 0.12 KM |