Sycamore Chase, Pudsey
Hunters logo

Sycamore Chase, Pudsey

By Hunters

£ 750,000

Reviews

3 out of 5 stars

Hunters says ..

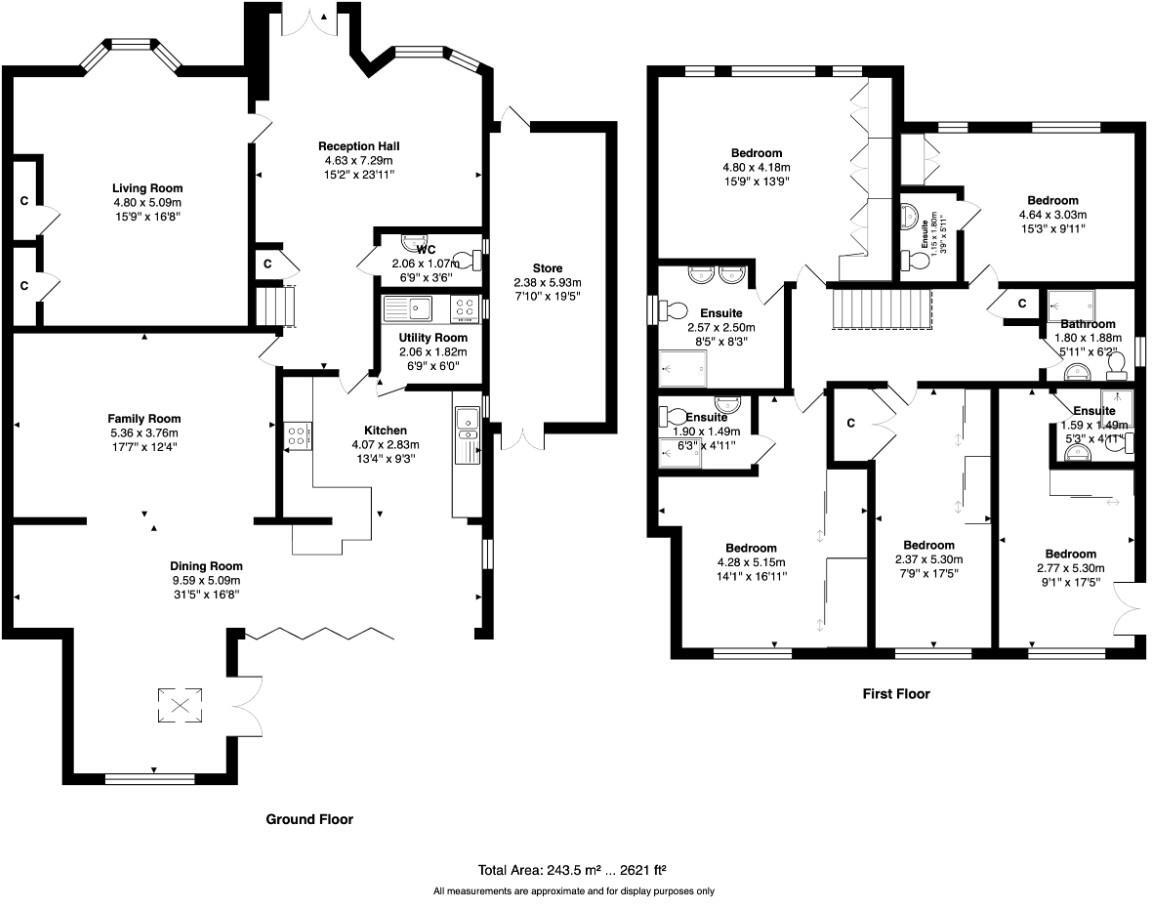
This impressive five-bedroom detached house, located in a highly sought-after area with excellent transport links and proximity to schools and amenities, features spacious interiors including two reception rooms, a luxurious open-plan kitchen, gated parking for six cars, and an enclosed rear gard...

Property Oracle says ..

This is a detached property in Pudsey, Leeds, featuring five bedrooms and five bathrooms. The house offers ample living space at 2,621.01 sq ft and includes a garden with a decked area. While the property is in a good location near schools and transportation, the interior condition suggests that some modernization could enhance its appeal. The asking price of £750,000 seems fair, considering the square footage and location, but potential buyers should factor in renovation costs.

Therefore, we give this property 6 / 10. *Disclaimer: This is our option and does constitute a recommendation or financial advice. Do your own research. *

Price
6
Condition
6
Location
7
Land
7
Bedrooms
5
Bathrooms
5
Sqft (est)
2,621.01

The heatmap indicates the level of crime in the area. The color of the heatmap indicates the crime severity and recency.

Metrics Year-on-Year

Average area value
303,941.00 £
Increased by 18.76 %
from 255,922.00 £
Est sale value
1,003,846.83 £
Increased by 82.38 %
from 550,412.10 £
Average area rental value
896.00 £/mo
Decreased by 14.42 %
from 1,047.00 £/mo
Est letting value
2,621.01 £/mo
from 0.00 £/mo
Est rental Yield
3.54 %
Decreased by 27.90 %
from 4.91 %
Crime Rate
1.00 %
Unchanged by 0.00 %
from 1.00 %

Agent Activity

  • Hunters created the listing.

Nearby Schools

NameTypeOfstedDistance
Crawshaw AcademyAcademy Sponsor LedGood0.28 KM
Lowtown Primary SchoolCommunity SchoolGood0.33 KM
St Joseph'S Catholic Primary School, PudseyAcademy ConverterGood0.63 KM
Swinnow Primary SchoolCommunity SchoolGood0.89 KM
Pudsey Grammar SchoolFoundation SchoolGood0.91 KM

Images

FRONT ELEVATION FAMILY DINING KITCHEN AREA REAR VIEW REAR GARDEN DINING AREA DINING AREA FAMILY ROOM FAMILY ROOM FAMILY DINING FAMILY DINING LIVING ROOM RECEPTION HALL RECEPTION HALL UTILITY ROOM DOWNSTAIRS WC BEDROOM BEDROOM BEDROOM MAIN EN-SUITE MAIN EN-SUITE LANDING BATHROOM BATHROOM BEDROOM BEDROOM EN-SUITE BEDROOM BEDROOM EN-SUITE LANDING REAR VIEW REAR GARDEN FRONT ELEVATION EN-SUITE BEDROOM BEDROOM BEDROOM BEDROOM

Nearby Streets

NameAverage PriceAverage SqftDistance
Weavers Place £ 000.00 KM
Longfield Avenue £ 000.00 KM
Claremont £ 000.00 KM
Hillside Grove £ 300,00000.00 KM
Britannia Gardens £ 000.00 KM

Nearby Transport

NameNLCTLCDistance
Bramley (West Yorkshire)8496BLE2.37 KM
New Pudsey8506NPD2.97 KM
Kirkstall Forge6544KLF4.89 KM
Horsforth8499HRS6.54 KM
Headingley8498HDY7.28 KM

Nearby Listings

AddressPriceTypeScoreDistance
Sycamore Chase, Pudsey £ 750,000BUY6 / 100.00 KM
Sycamore Chase, Pudsey £ 172,500BUY6 / 100.03 KM
Sycamore Chase, Pudsey, West Yorkshire £ 135,000BUY6 / 100.03 KM
Kent Road, Pudsey, LS28 9BL £ 319,999BUYUnknown0.15 KM
Kent Road, Pudsey, LS28 9BL £ 352,999BUY7 / 100.15 KM

Nearby Properties

AddressPriceDistance
33 Sycamore Chase £ 161,0000.03 KM
45 Sycamore Chase £ 300,0000.03 KM
9 Sycamore Chase £ 135,0000.03 KM
15 Sycamore Chase £ 470,0000.03 KM
8 Sycamore Chase £ 235,0000.03 KM