Julie Philpot says ..
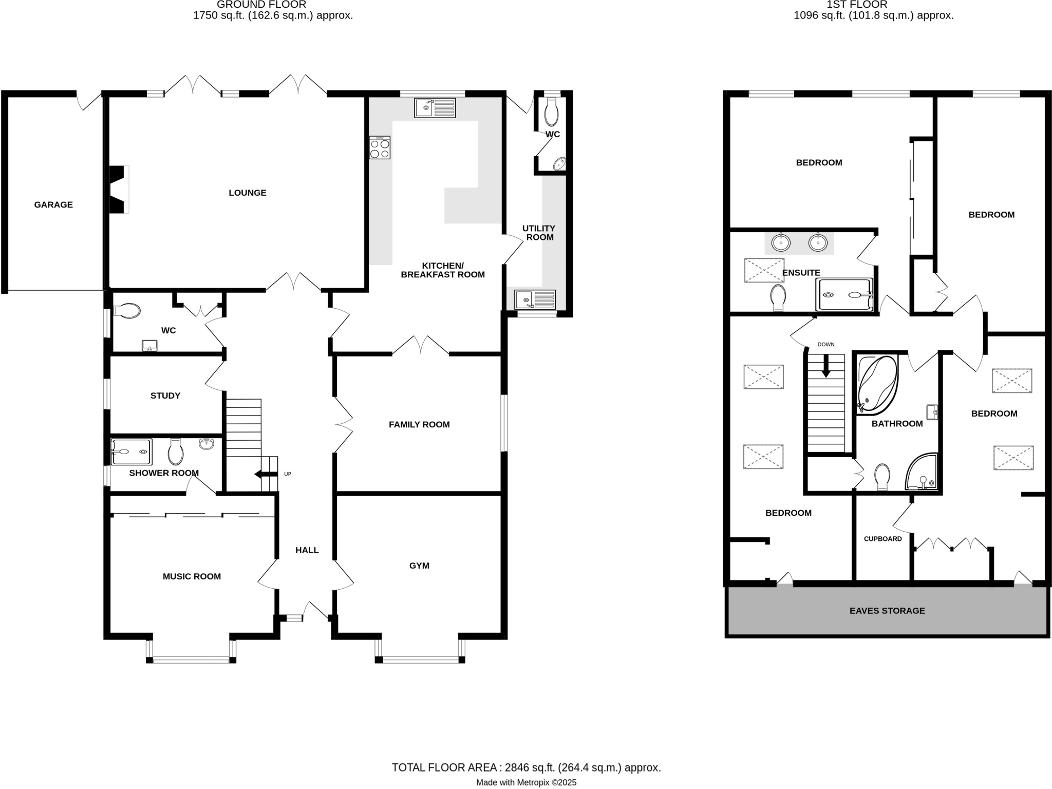
If looking for a large, very spacious and impressive family home of 2846 sq ft, this superb property must be viewed. The extended accommodation, upgraded by the present sellers, comprises four first floor bedrooms with two bathrooms, a ground floor bedroom with en-suite, four reception rooms and...
Property Oracle says ..
Therefore, we give this property 7 / 10. *Disclaimer: This is our option and does constitute a recommendation or financial advice. Do your own research. *
- Price
- 7
- Condition
- 8
- Location
- 8
- Land
- 8
- Bedrooms
- 5
- Bathrooms
- 3
- Sqft (est)
- 2,425.00
The heatmap indicates the level of crime in the area. The color of the heatmap indicates the crime severity and recency.
Metrics Year-on-Year
- Average area value
- 450,680.00 £Increased by 2.66 %
- Est sale value
- 1,142,175.00 £Increased by 11.61 %
- Average area rental value
- 1,290.00 £/moIncreased by 8.77 %
- Est letting value
- 2,425.00 £/moUnchanged by 0.00 %
- Est rental Yield
- 3.43 %Increased by 5.86 %
- Crime Rate
- 4.00 %Unchanged by 0.00 %
from 438,987.00 £
from 1,023,350.00 £
from 1,186.00 £/mo
from 2,425.00 £/mo
from 3.24 %
from 4.00 %
Agent Activity
Julie Philpot created the listing.
Nearby Schools
| Name | Type | Ofsted | Distance |
|---|---|---|---|
| Thorns Community Infant School | Community School | Good | 0.60 KM |
| Kenilworth School And Sixth Form | Academy Converter | 0.99 KM | |
| Park Hill Junior School | Community School | Good | 1.27 KM |
| Kenilworth Nursery School & Early Years Training Centre | Local Authority Nursery School | Outstanding | 1.39 KM |
| St Nicholas Cofe Primary School | Voluntary Controlled School | Good | 1.62 KM |
Images
Nearby Streets
| Name | Average Price | Average Sqft | Distance |
|---|---|---|---|
| Thomas Bates Road | £ 0 | 0 | 0.00 KM |
| Edwin Gee Road | £ 0 | 0 | 0.00 KM |
| Pennington Way | £ 0 | 0 | 0.00 KM |
| Brooke Road | £ 750,000 | 0 | 0.00 KM |
| Denemoor Court | £ 0 | 0 | 0.00 KM |
Nearby Transport
| Name | NLC | TLC | Distance |
|---|---|---|---|
| Kenilworth | 7985 | KNW | 1.12 KM |
| Warwick | 4600 | WRW | 6.07 KM |
| Leamington Spa | 4597 | LMS | 6.69 KM |
| Canley | 1129 | CNL | 7.04 KM |
| Tile Hill | 1035 | THL | 7.33 KM |
Nearby Listings
| Address | Price | Type | Score | Distance |
|---|---|---|---|---|
| Windy Arbour, Kenilworth | £ 825,000 | BUY | 7 / 10 | 0.00 KM |
| Windy Arbour, Kenilworth | £ 450,000 | BUY | 7 / 10 | 0.02 KM |
| Windy Arbour, Kenilworth | £ 675,000 | BUY | 8 / 10 | 0.05 KM |
| Windy Arbour, Kenilworth | £ 510,000 | BUY | 7 / 10 | 0.07 KM |
| Windy Arbour, Kenilworth | £ 525,000 | BUY | 7 / 10 | 0.07 KM |
Nearby Properties
| Address | Price | Distance |
|---|---|---|
| 17 Windy Arbour | £ 425,000 | 0.09 KM |
| 15 Windy Arbour | £ 499,950 | 0.09 KM |
| 31 Windy Arbour | £ 500,000 | 0.09 KM |
| 7 Windy Arbour | £ 433,000 | 0.09 KM |
| 9 Windy Arbour | £ 580,000 | 0.09 KM |