Brookfield Lane, Aughton
By Arnold & Phillips
£ 995,000
Reviews
3 out of 5 stars
Arnold & Phillips says ..
Arnold and Phillips are delighted to present this bespoke four-bedroom detached property, situated in the highly sought-after village of Aughton. Combining modern functionality with thoughtful design, this home is ideal for those seeking a balance of style and practicality in a location that offe...
Property Oracle says ..
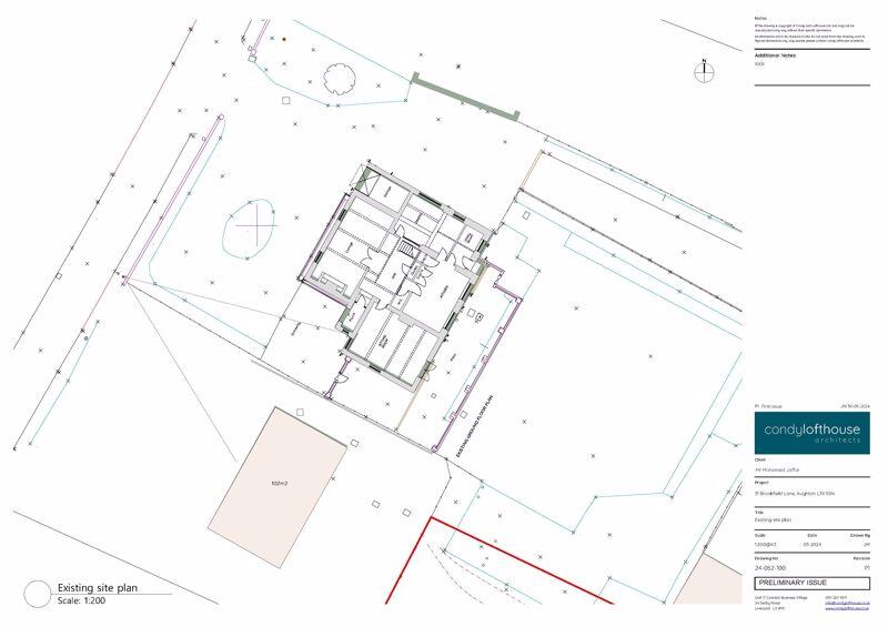
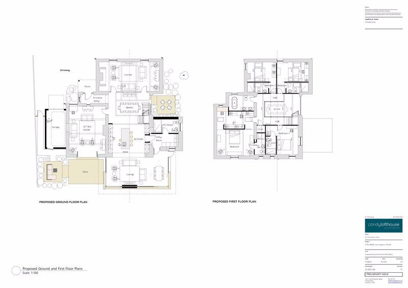
This property in Aughton, West Lancashire, presents a unique opportunity for potential buyers. Situated on Brookfield Lane, a street showing a mixture of property types and values, the location offers the benefits of village life with relative proximity to transport links to Liverpool via nearby railway stations. The property is a four-bedroom detached house, currently showing signs of age, but with considerable potential. The photographic evidence indicates a house in need of substantial modernisation and renovation. The architectural plans illustrate planned renovations which, if completed, would transform the property significantly.
The size of the plot is notably larger than many neighbouring houses, offering considerable space, a rare attribute in the area. The listed price is at the high end of what’s observed in the immediate surroundings on Brookfield Lane, indicating a level of premium associated with its size and the potential after renovation. However, the absence of square footage data and the necessary renovations mean a full price-per-square-foot analysis and firm value conclusion is not possible. Potential buyers will need to factor in renovation costs alongside the purchase price when assessing its overall value. Overall, the property could be a very desirable home after full renovation, but the work involved requires careful consideration.
Therefore, we give this property 6 / 10. *Disclaimer: This is our option and does constitute a recommendation or financial advice. Do your own research. *
- Price
- 7
- Condition
- 4
- Location
- 7
- Land
- 6
- Bedrooms
- 4
- Bathrooms
- 2
The heatmap indicates the level of crime in the area. The color of the heatmap indicates the crime severity and recency.
Metrics Year-on-Year
- Average area value
- 920,602.00 £Increased by 66.18 %
- Average area rental value
- 3,132.00 £/moIncreased by 136.38 %
- Est rental Yield
- 4.08 %Increased by 42.16 %
- Crime Rate
- 0.00 %
Agent Activity
Arnold & Phillips created the listing.
Nearby Schools
| Name | Type | Ofsted | Distance |
|---|---|---|---|
| Aughton St Michael'S Church Of England Primary School | Voluntary Controlled School | Outstanding | 2.04 KM |
| St Thomas Church Of England Primary School, Lydiate | Academy Converter | 2.25 KM | |
| Northway Primary School | Community School | Good | 2.33 KM |
| Aughton Town Green Primary School | Community School | Good | 2.53 KM |
| St Gregory'S Catholic Primary School | Voluntary Aided School | Good | 3.15 KM |
Images
Nearby Streets
| Name | Average Price | Average Sqft | Distance |
|---|---|---|---|
| Beech Road | £ 789,975 | 0 | 0.00 KM |
| Springfield Road | £ 0 | 0 | 0.00 KM |
| Kelkbeck Close | £ 0 | 0 | 0.00 KM |
| Beaufort Close | £ 625,000 | 0 | 0.00 KM |
| Sunnyside | £ 0 | 0 | 0.00 KM |
Nearby Transport
| Name | NLC | TLC | Distance |
|---|---|---|---|
| Town Green | 2283 | TWN | 1.90 KM |
| Maghull North | 6576 | MNS | 2.02 KM |
| Maghull | 2155 | MAG | 3.38 KM |
| Aughton Park | 2215 | AUG | 3.46 KM |
| Kirkby (Merseyside) | 2124 | KIR | 5.71 KM |
Nearby Listings
| Address | Price | Type | Score | Distance |
|---|---|---|---|---|
| Brookfield Lane, Aughton | £ 995,000 | BUY | 6 / 10 | 0.00 KM |
| Brookfield Lane, Aughton, L39 | £ 725,000 | BUY | Unknown | 0.17 KM |
| Brookfield Lane, Aughton, L39 | £ 700,000 | BUY | Unknown | 0.23 KM |
| Brookfield Lane, Aughton, L39 | £ 995,000 | BUY | 8 / 10 | 0.29 KM |
| Brookfield Lane, Aughton, Ormskirk, L39 6SP | £ 325,000 | BUY | 6 / 10 | 0.29 KM |
Nearby Properties
| Address | Price | Distance |
|---|---|---|
| 29 Brookfield Lane | £ 350,000 | 0.01 KM |
| 5 Brookfield Lane | £ 118,000 | 0.01 KM |
| 11 Brookfield Lane | £ 261,000 | 0.01 KM |
| 49 Brookfield Lane | £ 900,000 | 0.01 KM |
| 9 Brookfield Lane | £ 230,000 | 0.01 KM |